



Book your tour. Save an average of $18,473. We'll handle the rest.
- Confirmed tours
- Get matched & compare top deals
- Expert help, no pressure
- No added fees
Estimated value based on Jome data, T&C apply
- 3 bd
- 2 ba
- 1,235 sqft
633 Dogwood Ln, Cottonwood Shores, TX 78657
Why tour with Jome?
- No pressure toursTour at your own pace with no sales pressure
- Expert guidanceGet insights from our home buying experts
- Exclusive accessSee homes and deals not available elsewhere
Jome is featured in
- Single-Family
- Under construction
- $242.11/sqft
- West facing
Home description
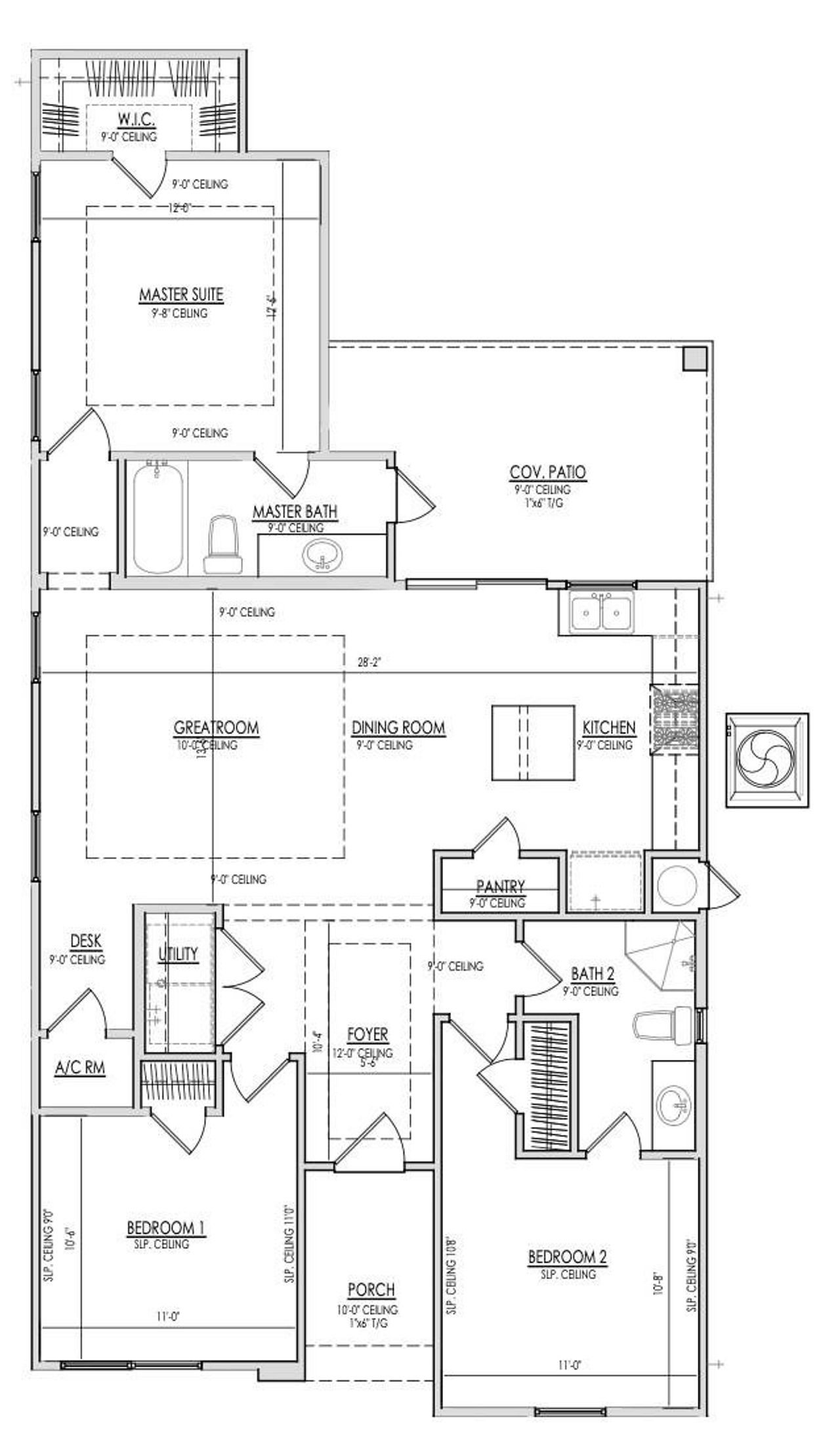
Welcome to 633 Dogwood Lane in Cottonwood Shores, TX! This stunning new construction home is set for completion in 2026 and offers the perfect blend of modern style and functional design. With over 1,200 square feet of thoughtfully planned living space, this home features 3 spacious bedrooms and 2 full bathrooms, making it ideal for both everyday living and entertaining.
Framing is already going up, making this the perfect time to jump in and finish the design to your liking. Step inside to find a bright and airy open-concept floor plan where the living, dining, and kitchen spaces flow seamlessly together. The vaulted living room ceiling and modern roof pitches create a dramatic architectural touch, while large windows invite abundant natural light throughout the home. The kitchen is designed with both style and function in mind, boasting sleek quartz countertops and ample storage to inspire every home chef.
The primary suite offers a peaceful retreat with its own private bathroom, while two additional bedrooms provide flexibility for guests, a home office, or hobbies. A large covered back patio expands your living space outdoors, perfect for relaxing or entertaining year-round.
Located in Cottonwood Shores, you’ll enjoy a friendly lakeside community just minutes from Marble Falls and the Highland Lakes. Don’t miss this chance to customize and own brand-new construction in 2026!
Central Metro Realty, MLS 3242890
Information last verified by Jome: Yesterday at 6:49 AM (December 7, 2025)
Home highlights
Scenic Highland Lakes reservoir west of Austin, known for boating, cliffside views, and upscale lakefront living.
Book your tour. Save an average of $18,473. We'll handle the rest.
We collect exclusive builder offers, book your tours, and support you from start to housewarming.
- Confirmed tours
- Get matched & compare top deals
- Expert help, no pressure
- No added fees
Estimated value based on Jome data, T&C apply
Home details
- Property status:
- Under construction
- Lot size (acres):
- 0.11
- Size:
- 1,235 sqft
- Stories:
- 1
- Beds:
- 3
- Baths:
- 2
- Fence:
- No Fence
- Facing direction:
- West
Construction details
- Year Built:
- 2026
- Roof:
- Shingle Roofing
Home features & finishes
- Cooling:
- Central Air
- Flooring:
- Vinyl FlooringTile Flooring
- Foundation Details:
- Slab
- Garage/Parking:
- Car Carport
- Kitchen:
- DishwasherRefrigeratorQuartz countertopKitchen RangeElectric Oven
- Property amenities:
- Porch
- Rooms:
- Primary Bedroom On MainPrimary Bedroom Downstairs
- Security system:
- Smoke Detector
Utility information
- Heating:
- Electric Heating, Central Heating
- Utilities:
- Electricity Available
Neighborhood
Home address
- City:
- Cottonwood Shores
- County:
- Burnet
- Zip Code:
- 78657
Schools in Marble Falls Independent School District
- Grades PK-08Privatefirst baptist christian school marble falls3.0 mi901 la ventanana
- Grades PK-KGPrivatetierra vista montessori school4.5 mi2400 commerce stna
GreatSchools’ Summary Rating calculation is based on 4 of the school’s themed ratings, including test scores, student/academic progress, college readiness, and equity. This information should only be used as a reference. Jome is not affiliated with GreatSchools and does not endorse or guarantee this information. Please reach out to schools directly to verify all information and enrollment eligibility. Data provided by GreatSchools.org © 2025
Places of interest
Getting around
Natural hazards risk
Climate hazards can impact homes and communities, with risks varying by location. These scores reflect the potential impact of natural disasters and climate-related risks on Burnet County
Provided by FEMA

Considering this home?
Our expert will guide your tour, in-person or virtual
Need more information?
Text or call (888) 486-2818
Financials
Similar homes nearby
Recently added communities in this area
Nearby communities in Cottonwood Shores
New homes in nearby cities
More New Homes in Cottonwood Shores, TX
Central Metro Realty, MLS 3242890
Based on information from the Austin Board of REALTORS® (alternatively, from ACTRIS) for the period through 08/13/2024. Neither the Board nor ACTRIS guarantees or is in any way responsible for its accuracy. All data is provided “AS IS” and with all faults. Data maintained by the Board or ACTRIS may not reflect all real estate activity in the market. Information being provided is for consumers’ personal, non-commercial use and may not be used for any purpose other than to identify prospective properties consumers may be interested in purchasing. The Digital Millennium Copyright Act of 1998, 17 U.S.C. § 512 (the “DMCA”) provides recourse for copyright owners who believe that material appearing on the Internet infringes their rights under U.S. copyright law. If you believe in good faith that any content or material made available in connection with our website or services infringes your copyright, you (or your agent) may send us a notice requesting that the content or material be removed, or access to it blocked. Notices must be sent in writing by email to DMCAnotice@MLSGrid.com. The DMCA requires that your notice of alleged copyright infringement include the following information: (1) description of the copyrighted work that is the subject of claimed infringement; (2) description of the alleged infringing content and information sufficient to permit us to locate the content; (3) contact information for you, including your address, telephone number and email address; (4) a statement by you that you have a good faith belief that the content in the manner complained of is not authorized by the copyright owner, or its agent, or by the operation of any law; (5) a statement by you, signed under penalty of perjury, that the information in the notification is accurate and that you have the authority to enforce the copyrights that are claimed to be infringed; and (6) a physical or electronic signature of the copyright owner or a person authorized to act on the copyright owner’s behalf. Failure to include all of the above information may result in the delay of the processing of your complaint.
Read moreLast checked Dec 8, 12:40 am
- Home
- New homes
- Texas
- Burnet County
- Cottonwood Shores
- 633 Dogwood Ln, Cottonwood Shores, TX 78657




























