





- 3 bd
- 2 ba
- 1,669 sqft
3123 Apple Creek Ave, Heartland, TX 75126
- Single-Family
- $196.59/sqft
- $552/annual HOA
- 150 days on Jome
New Homes for Sale Near 3123 Apple Creek Ave, Heartland, TX 75126
About this Home
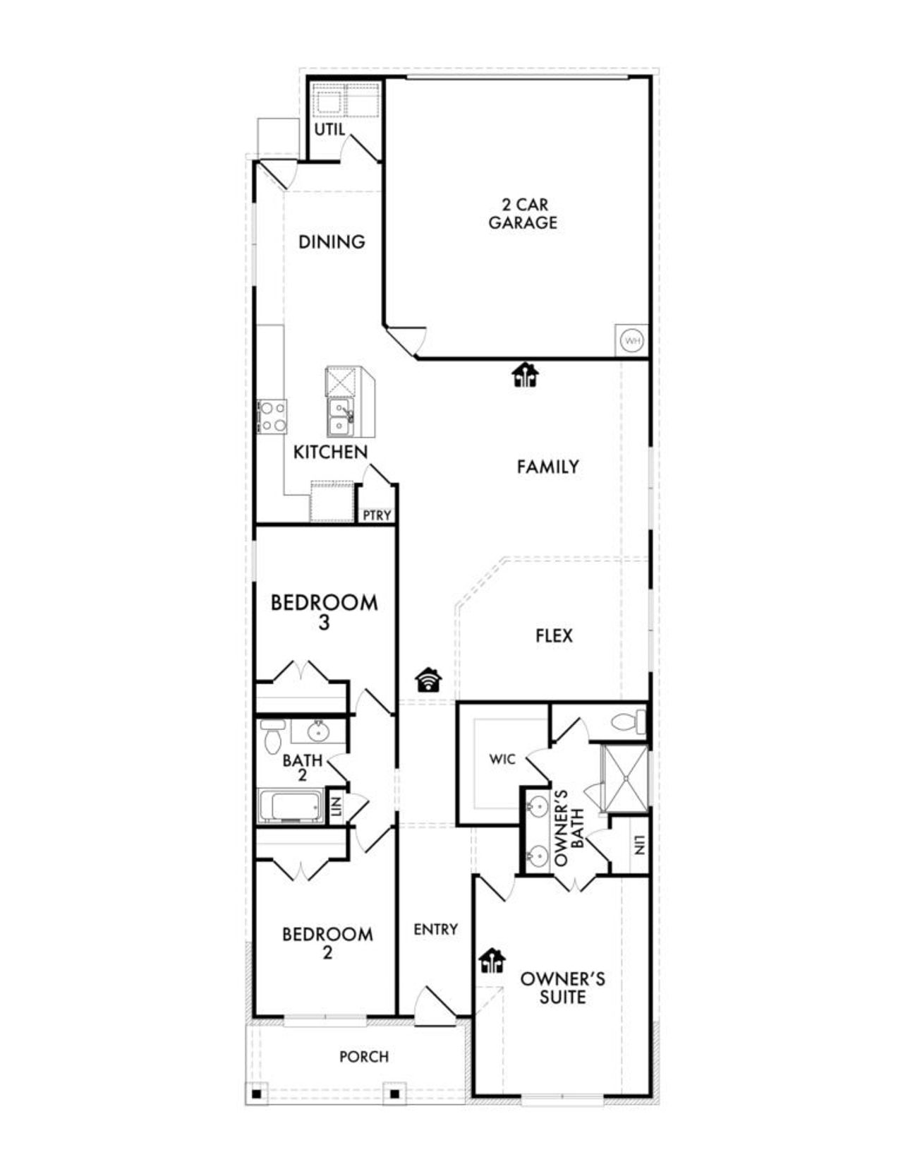
The Bastrop is a great one-story floorplan! The owner’s suite is located at the front of the home with dual vanity sinks and a walk-in closet and garden tub. Both secondary bedrooms are across the hallway with a full bathroom between. Spacious family room with flex space. This plan has a great California kitchen with a dining nook. The home also features a large covered porch and rear-entry garage.
May also be listed on the Impression Homes website
Information last verified by Jome: Thursday at 12:19 PM (December 4, 2025)
Home details
- Property status:
- Sold
- Size:
- 1,669 sqft
- Stories:
- 1
- Beds:
- 3
- Baths:
- 2
- Garage spaces:
- 2
Construction details
- Builder Name:
- Impression Homes
Home features & finishes
- Appliances:
- Sprinkler System
- Garage/Parking:
- GarageAttached Garage
- Interior Features:
- Walk-In ClosetPantryWalk-In Pantry
- Kitchen:
- Kitchen Island
- Laundry facilities:
- Utility/Laundry Room
- Property amenities:
- BasementSmart Home SystemPorch
- Rooms:
- Flex RoomPrimary Bedroom On MainKitchenBreakfast AreaPrimary Bedroom Downstairs

Community details
Heartland at Heartland
by Impression Homes, Heartland, TX
- 8 homes
- 9 plans
- 1,436 - 2,714 sqft
View Heartland details
More homes in Heartland
- Home at address 3719 Jade Ln, Heartland, TX 75126

$299,999
Move-in ready- 4 bd
- 3 ba
- 1,942 sqft
3719 Jade Ln, Heartland, TX 75126
- Home at address 3124 Apple Creek Ave, Heartland, TX 75126

$301,311
Move-in ready- 3 bd
- 2 ba
- 1,436 sqft
3124 Apple Creek Ave, Heartland, TX 75126
- Home at address 3732 Honey Daisy Dr, Heartland, TX 75126

$309,488
Move-in ready- 3 bd
- 2 ba
- 1,567 sqft
3732 Honey Daisy Dr, Heartland, TX 75126
- Home at address 3002 Stillwater Ln, Heartland, TX 75126

$319,999
Move-in ready- 3 bd
- 2 ba
- 1,663 sqft
3002 Stillwater Ln, Heartland, TX 75126
- Home at address 3002 Stillwater Ln, Crandall, TX 75114

$319,999
Move-in ready- 3 bd
- 2 ba
- 1,663 sqft
3002 Stillwater Ln, Crandall, TX 75114
- Home at address 3723 Jade Ln, Heartland, TX 75126

$335,999
Move-in ready- 3 bd
- 2.5 ba
- 2,202 sqft
3723 Jade Ln, Heartland, TX 75126
Floor plans in Heartland
About the builder - Impression Homes
Neighborhood
Home address
Schools in Crandall Independent School District
- Grades PK-06Publicopal smith elementary0.6 mi3015 fletcher rdna
GreatSchools’ Summary Rating calculation is based on 4 of the school’s themed ratings, including test scores, student/academic progress, college readiness, and equity. This information should only be used as a reference. Jome is not affiliated with GreatSchools and does not endorse or guarantee this information. Please reach out to schools directly to verify all information and enrollment eligibility. Data provided by GreatSchools.org © 2025
Places of interest
Getting around
Air quality
Noise level
A Soundscore™ rating is a number between 50 (very loud) and 100 (very quiet) that tells you how loud a location is due to environmental noise.
Financials
Nearby communities in Heartland
Homes in Heartland by Impression Homes
Recently added communities in this area
Other Builders in Heartland, TX
Nearby sold homes
New homes in nearby cities
More New Homes in Heartland, TX
- Jome
- New homes search
- Texas
- Dallas-Fort Worth Area
- Kaufman County
- Heartland
- Heartland
- 3123 Apple Creek Ave, Heartland, TX 75126




































































