














Book your tour. Save an average of $18,473. We'll handle the rest.
We collect exclusive builder offers, book your tours, and support you from start to housewarming.
- Confirmed tours
- Get matched & compare top deals
- Expert help, no pressure
- No added fees
Estimated value based on Jome data, T&C apply






- 3 bd
- 2.5 ba
- 2,298 sqft
2619 S Flores, Unit 1, San Antonio, TX 78204
Why tour with Jome?
- No pressure toursTour at your own pace with no sales pressure
- Expert guidanceGet insights from our home buying experts
- Exclusive accessSee homes and deals not available elsewhere
Jome is featured in
- Condo
- Quick move-in
- $295.69/sqft
- 64 days on Jome
Home description
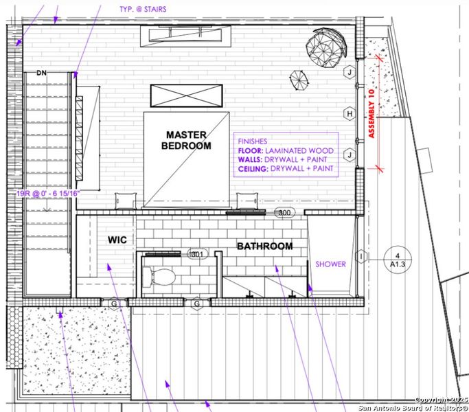
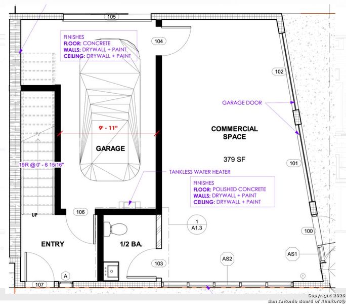
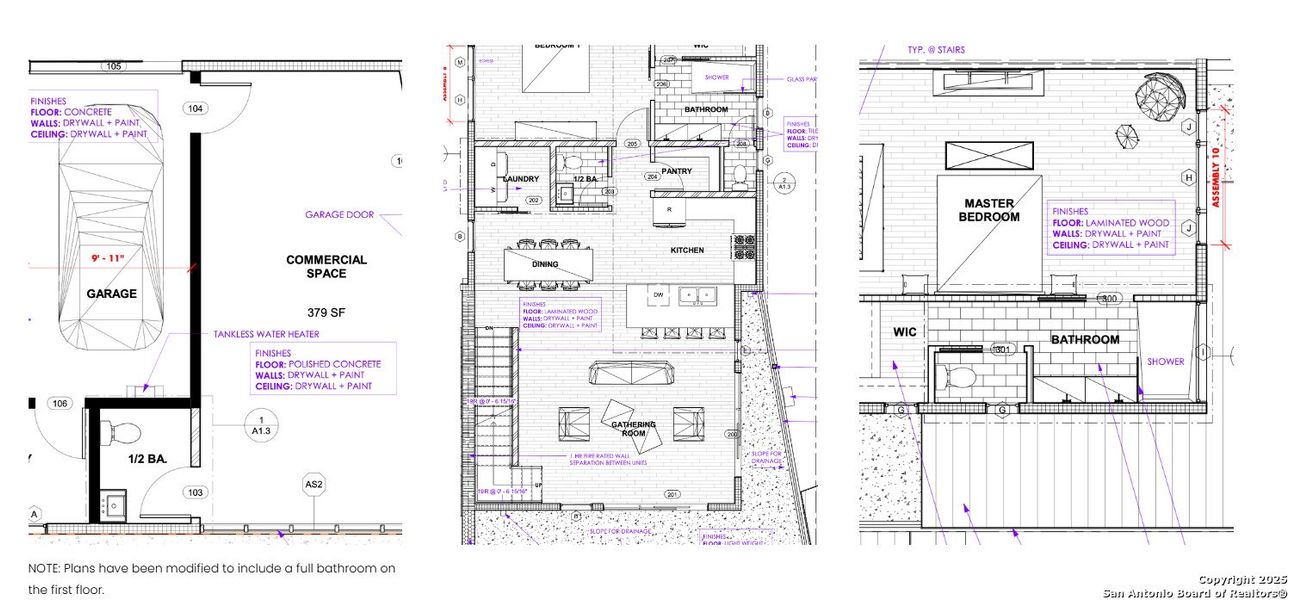
Smart design. Prime location. Endless possibilities. Introducing eight exclusive new-construction condos on South Flores, created for the modern urbanite who wants it all-location, lifestyle, and flexibility. Each residence includes a private entry, dedicated full bath, and flexible first-floor space that adapts to you. Use it as a home office, client studio, rental income suite, or even a fitness or creative space-the possibilities are endless. Inside, enjoy modern open layouts, clean-lined architecture, well-appointed kitchens, and abundant natural light. Private balconies and stylish finishes bring the perfect balance of form and function. Step outside and you're immersed in the vibrant, walkable energy of the city. Step inside and you're home-your own live/work sanctuary built for today's lifestyle. All information deemed reliable but not guaranteed. Buyer to verify all details. HOA and fees TBD.
Epique Realty LLC, MLS 1911147
Information last verified by Jome: Today at 2:00 AM (March 3, 2026)
Book your tour. Save an average of $18,473. We'll handle the rest.
We collect exclusive builder offers, book your tours, and support you from start to housewarming.
- Confirmed tours
- Get matched & compare top deals
- Expert help, no pressure
- No added fees
Estimated value based on Jome data, T&C apply
Home details
- Property status:
- Move-in ready
- Size:
- 2,298 sqft
- Stories:
- 3+
- Beds:
- 3
- Baths:
- 2
- Half baths:
- 1
- Garage spaces:
- 1
Construction details
- Year Built:
- 2025
Home features & finishes
- Cooling:
- Central Air
- Flooring:
- Vinyl Flooring
- Garage/Parking:
- Garage
- Interior Features:
- Walk-In Closet
- Kitchen:
- Kitchen Island
- Rooms:
- Office/StudyDining RoomLiving RoomBreakfast AreaOpen Concept Floorplan
Room details
Master Bedroom
Kitchen
Dining Room

Get a consultation with our New Homes Expert
- See how your home builds wealth
- Plan your home-buying roadmap
- Discover hidden gems
Utility information
- Heating:
- Electric Heating, Central Heating
- Utilities:
- Cable TV
Neighborhood
Home address
- City:
- San Antonio
- County:
- Bexar
- Zip Code:
- 78204
Schools in San Antonio Independent School District
- Grades PK-PKPublicknox early childhood campus0.4 mi225 arizona avena
GreatSchools’ Summary Rating calculation is based on 4 of the school’s themed ratings, including test scores, student/academic progress, college readiness, and equity. This information should only be used as a reference. Jome is not affiliated with GreatSchools and does not endorse or guarantee this information. Please reach out to schools directly to verify all information and enrollment eligibility. Data provided by GreatSchools.org © 2025
Places of interest
Getting around
12 nearby routes: 12 bus, 0 rail, 0 otherAir quality
Noise level
A Soundscore™ rating is a number between 50 (very loud) and 100 (very quiet) that tells you how loud a location is due to environmental noise.
Natural hazards risk
Provided by FEMA

Considering this home?
Our expert will guide your tour, in-person or virtual
Need more information?
Text or call (888) 488-9243
Financials
Estimated monthly payment
Let us help you find your dream home
How many bedrooms are you looking for?
Similar homes nearby
Recently added communities in this area
Nearby communities in San Antonio
New homes in nearby cities
More New Homes in San Antonio, TX
Epique Realty LLC, MLS 1911147
IDX information is provided exclusively for personal, non-commercial use, and may not be used for any purpose other than to identify prospective properties consumers may be interested in purchasing. Information is deemed reliable but not guaranteed.
Read moreLast checked Mar 3, 1:00 pm
- Jome
- New homes search
- Texas
- Greater San Antonio
- Bexar County
- San Antonio
- 2619 S Flores, Unit 1, San Antonio, TX 78204



























