




















- 5 bd
- 2 ba
- 1,850 sqft
143 Greinert Dr, Taylor, TX 76574
- Single-Family
- $199.99/sqft
- $650/annual HOA
- West facing
New Homes for Sale Near 143 Greinert Dr, Taylor, TX 76574
About this Home
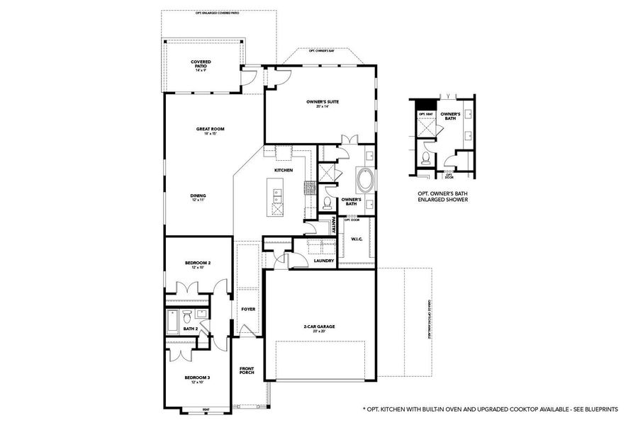
2 IN-1 HOME DESIGNS | ONLY GAS COMMUNITY IN TAYLOR. Step into this beautifully designed one-story home featuring 3 bedrooms and 2 bathrooms, perfectly crafted for modern living. The heart of the home is the gourmet kitchen, complete with built-in appliances, generous counter space, and a layout ideal for cooking and entertaining. Upgraded flooring flows seamlessly throughout the main living areas, adding both style and durability.
Relax and entertain on the extended patio, offering plenty of space for outdoor gatherings, morning coffee, or evening sunsets. The private primary suite provides comfort and convenience, while the two additional bedrooms and full bathroom offer flexibility for family, guests, or a home office. With thoughtful design and quality upgrades throughout, this home combines style, functionality, and everyday comfort. Located in a growing Taylor neighborhood with easy access to schools, shopping, and Austin, it’s the perfect place to call home.
Ready for move-in this November—schedule your tour today and make this home yours!
May also be listed on the DRB Homes website
Information last verified by Jome: Wednesday at 6:51 AM (January 7, 2026)
Home details
- Property status:
- Sold
- Lot size (acres):
- 0.16
- Size:
- 1,850 sqft
- Stories:
- 1
- Beds:
- 5
- Baths:
- 2
- Garage spaces:
- 2
- Fence:
- Privacy Fence
- Facing direction:
- West
Construction details
- Builder Name:
- DRB Homes
- Completion Date:
- November, 2025
- Year Built:
- 2025
- Roof:
- Shingle Roofing
Home features & finishes
- Construction Materials:
- Cement
- Cooling:
- Central Air
- Foundation Details:
- Slab
- Garage/Parking:
- Door OpenerGarageAttached Garage
- Interior Features:
- Walk-In ClosetFoyerPantry
- Kitchen:
- DishwasherMicrowave OvenDisposalSelf Cleaning OvenKitchen IslandGas Oven
- Laundry facilities:
- Utility/Laundry Room
- Property amenities:
- BasementYardPorch
- Rooms:
- Primary Bedroom On MainKitchenDining RoomFamily RoomOpen Concept FloorplanPrimary Bedroom Downstairs
- Security system:
- Smoke DetectorCarbon Monoxide Detector
Utility information
- Heating:
- Gas Heating
- Utilities:
- Electricity Available, Natural Gas Available, Underground Utilities, Internet Cable, Cable Available, Sewer Available, Water Available

Community details
Spring Creek
by DRB Homes, Taylor, TX
- 4 homes
- 15 plans
- 1,610 - 3,050 sqft
View Spring Creek details
More homes in Spring Creek
- Home at address 101 Greinert Dr, Taylor, TX 76574

$399,990
Move-in ready- 5 bd
- 3 ba
- 2,740 sqft
101 Greinert Dr, Taylor, TX 76574
Floor plans in Spring Creek
About the builder - DRB Homes
Neighborhood
Home address
- City:
- Taylor
- County:
- Williamson
- Zip Code:
- 76574
Schools in Taylor Independent School District
GreatSchools’ Summary Rating calculation is based on 4 of the school’s themed ratings, including test scores, student/academic progress, college readiness, and equity. This information should only be used as a reference. Jome is not affiliated with GreatSchools and does not endorse or guarantee this information. Please reach out to schools directly to verify all information and enrollment eligibility. Data provided by GreatSchools.org © 2025
Places of interest
Getting around
Air quality
Financials
Nearby communities in Taylor
Homes in Taylor by DRB Homes
Recently added communities in this area
Other Builders in Taylor, TX
Nearby sold homes
New homes in nearby cities
More New Homes in Taylor, TX
- Jome
- New homes search
- Texas
- Greater Austin Area
- Williamson County
- Taylor
- Spring Creek
- 143 Greinert Dr, Taylor, TX 76574


































































