














Book your tour. Save an average of $18,473. We'll handle the rest.
- Confirmed tours
- Get matched & compare top deals
- Expert help, no pressure
- No added fees
Estimated value based on Jome data, T&C apply




























- 4 bd
- 3.5 ba
- 2,933 sqft
12902 Old Fashion Cir, Mont Belvieu, TX 77535
Why tour with Jome?
- No pressure toursTour at your own pace with no sales pressure
- Expert guidanceGet insights from our home buying experts
- Exclusive accessSee homes and deals not available elsewhere
Jome is featured in
- Single-Family
- Quick move-in
- $181.99/sqft
- $550/annual HOA
Home description
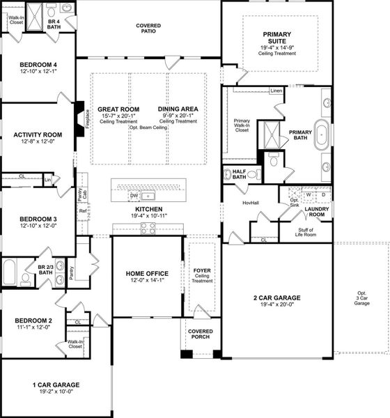
Experience Grand Oaks in Mont Belvieu, Texas, featuring stunning homes with interiors from our exclusive Looks collection. Located on a 0.248 acre lot, this charming one-story Austin home is designed in our Classic Look, with 4 bedrooms, 3.5 baths, and a 3 car garage. Step inside to a welcoming foyer with a feature wall and a dedicated home office with sliding doors. The stunning island kitchen is the heart of the home, with chestnut brown stacked cabinets and Calacatta Abezzo quartz countertops. It opens seamlessly to a great room featuring a warm fireplace and decorative ceiling treatment. The primary suite is a true retreat, boasting a feature wall, an elegant ceiling, and a spa-like bath with dual vanities and a freestanding soaking tub. A versatile activity room and a covered patio complete this home. Conveniently located near I-10, HWY 99, and HWY 146. Zoned to Barbers Hill ISD. Save thousands of dollars every year with No MUD Tax! Offered by: K. Hovnanian of Houston II, L.L.C.
K. Hovnanian Homes, MLS 25176566
May also be listed on the K. Hovnanian® Homes website
Information last verified by Jome: Today at 2:36 AM (January 16, 2026)
Book your tour. Save an average of $18,473. We'll handle the rest.
We collect exclusive builder offers, book your tours, and support you from start to housewarming.
- Confirmed tours
- Get matched & compare top deals
- Expert help, no pressure
- No added fees
Estimated value based on Jome data, T&C apply
Home details
- Property status:
- Move-in ready
- Lot size (acres):
- 0.25
- Size:
- 2,933 sqft
- Stories:
- 1
- Beds:
- 4
- Baths:
- 3.5
- Garage spaces:
- 3
- Facing direction:
- Southeast
Construction details
- Builder Name:
- K. Hovnanian® Homes
- Completion Date:
- December, 2025
- Year Built:
- 2025
- Roof:
- Composition Roofing
Home features & finishes
- Construction Materials:
- CementBrickStone
- Cooling:
- Ceiling Fan(s)
- Flooring:
- Tile Flooring
- Foundation Details:
- Slab
- Garage/Parking:
- GarageAttached Garage
- Home amenities:
- Green Construction
- Interior Features:
- Ceiling-HighWired For SecurityWalk-In ClosetFoyerPantryWalk-In Pantry
- Kitchen:
- DishwasherMicrowave OvenOvenDisposalGas CooktopKitchen IslandGas OvenDouble Oven
- Laundry facilities:
- DryerWasherUtility/Laundry Room
- Property amenities:
- Gas Log FireplaceBackyardPatioFireplacePorch
- Rooms:
- Primary Bedroom On MainKitchenEntry HallOffice/StudyDining RoomFamily RoomPrimary Bedroom Downstairs

Get a consultation with our New Homes Expert
- See how your home builds wealth
- Plan your home-buying roadmap
- Discover hidden gems
Utility information
- Heating:
- Water Heater, Gas Heating
- Utilities:
- HVAC

Community details
Grand Oaks
by K. Hovnanian® Homes, Mont Belvieu, TX
- 14 homes
- 6 plans
- 2,371 - 3,577 sqft
View Grand Oaks details
More homes in Grand Oaks
- Home at address 13006 Old Fashion Cir, Mont Belvieu, TX 77535

Barcelona
$448,562
- 4 bd
- 2 ba
- 2,383 sqft
13006 Old Fashion Cir, Mont Belvieu, TX 77535
- Home at address 13002 Old Fashion Cir, Mont Belvieu, TX 77535

Belfast II ESP
$462,270
- 4 bd
- 3 ba
- 2,562 sqft
13002 Old Fashion Cir, Mont Belvieu, TX 77535
- Home at address 12911 Old Fashion Cir, Mont Belvieu, TX 77535

Aegean
$474,000
- 5 bd
- 3 ba
- 2,572 sqft
12911 Old Fashion Cir, Mont Belvieu, TX 77535
- Home at address 12114 Old Fashion Cir, Mont Belvieu, TX 77535

Belfast II ESP
$486,750
- 4 bd
- 3 ba
- 2,562 sqft
12114 Old Fashion Cir, Mont Belvieu, TX 77535
- Home at address 12907 Old Fashion Cir, Mont Belvieu, TX 77535

Barcelona
$492,500
- 4 bd
- 2 ba
- 2,383 sqft
12907 Old Fashion Cir, Mont Belvieu, TX 77535
- Home at address 12826 Old Fashion Cir, Mont Belvieu, TX 77535

Aegean
$496,000
- 5 bd
- 3 ba
- 2,572 sqft
12826 Old Fashion Cir, Mont Belvieu, TX 77535
Floor plans in Grand Oaks
About the builder - K. Hovnanian® Homes
Neighborhood
Home address
- City:
- Mont Belvieu
- County:
- Chambers
- Zip Code:
- 77535
Schools in Barbers Hill Independent School District
GreatSchools’ Summary Rating calculation is based on 4 of the school’s themed ratings, including test scores, student/academic progress, college readiness, and equity. This information should only be used as a reference. Jome is not affiliated with GreatSchools and does not endorse or guarantee this information. Please reach out to schools directly to verify all information and enrollment eligibility. Data provided by GreatSchools.org © 2025
Places of interest
Getting around
Air quality

Considering this home?
Our expert will guide your tour, in-person or virtual
Need more information?
Text or call (888) 486-2818
Financials
Estimated monthly payment
Let us help you find your dream home
How many bedrooms are you looking for?
Similar homes nearby
Recently added communities in this area
Nearby communities in Mont Belvieu
New homes in nearby cities
More New Homes in Mont Belvieu, TX
K. Hovnanian Homes, MLS 25176566
Copyright © 2025, Houston Realtors Information Service, Inc. The information provided is exclusively for consumers’ personal, non-commercial use, and may not be used for any purpose other than to identify prospective properties consumers may be interested in purchasing. Information is deemed reliable but not guaranteed. All information provided should be independently verified.
Read moreLast checked Jan 16, 2:50 pm
- Jome
- New homes search
- Texas
- Greater Houston Area
- Chambers County
- Mont Belvieu
- Grand Oaks
- 12902 Old Fashion Cir, Mont Belvieu, TX 77535






























