








Book your tour. Save an average of $18,473. We'll handle the rest.
We collect exclusive builder offers, book your tours, and support you from start to housewarming.
- Confirmed tours
- Get matched & compare top deals
- Expert help, no pressure
- No added fees
Estimated value based on Jome data, T&C apply






































- 3 bd
- 2.5 ba
- 2,182 sqft
207 Bishop Wood Rd, Dripping Springs, TX 78620
Why tour with Jome?
- No pressure toursTour at your own pace with no sales pressure
- Expert guidanceGet insights from our home buying experts
- Exclusive accessSee homes and deals not available elsewhere
Jome is featured in
- Single-Family
- Quick move-in
- $222.27/sqft
- $600/annual HOA
Home description
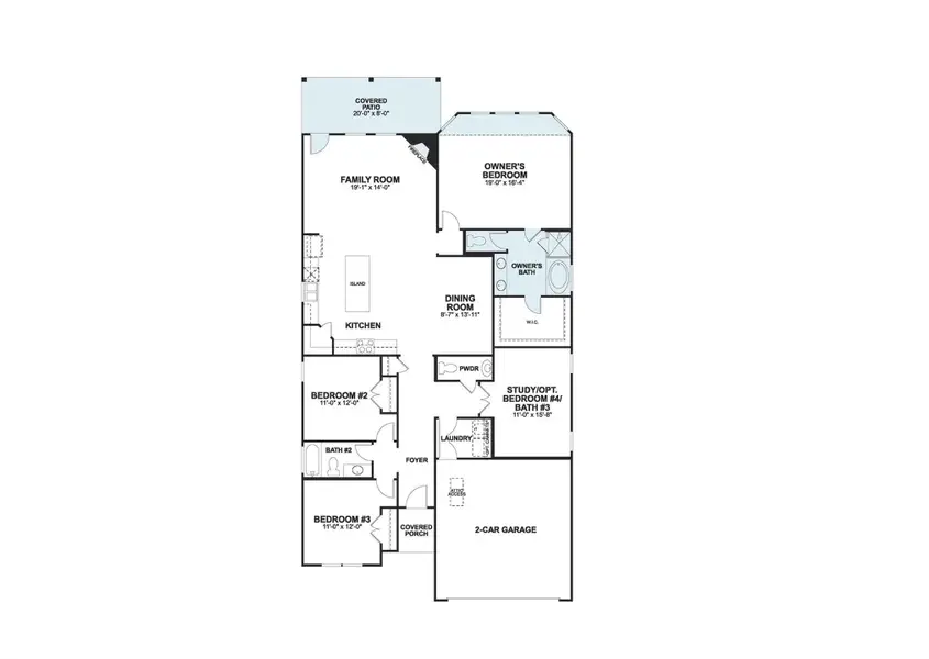
A spacious and efficient floorplan, the Barton II showcases all the right spaces in all the right places! You'll be impressed with this single-story home's 3 bedrooms, 2.5 bathrooms, study, and 2,182 square feet. The covered front porch takes the exterior to new heights—add potted plants and seasonal décor to really wow your guests!
An airy foyer leads to a hallway connecting 2 of the bedrooms with a full bathroom to share, a great wing of the home for kids' rooms. The laundry room is right across the hall, and leads to the study and half bathroom.
The back half of the home holds the open-concept living areas and the owner's suite. The kitchen faces the dining room and connects to the family room, so whether your family is enjoying a formal dinner or settling in for movie night, anyone can quickly make trips back to the kitchen.
The back of the home includes a covered extended patio that you can fill with a comfortable outdoor furniture set and a grill for wonderful summer memories as a family.
The owner's suite boasts a roomy bedroom with an upgraded bay window to for some extra space and natural light, and the owner's bathroom boasts a double vanity and a walk-in shower.
M/I Homes Realty, MLS 3653385
May also be listed on the M/I Homes website
Information last verified by Jome: Today at 6:16 AM (April 18, 2026)
Home highlights
Expansive Austin greenbelt with hiking, swimming holes, and limestone cliffs tucked amid Hill Country suburbs.
Book your tour. Save an average of $18,473. We'll handle the rest.
We collect exclusive builder offers, book your tours, and support you from start to housewarming.
- Confirmed tours
- Get matched & compare top deals
- Expert help, no pressure
- No added fees
Estimated value based on Jome data, T&C apply
Home details
- Property status:
- Move-in ready
- Lot size (acres):
- 0.14
- Size:
- 2,182 sqft
- Stories:
- 1
- Beds:
- 3
- Baths:
- 2
- Half baths:
- 1
- Garage spaces:
- 2
- Fence:
- Wood Fence, Privacy Fence
- Facing direction:
- North
Construction details
- Builder Name:
- M/I Homes
- Completion Date:
- March, 2026
- Year Built:
- 2025
- Roof:
- Roof Gutter, Composition Roofing, Shingle Roofing
Home features & finishes
- Appliances:
- Exhaust FanExhaust Fan Vented
- Construction Materials:
- CementBrickStone
- Cooling:
- Ceiling Fan(s)Central Air
- Flooring:
- Vinyl FlooringCarpet FlooringTile Flooring
- Foundation Details:
- Slab
- Garage/Parking:
- Door OpenerGarageFront Entry Garage/ParkingAttached Garage
- Home amenities:
- ENERGY STAR CertifiedGreen Construction
- Interior Features:
- Ceiling-HighWalk-In ClosetPantryBlindsBreakfast BarSound System WiringDouble Vanity
- Kitchen:
- DishwasherMicrowave OvenOvenDisposalStainless Steel AppliancesGas CooktopBuilt-In OvenSelf Cleaning OvenKitchen IslandCooktop
- Laundry facilities:
- DryerUtility/Laundry Room
- Lighting:
- Exterior LightingLighting
- Property amenities:
- BasementBackyardPatioYardSmart Home SystemPorch
- Rooms:
- Primary Bedroom On MainKitchenPowder RoomOffice/StudyDining RoomFamily RoomBreakfast AreaOpen Concept FloorplanPrimary Bedroom Downstairs
- Security system:
- Fire Alarm SystemSmoke DetectorCarbon Monoxide Detector

Get a consultation with our New Homes Expert
- See how your home builds wealth
- Plan your home-buying roadmap
- Discover hidden gems
Utility information
- Heating:
- Thermostat, Zoned Heating, Water Heater, Central Heating, Gas Heating, Tankless water heater
- Sewer:
- Public Sewer
- Utilities:
- Electricity Available, Natural Gas Available, Underground Utilities, Internet Cable, HVAC, Cable Available, Sewer Available, Water Available, High Speed Internet Access
- Water source:
- Public

Community details
Heritage
by M/I Homes, Dripping Springs, TX
- 44 homes
- 28 plans
- 1,403 - 3,318 sqft
View Heritage details
Community amenities
- Common Grounds
- Dog Park
- Playground
- Community Pool
- Park Nearby
- Picnic Area
- Cluster Mailbox
- Sidewalks Available
- Greenbelt View
- Hill Country View
- High Speed Internet Access
More homes in Heritage
- Home at address 118 Big Banyan Dr, Dripping Springs, TX 78620

Oakwood - Smart Series
$369,990
- 3 bd
- 2 ba
- 1,403 sqft
118 Big Banyan Dr, Dripping Springs, TX 78620
- Home at address 142 Big Banyan Dr, Dripping Springs, TX 78620

Oakwood - Smart Series
$385,990
- 3 bd
- 2 ba
- 1,444 sqft
142 Big Banyan Dr, Dripping Springs, TX 78620
- Home at address 150 Heritage Forest Pkwy, Dripping Springs, TX 78620

Oakwood - Smart Series
$394,990
- 3 bd
- 2 ba
- 1,444 sqft
150 Heritage Forest Pkwy, Dripping Springs, TX 78620
- Home at address 570 Darley Oak Dr, Dripping Springs, TX 78620

Costa - Central Series
$394,990
- 3 bd
- 2 ba
- 1,485 sqft
570 Darley Oak Dr, Dripping Springs, TX 78620
- Home at address 126 Big Banyan Dr, Dripping Springs, TX 78620

Somerset - Smart Series
$406,990
- 3 bd
- 2.5 ba
- 1,950 sqft
126 Big Banyan Dr, Dripping Springs, TX 78620
- Home at address 150 Big Banyan Dr, Dripping Springs, TX 78620

Somerset - Smart Series
$409,990
- 3 bd
- 2.5 ba
- 1,950 sqft
150 Big Banyan Dr, Dripping Springs, TX 78620
Floor plans in Heritage
About the builder - M/I Homes

- 142communities on Jome
- 1,754homes on Jome
Neighborhood
Home address
- City:
- Dripping Springs
- County:
- Hays
- Zip Code:
- 78620
Schools in Dripping Springs Independent School District
GreatSchools’ Summary Rating calculation is based on 4 of the school’s themed ratings, including test scores, student/academic progress, college readiness, and equity. This information should only be used as a reference. Jome is not affiliated with GreatSchools and does not endorse or guarantee this information. Please reach out to schools directly to verify all information and enrollment eligibility. Data provided by GreatSchools.org © 2025
Places of interest
Getting around
Air quality

Considering this home?
Our expert will guide your tour, in-person or virtual
Need more information?
Text or call (888) 545-5198
Financials
Estimated monthly payment
Let us help you find your dream home
How many bedrooms are you looking for?
Similar homes nearby
Recently added communities in this area
Nearby communities in Dripping Springs
New homes in nearby cities
More New Homes in Dripping Springs, TX
M/I Homes Realty, MLS 3653385
Based on information from the Austin Board of REALTORS® (alternatively, from ACTRIS) for the period through 08/13/2024. Neither the Board nor ACTRIS guarantees or is in any way responsible for its accuracy. All data is provided “AS IS” and with all faults. Data maintained by the Board or ACTRIS may not reflect all real estate activity in the market. Information being provided is for consumers’ personal, non-commercial use and may not be used for any purpose other than to identify prospective properties consumers may be interested in purchasing. The Digital Millennium Copyright Act of 1998, 17 U.S.C. § 512 (the “DMCA”) provides recourse for copyright owners who believe that material appearing on the Internet infringes their rights under U.S. copyright law. If you believe in good faith that any content or material made available in connection with our website or services infringes your copyright, you (or your agent) may send us a notice requesting that the content or material be removed, or access to it blocked. Notices must be sent in writing by email to DMCAnotice@MLSGrid.com. The DMCA requires that your notice of alleged copyright infringement include the following information: (1) description of the copyrighted work that is the subject of claimed infringement; (2) description of the alleged infringing content and information sufficient to permit us to locate the content; (3) contact information for you, including your address, telephone number and email address; (4) a statement by you that you have a good faith belief that the content in the manner complained of is not authorized by the copyright owner, or its agent, or by the operation of any law; (5) a statement by you, signed under penalty of perjury, that the information in the notification is accurate and that you have the authority to enforce the copyrights that are claimed to be infringed; and (6) a physical or electronic signature of the copyright owner or a person authorized to act on the copyright owner’s behalf. Failure to include all of the above information may result in the delay of the processing of your complaint.
Read moreLast checked Apr 18, 12:40 pm
- Jome
- New homes search
- Texas
- Greater Austin Area
- Hays County
- Dripping Springs
- Heritage
- 207 Bishop Wood Rd, Dripping Springs, TX 78620

































