









Book your tour. Save an average of $18,473. We'll handle the rest.
We collect exclusive builder offers, book your tours, and support you from start to housewarming.
- Confirmed tours
- Get matched & compare top deals
- Expert help, no pressure
- No added fees
Estimated value based on Jome data, T&C apply

































- 4 bd
- 3 ba
- 2,543 sqft
32406 Mimosa Ridge Ln, Waller, TX 77484
Why tour with Jome?
- No pressure toursTour at your own pace with no sales pressure
- Expert guidanceGet insights from our home buying experts
- Exclusive accessSee homes and deals not available elsewhere
Jome is featured in
- Single-Family
- $141.17/sqft
- $635/annual HOA
- South facing
Home description
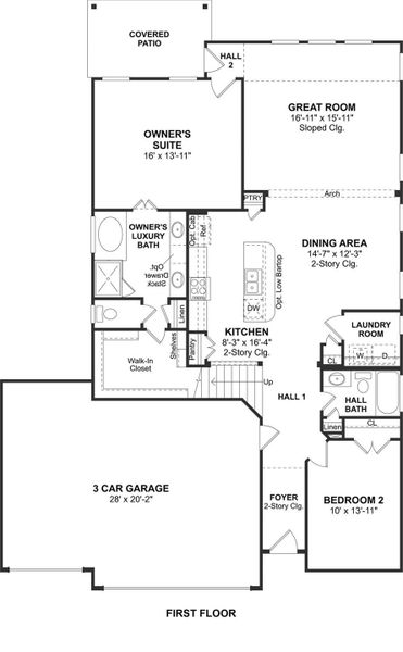
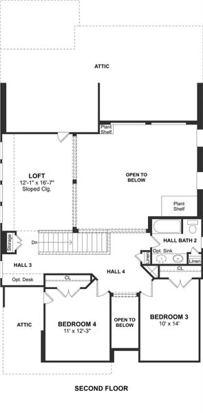
Move In Ready!! Welcome home to this incredible two-story Ashville home in Oakwood Estates, with 4 beds, 3 baths, and a 3-car attached garage! The gourmet kitchen is a true showstopper, featuring beautiful maple cabinets, sleek quartz countertops, and a farmhouse sink. This home is designed for convenience, with the owner's suite and a second bedroom both located downstairs, along with a full bath right next to it. The owner's luxury bath is a peaceful escape with a huge walk-in closet, dual sinks, and a separate tub and shower. Upstairs, you'll find a versatile loft and two more bedrooms, while a covered patio in the backyard is perfect for all your outdoor fun. Contact us today to schedule your personal tour! Amenities in this community include a clubhouse with pool and covered picnic pavilion, playground area and community pond. Offered by: K. Hovnanian Houston of Houston II, L.L.C.
K. Hovnanian Homes, MLS 89888088
May also be listed on the K. Hovnanian® Homes website
Information last verified by Jome: Yesterday at 2:31 AM (April 20, 2026)
Book your tour. Save an average of $18,473. We'll handle the rest.
We collect exclusive builder offers, book your tours, and support you from start to housewarming.
- Confirmed tours
- Get matched & compare top deals
- Expert help, no pressure
- No added fees
Estimated value based on Jome data, T&C apply
Home details
- Property status:
- Pending/Under contract
- Lot size (acres):
- 0.17
- Size:
- 2,543 sqft
- Stories:
- 2
- Beds:
- 4
- Baths:
- 3
- Garage spaces:
- 3
- Facing direction:
- South
Construction details
- Builder Name:
- K. Hovnanian® Homes
- Completion Date:
- November, 2025
- Year Built:
- 2025
- Roof:
- Composition Roofing
Home features & finishes
- Construction Materials:
- CementBrickStone
- Cooling:
- Ceiling Fan(s)
- Flooring:
- Carpet FlooringTile Flooring
- Foundation Details:
- Slab
- Garage/Parking:
- GarageAttached Garage
- Home amenities:
- Green Construction
- Interior Features:
- Ceiling-HighWired For SecurityWalk-In ClosetPantryLoft
- Kitchen:
- DishwasherMicrowave OvenOvenDisposalGas CooktopKitchen IslandGas Oven
- Laundry facilities:
- DryerWasherLaundry Facilities On Main LevelUtility/Laundry Room
- Property amenities:
- BackyardPatio
- Rooms:
- KitchenDining RoomFamily RoomPrimary Bedroom Downstairs

Get a consultation with our New Homes Expert
- See how your home builds wealth
- Plan your home-buying roadmap
- Discover hidden gems
Utility information
- Heating:
- Gas Heating
- Utilities:
- HVAC
- Water source:
- Public

Community details
Oakwood Estates at Oakwood Estates
by K. Hovnanian® Homes, Waller, TX
- 12 homes
- 9 plans
- 1,660 - 2,746 sqft
View Oakwood Estates details
More homes in Oakwood Estates
- Home at address 32238 River Birch Ln, Waller, TX 77484

Auburn
$259,000
- 4 bd
- 2 ba
- 1,938 sqft
32238 River Birch Ln, Waller, TX 77484
- Home at address 32203 River Birch Ln, Waller, TX 77484

Willard II
$384,900
- 4 bd
- 3 ba
- 2,584 sqft
32203 River Birch Ln, Waller, TX 77484
- Home at address 32310 Green Ash Dr, Waller, TX 77484

Elmore
$427,833
- 4 bd
- 3 ba
- 2,746 sqft
32310 Green Ash Dr, Waller, TX 77484
Floor plans in Oakwood Estates
About the builder - K. Hovnanian® Homes
Neighborhood
Home address
Schools in Waller Independent School District
GreatSchools’ Summary Rating calculation is based on 4 of the school’s themed ratings, including test scores, student/academic progress, college readiness, and equity. This information should only be used as a reference. Jome is not affiliated with GreatSchools and does not endorse or guarantee this information. Please reach out to schools directly to verify all information and enrollment eligibility. Data provided by GreatSchools.org © 2025
Places of interest
Getting around
Air quality

Considering this home?
Our expert will guide your tour, in-person or virtual
Need more information?
Text or call (888) 545-5198
Financials
Estimated monthly payment
Let us help you find your dream home
How many bedrooms are you looking for?
Similar homes nearby
Recently added communities in this area
Nearby communities in Waller
New homes in nearby cities
More New Homes in Waller, TX
K. Hovnanian Homes, MLS 89888088
Copyright © 2025, Houston Realtors Information Service, Inc. The information provided is exclusively for consumers’ personal, non-commercial use, and may not be used for any purpose other than to identify prospective properties consumers may be interested in purchasing. Information is deemed reliable but not guaranteed. All information provided should be independently verified.
Read moreLast checked Apr 20, 8:50 pm
- Jome
- New homes search
- Texas
- Greater Houston Area
- Waller County
- Waller
- Oakwood Estates
- 32406 Mimosa Ridge Ln, Waller, TX 77484





























