














Book your tour. Save an average of $18,473. We'll handle the rest.
- Confirmed tours
- Get matched & compare top deals
- Expert help, no pressure
- No added fees
Estimated value based on Jome data, T&C apply






Why tour with Jome?
- No pressure toursTour at your own pace with no sales pressure
- Expert guidanceGet insights from our home buying experts
- Exclusive accessSee homes and deals not available elsewhere
Jome is featured in
- Single-Family
- Quick move-in
- $225.95/sqft
- $70/monthly HOA
Home description
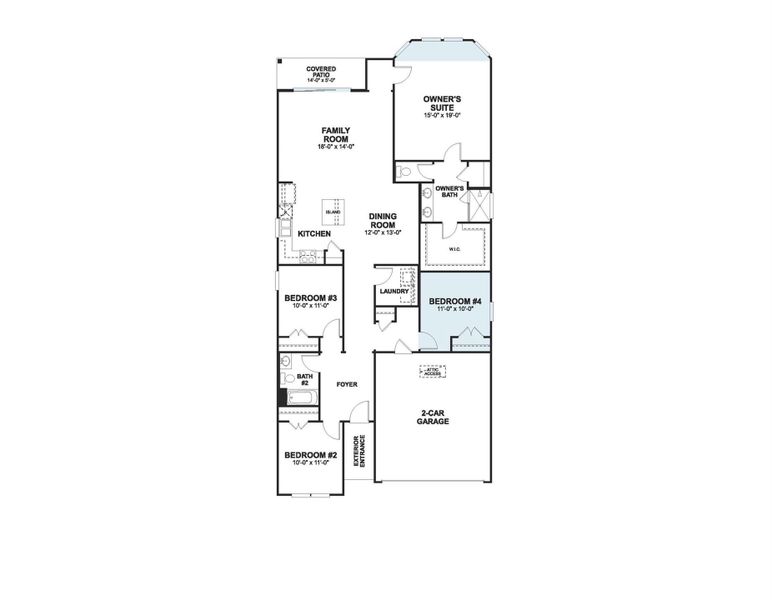
Discover this stunning new construction home at 812 Boise Drive in Leander, TX, offering 1,903 square feet of thoughtfully designed living space. Built by M/I Homes, this single-story home features an open-concept layout ideal for daily living and entertaining.
Key Features:
4 bedrooms including owner's bedroom in its own private corner
2 full bathrooms with quality fixtures and finishes
1,903 square feet of well-planned living space
Open-concept floorplan connecting kitchen, dining, and living areas
New construction with contemporary design and finishes
Neighborhood & Location Benefits:
Located in desirable Leander, TX
Convenient access to local parks and outdoor recreational opportunities
Family-friendly neighborhood with well-planned streets and amenities
The thoughtfully designed floorplan maximizes space and functionality while maintaining an inviting atmosphere. The open-concept living area provides seamless flow between rooms, perfect for both relaxation and hosting guests. Each bedroom offers comfortable accommodations, and the two bathrooms serve the household efficiently.
Built with attention to detail and quality craftsmanship, this home combines practical design with modern construction standards. Experience the benefits of a brand-new home in a welcoming Leander neighborhood.
M/I Homes Realty, MLS 2106443
May also be listed on the M/I Homes website
Information last verified by Jome: Yesterday at 12:40 PM (December 6, 2025)
Home highlights
Scenic Highland Lakes reservoir west of Austin, known for boating, cliffside views, and upscale lakefront living.
Book your tour. Save an average of $18,473. We'll handle the rest.
We collect exclusive builder offers, book your tours, and support you from start to housewarming.
- Confirmed tours
- Get matched & compare top deals
- Expert help, no pressure
- No added fees
Estimated value based on Jome data, T&C apply
Home details
- Property status:
- Move-in ready
- Lot size (acres):
- 0.12
- Size:
- 1,903 sqft
- Stories:
- 1
- Beds:
- 4
- Baths:
- 2
- Garage spaces:
- 2
- Fence:
- Wood Fence, Privacy Fence
- Facing direction:
- West
Construction details
- Builder Name:
- M/I Homes
- Completion Date:
- January, 2026
- Year Built:
- 2025
- Roof:
- Composition Roofing, Shingle Roofing
Home features & finishes
- Appliances:
- Water SoftenerSprinkler System
- Construction Materials:
- BrickStone
- Cooling:
- Ceiling Fan(s)Central Air
- Flooring:
- Carpet FlooringTile Flooring
- Foundation Details:
- Slab
- Garage/Parking:
- Door OpenerGarageFront Entry Garage/ParkingAttached Garage
- Home amenities:
- Green Construction
- Interior Features:
- Ceiling-HighWalk-In ClosetPantryBlindsDouble Vanity
- Kitchen:
- DishwasherMicrowave OvenDisposalStainless Steel AppliancesGas CooktopKitchen IslandFurnished KitchenGas OvenKitchen Range
- Laundry facilities:
- DryerUtility/Laundry Room
- Lighting:
- Exterior LightingLighting
- Property amenities:
- BasementBathtub in primaryPatioYardSmart Home SystemPorch
- Rooms:
- Primary Bedroom On MainPowder RoomOffice/StudyDining RoomFamily RoomOpen Concept FloorplanPrimary Bedroom Downstairs
- Security system:
- Smoke DetectorCarbon Monoxide Detector
Utility information
- Heating:
- Electric Heating, Zoned Heating, Water Heater, Central Heating, Tankless water heater
- Utilities:
- Natural Gas Available, Natural Gas on Property, Underground Utilities, Internet Cable, Internet-Fiber, Phone Available, HVAC, Cable Available, Sewer Available, Water Available

Community details
Cedar Brook
by M/I Homes, Leander, TX
- 16 homes
- 10 plans
- 1,690 - 2,679 sqft
View Cedar Brook details
Community amenities
- Common Grounds
- Playground
- Multigenerational Homes Available
- Cluster Mailbox
- Sidewalks Available
More homes in Cedar Brook
Floor plans in Cedar Brook
About the builder - M/I Homes
Neighborhood
Home address
- City:
- Leander
- County:
- Williamson
- Zip Code:
- 78641
Schools in Leander Independent School District
- Grades PK-KGPrivateprimrose school of crystal falls1.8 mi1781 osage drna
GreatSchools’ Summary Rating calculation is based on 4 of the school’s themed ratings, including test scores, student/academic progress, college readiness, and equity. This information should only be used as a reference. Jome is not affiliated with GreatSchools and does not endorse or guarantee this information. Please reach out to schools directly to verify all information and enrollment eligibility. Data provided by GreatSchools.org © 2025
Places of interest
Getting around
Air quality
Noise level
A Soundscore™ rating is a number between 50 (very loud) and 100 (very quiet) that tells you how loud a location is due to environmental noise.
Natural hazards risk
Climate hazards can impact homes and communities, with risks varying by location. These scores reflect the potential impact of natural disasters and climate-related risks on Williamson County
Provided by FEMA

Considering this home?
Our expert will guide your tour, in-person or virtual
Need more information?
Text or call (888) 486-2818
Financials
Estimated monthly payment
Similar homes nearby
Recently added communities in this area
Nearby communities in Leander
New homes in nearby cities
More New Homes in Leander, TX
M/I Homes Realty, MLS 2106443
Based on information from the Austin Board of REALTORS® (alternatively, from ACTRIS) for the period through 08/13/2024. Neither the Board nor ACTRIS guarantees or is in any way responsible for its accuracy. All data is provided “AS IS” and with all faults. Data maintained by the Board or ACTRIS may not reflect all real estate activity in the market. Information being provided is for consumers’ personal, non-commercial use and may not be used for any purpose other than to identify prospective properties consumers may be interested in purchasing. The Digital Millennium Copyright Act of 1998, 17 U.S.C. § 512 (the “DMCA”) provides recourse for copyright owners who believe that material appearing on the Internet infringes their rights under U.S. copyright law. If you believe in good faith that any content or material made available in connection with our website or services infringes your copyright, you (or your agent) may send us a notice requesting that the content or material be removed, or access to it blocked. Notices must be sent in writing by email to DMCAnotice@MLSGrid.com. The DMCA requires that your notice of alleged copyright infringement include the following information: (1) description of the copyrighted work that is the subject of claimed infringement; (2) description of the alleged infringing content and information sufficient to permit us to locate the content; (3) contact information for you, including your address, telephone number and email address; (4) a statement by you that you have a good faith belief that the content in the manner complained of is not authorized by the copyright owner, or its agent, or by the operation of any law; (5) a statement by you, signed under penalty of perjury, that the information in the notification is accurate and that you have the authority to enforce the copyrights that are claimed to be infringed; and (6) a physical or electronic signature of the copyright owner or a person authorized to act on the copyright owner’s behalf. Failure to include all of the above information may result in the delay of the processing of your complaint.
Read moreLast checked Dec 7, 12:40 am
- Home
- New homes
- Texas
- Greater Austin Area
- Williamson County
- Leander
- Cedar Brook
- 812 Boise Dr, Leander, TX 78641




































