





















- 5 bd
- 3 ba
- 2,240 sqft
9200 Furman Dr, Austin, TX 78747
- Single-Family
- $176.33/sqft
- $120/quarterly HOA
- East facing
New Homes for Sale Near 9200 Furman Dr, Austin, TX 78747
About this Home
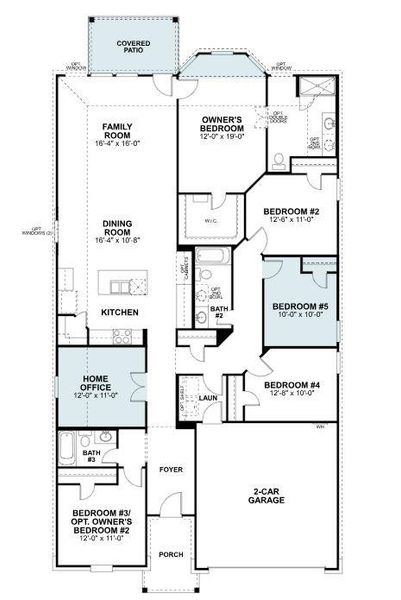
Welcome to the Balboa floorplan, a charming 1-story home in our new Smart Series that features 5 bedrooms, 3 bathrooms, as study, a 2-car garage, and boasts 2,240 square feet of flexible living space that can fit your family’s lifestyle! The kitchen, dining area, and family room create a spacious and unified space that you will love to entertain in. Enjoy an impressive kitchen finished with granite countertops, upper and lower cabinets, and a large island. The entertaining doesn’t have to stop inside, there is a covered back patio to this floorplan. The owner's bedroom awaits through a private entry off the family room and includes a large walk-in closet. Your owner's bath is complete with double vanities, private water closet, and a great walk-in shower.
May also be listed on the M/I Homes website
Information last verified by Jome: Wednesday at 6:51 AM (January 7, 2026)
Home details
- Property status:
- Sold
- Lot size (acres):
- 0.14
- Size:
- 2,240 sqft
- Stories:
- 1
- Beds:
- 5
- Baths:
- 3
- Garage spaces:
- 2
- Fence:
- Wood Fence, Privacy Fence
- Facing direction:
- East
Construction details
- Builder Name:
- M/I Homes
- Completion Date:
- January, 2026
- Year Built:
- 2025
- Roof:
- Composition Roofing
Home features & finishes
- Appliances:
- Exhaust Fan
- Construction Materials:
- Brick
- Cooling:
- Central Air
- Flooring:
- Vinyl FlooringCarpet FlooringTile Flooring
- Foundation Details:
- Slab
- Garage/Parking:
- GarageFront Entry Garage/ParkingAttached Garage
- Home amenities:
- Green Construction
- Interior Features:
- Ceiling-HighCeiling-VaultedWalk-In ClosetPantryFrench DoorsDouble Vanity
- Kitchen:
- DishwasherMicrowave OvenDisposalStainless Steel AppliancesGas CooktopSelf Cleaning OvenKitchen IslandGas OvenKitchen Range
- Laundry facilities:
- Dryer
- Lighting:
- Exterior LightingLighting
- Property amenities:
- BackyardYardPorch
- Rooms:
- Primary Bedroom On MainOpen Concept FloorplanPrimary Bedroom Downstairs
- Security system:
- Smoke DetectorCarbon Monoxide Detector
Utility information
- Heating:
- Thermostat, Zoned Heating, Water Heater, Central Heating, Gas Heating, Tankless water heater
- Utilities:
- Electricity Available, Natural Gas Available, Underground Utilities, Internet Cable, Internet-Fiber, Phone Available, HVAC, Cable Available, Sewer Available, Water Available

Community details
Marble Creek Crossing
by M/I Homes, Austin, TX
- 19 homes
- 14 plans
- 1,485 - 2,602 sqft
View Marble Creek Crossing details
Community amenities
- Common Grounds
- Park Nearby
- Cluster Mailbox
- Sidewalks Available
- Greenbelt View
- Waterfront View
- High Speed Internet Access
More homes in Marble Creek Crossing
- Home at address 9221 Corvallis Dr, Austin, TX 78747

$393,990
Under construction- 5 bd
- 3 ba
- 2,324 sqft
9221 Corvallis Dr, Austin, TX 78747
- Home at address 9300 Corvallis Dr, Austin, TX 78747

$407,990
Move-in ready- 5 bd
- 3 ba
- 2,453 sqft
9300 Corvallis Dr, Austin, TX 78747
- Home at address 9017 Furman Dr, Austin, TX 78747

Contact for price
Move-in ready- 5 bd
- 3 ba
- 2,456 sqft
9017 Furman Dr, Austin, TX 78747
Floor plans in Marble Creek Crossing
About the builder - M/I Homes

- 138communities on Jome
- 1,814homes on Jome
Neighborhood
Home address
Schools in Del Valle Independent School District
GreatSchools’ Summary Rating calculation is based on 4 of the school’s themed ratings, including test scores, student/academic progress, college readiness, and equity. This information should only be used as a reference. Jome is not affiliated with GreatSchools and does not endorse or guarantee this information. Please reach out to schools directly to verify all information and enrollment eligibility. Data provided by GreatSchools.org © 2025
Places of interest
Getting around
Air quality
Noise level
A Soundscore™ rating is a number between 50 (very loud) and 100 (very quiet) that tells you how loud a location is due to environmental noise.
Financials
Nearby communities in Austin
Homes in Austin Neighborhoods
Homes in Austin by M/I Homes
Recently added communities in this area
Other Builders in Austin, TX
Nearby sold homes
New homes in nearby cities
More New Homes in Austin, TX
- Jome
- New homes search
- Texas
- Greater Austin Area
- Travis County
- Austin
- Marble Creek Crossing
- 9200 Furman Dr, Austin, TX 78747









































































