














Book your tour. Save an average of $18,473. We'll handle the rest.
We collect exclusive builder offers, book your tours, and support you from start to housewarming.
- Confirmed tours
- Get matched & compare top deals
- Expert help, no pressure
- No added fees
Estimated value based on Jome data, T&C apply





























- 3 bd
- 2 ba
- 1,080 sqft
177 County Rd 3689, Hawkins, TX 75755
Why tour with Jome?
- No pressure toursTour at your own pace with no sales pressure
- Expert guidanceGet insights from our home buying experts
- Exclusive accessSee homes and deals not available elsewhere
Jome is featured in
- Single-Family
- Quick move-in
- $202.78/sqft
- 0.58-acre lot
Home description
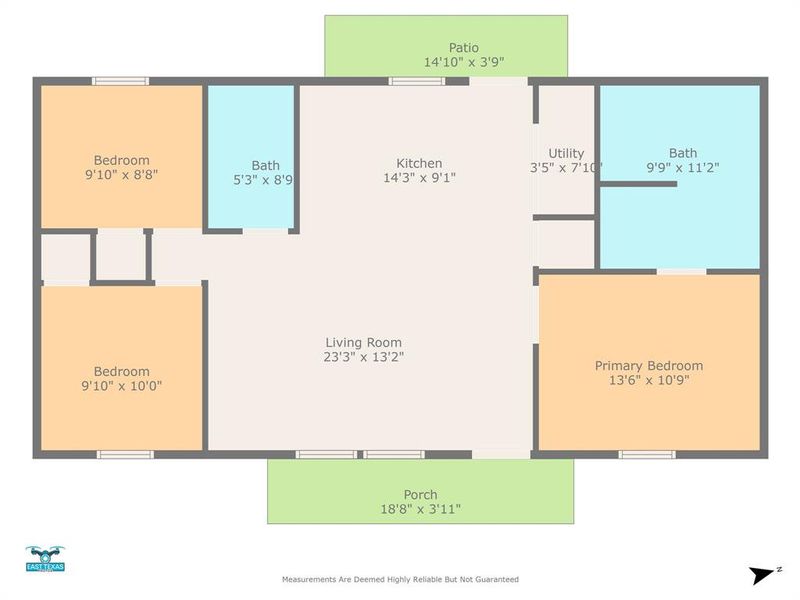
Welcome to this beautiful 3 bed, 2 bath, home offering modern comfort with a touch of country charm. Built just one year ago and never lived in, this home feels brand new and features 1,080 sq. ft. of thoughtfully designed living space. The open-concept layout with abundant natural light and vaulted ceiling gives you lots of space. The kitchen comes equipped with a refrigerator, space savor microwave, electric range and a dishwasher. The full size bathrooms give you plenty of room and the primary bedroom has it's own large walk-in closet. Outside the designer metal siding gives you durability with a stylish look and the abundance of trees offer lots of shade during those hot summer months. Set on a generous .58-acre lot, you will have plenty of space to build a workshop or just to sit back and enjoy the peace and quiet. This home is the perfect blend of modern construction and rustic charm giving you the best of both worlds, a country feel with quick access to city amenities. Don’t miss this one—schedule your private showing today!
Worth Clark Realty, MLS 21036040
Information last verified by Jome: Today at 1:33 AM (March 3, 2026)
Book your tour. Save an average of $18,473. We'll handle the rest.
We collect exclusive builder offers, book your tours, and support you from start to housewarming.
- Confirmed tours
- Get matched & compare top deals
- Expert help, no pressure
- No added fees
Estimated value based on Jome data, T&C apply
Home details
- Property status:
- Move-in ready
- Lot size (acres):
- 0.58
- Size:
- 1,080 sqft
- Stories:
- 1
- Beds:
- 3
- Baths:
- 2
- Fence:
- No Fence
Construction details
- Year Built:
- 2024
- Roof:
- Metal Roofing
Home features & finishes
- Appliances:
- Exhaust Fan Vented
- Cooling:
- Ceiling Fan(s)Central Air
- Foundation Details:
- Slab
- Interior Features:
- Ceiling-VaultedPantry
- Kitchen:
- DishwasherMicrowave OvenRefrigeratorKitchen Range
- Laundry facilities:
- DryerWasherUtility/Laundry Room
- Rooms:
- Primary Bedroom On MainOpen Concept FloorplanPrimary Bedroom Downstairs

Get a consultation with our New Homes Expert
- See how your home builds wealth
- Plan your home-buying roadmap
- Discover hidden gems
Utility information
- Heating:
- Electric Heating, Water Heater, Central Heating
- Utilities:
- Electricity Available, City Water System, Aerobic Septic System
Neighborhood
Home address
Schools in Big Sandy Independent School District
GreatSchools’ Summary Rating calculation is based on 4 of the school’s themed ratings, including test scores, student/academic progress, college readiness, and equity. This information should only be used as a reference. Jome is not affiliated with GreatSchools and does not endorse or guarantee this information. Please reach out to schools directly to verify all information and enrollment eligibility. Data provided by GreatSchools.org © 2025
Places of interest
Getting around
Air quality
Natural hazards risk
Provided by FEMA

Considering this home?
Our expert will guide your tour, in-person or virtual
Need more information?
Text or call (888) 488-9243
Financials
Estimated monthly payment
Let us help you find your dream home
How many bedrooms are you looking for?
Similar homes nearby
Recently added communities in this area
Nearby communities in Hawkins
New homes in nearby cities
More New Homes in Hawkins, TX
Worth Clark Realty, MLS 21036040
IDX information is provided exclusively for personal, non-commercial use, and may not be used for any purpose other than to identify prospective properties consumers may be interested in purchasing. You may not reproduce or redistribute this data, it is for viewing purposes only. This data is deemed reliable, but is not guaranteed accurate by the MLS or NTREIS.
Read moreLast checked Mar 3, 4:00 pm
- Jome
- New homes search
- Texas
- Wood County
- Hawkins
- 177 County Rd 3689, Hawkins, TX 75755









