














Book your tour. Save an average of $18,473. We'll handle the rest.
- Confirmed tours
- Get matched & compare top deals
- Expert help, no pressure
- No added fees
Estimated value based on Jome data, T&C apply































- 3 bd
- 3.5 ba
- 3,284 sqft
250 E Dallas Rd, Unit 119, Grapevine, TX 76051
Why tour with Jome?
- No pressure toursTour at your own pace with no sales pressure
- Expert guidanceGet insights from our home buying experts
- Exclusive accessSee homes and deals not available elsewhere
Jome is featured in
- Condo
- Under construction
- $459.81/sqft
- $400/monthly HOA
Home description
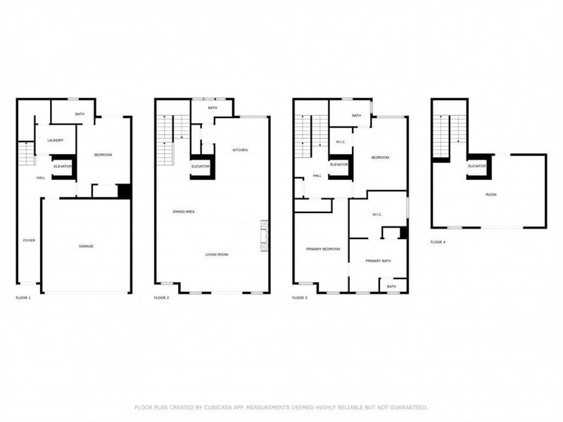
New construction!!! Welcome to The Grapevine Brownstones Phase 2! This a a limited opportunity to own a luxury Lock and Leave Residence in the heart of Grapevine across from Hotel Vin, steps from Historic Main St, Peace Plaza, Harvest Hall and The Grapevine REC. A short walk across Dallas Rd to the TEX Rail which will drop you at DFW Airport or Ft. Worth and the The Grapevine Vintage RR with special excursions including the Stockyards and the Christmas Train. This sought after Bordeaux Residence is one of the larger Residences with 4 stories, 3 bdrm, 3.5 bath, 2 car garage and a 4th floor rooftop patio. Features include 12 foot ceilings throughout the second floor with a beautiful balcony off the living that spans across the front of the home. This home also features two dedicated parking spots in front of the garage, extra storage under the stairs and two laundry rooms. The homes are built elevator ready and buyers have option to install after closing. Enjoy a front row seat to many of the special events Grapevine offers including Main St Days, Grapefest, and all that comes with being The Christmas Capital of Texas. Walking is easy with a 75 Walkscore and also quick access to highways, Southlake Town Square, and DFW Airport. Residences pictured are representative of Phase 2 homes which are under construction and estimated to be completed 4th qtr of 2026.
Sundance Real Estate, LLC, MLS 21026328
Information last verified by Jome: Today at 12:43 AM (January 18, 2026)
Book your tour. Save an average of $18,473. We'll handle the rest.
We collect exclusive builder offers, book your tours, and support you from start to housewarming.
- Confirmed tours
- Get matched & compare top deals
- Expert help, no pressure
- No added fees
Estimated value based on Jome data, T&C apply
Home details
- Property status:
- Under construction
- Lot size (acres):
- 0.04
- Size:
- 3,284 sqft
- Beds:
- 3
- Baths:
- 3
- Half baths:
- 1
- Garage spaces:
- 2
Construction details
- Year Built:
- 2026
Home features & finishes
- Construction Materials:
- Brick
- Cooling:
- Ceiling Fan(s)Central Air
- Garage/Parking:
- GarageRear Entry Garage/ParkingAttached Garage
- Interior Features:
- Pantry
- Kitchen:
- Gas CooktopKitchen Island
- Lighting:
- Decorative/Designer Lighting

Get a consultation with our New Homes Expert
- See how your home builds wealth
- Plan your home-buying roadmap
- Discover hidden gems
Utility information
- Heating:
- Water Heater, Gas Heating, Tankless water heater
- Utilities:
- City Water System, Individual Water Meter, Individual Gas Meter, Cable TV
Neighborhood
Home address
Schools in Grapevine-Colleyville Independent School District
GreatSchools’ Summary Rating calculation is based on 4 of the school’s themed ratings, including test scores, student/academic progress, college readiness, and equity. This information should only be used as a reference. Jome is not affiliated with GreatSchools and does not endorse or guarantee this information. Please reach out to schools directly to verify all information and enrollment eligibility. Data provided by GreatSchools.org © 2025
Places of interest
Getting around
Air quality
Natural hazards risk
Provided by FEMA

Considering this home?
Our expert will guide your tour, in-person or virtual
Need more information?
Text or call (888) 486-2818
Financials
Estimated monthly payment
Let us help you find your dream home
How many bedrooms are you looking for?
Similar homes nearby
Recently added communities in this area
Nearby communities in Grapevine
New homes in nearby cities
More New Homes in Grapevine, TX
Sundance Real Estate, LLC, MLS 21026328
IDX information is provided exclusively for personal, non-commercial use, and may not be used for any purpose other than to identify prospective properties consumers may be interested in purchasing. You may not reproduce or redistribute this data, it is for viewing purposes only. This data is deemed reliable, but is not guaranteed accurate by the MLS or NTREIS.
Read moreLast checked Jan 18, 10:00 am
- Jome
- New homes search
- Texas
- Dallas-Fort Worth Area
- Tarrant County
- Grapevine
- 250 E Dallas Rd, Unit 119, Grapevine, TX 76051























