





















- 3 bd
- 2.5 ba
- 1,518 sqft
5716 Jennifer Pasture Path, Del Valle, TX 78617
- Single-Family
- $199.47/sqft
- $225/quarterly HOA
- Southwest facing
New Homes for Sale Near 5716 Jennifer Pasture Path, Del Valle, TX 78617
About this Home
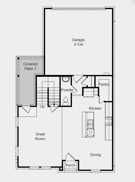
New Construction - Ready Now! Built by Taylor Morrison, America's Most Trusted Homebuilder. Welcome to the Carmichael 2 at 5716 Jennifer Pasture Path in Longview! Step into this inviting two-story home where an open layout connects the spacious great room, dining area, and contemporary kitchen—perfect for hosting. The kitchen features stainless steel appliances, a center island, and a roomy pantry, with a powder room and two coat closets nearby for added storage. Upstairs, the private primary suite includes a large bath, linen storage, and a walk-in closet. Two secondary bedrooms, a full bath, and laundry complete the second floor. Located in a vibrant community filled with amenities, you’ll enjoy a beach-entry pool, pickleball courts, playscapes, scenic trails, pocket parks, butterfly and rain gardens, and a welcoming Amenity Center. Additional highlights include: covered back patio. Photos are for representative purposes only.
May also be listed on the Taylor Morrison website
Information last verified by Jome: Wednesday at 6:49 AM (January 7, 2026)
Home details
- Property status:
- Sold
- Lot size (acres):
- 0.10
- Size:
- 1,518 sqft
- Stories:
- 2
- Beds:
- 3
- Baths:
- 2.5
- Garage spaces:
- 2
- Fence:
- Wood Fence, Privacy Fence
- Facing direction:
- Southwest
Construction details
- Builder Name:
- Taylor Morrison
- Completion Date:
- September, 2025
- Year Built:
- 2025
- Roof:
- Composition Roofing
Home features & finishes
- Appliances:
- Sprinkler System
- Construction Materials:
- Stone
- Cooling:
- Ceiling Fan(s)Central Air
- Flooring:
- Carpet FlooringTile Flooring
- Foundation Details:
- Slab
- Garage/Parking:
- Door OpenerGarageAttached Garage
- Home amenities:
- Green Construction
- Interior Features:
- Ceiling-HighWalk-In ClosetPantryBlinds
- Kitchen:
- Stainless Steel AppliancesGas CooktopKitchen IslandGas OvenKitchen RangeElectric Oven
- Laundry facilities:
- Laundry Facilities On Upper LevelDryerUtility/Laundry Room
- Lighting:
- Lighting
- Property amenities:
- SodPatioPorch
- Rooms:
- Flex RoomKitchenPowder RoomOffice/StudyGuest RoomDining RoomFamily RoomOpen Concept FloorplanPrimary Bedroom Upstairs
- Security system:
- Smoke DetectorCarbon Monoxide Detector
Utility information
- Heating:
- Water Heater, Central Heating, Tankless water heater
- Utilities:
- Electricity Available, Natural Gas Available, Underground Utilities, HVAC, Water Available

Community details
Longview 40s - Alley
by Taylor Morrison, Del Valle, TX
- 8 homes
- 10 plans
- 1,282 - 1,932 sqft
View Longview 40s - Alley details
Community amenities
- Common Grounds
- Club House
- Sport Court
- Community Pool
- Sport Facility
- Sidewalks Available
More homes in Longview 40s - Alley
- Home at address 5916 Swedish Farms Ter, Del Valle, TX 78617

$294,690
Under construction- 3 bd
- 2 ba
- 1,305 sqft
5916 Swedish Farms Ter, Del Valle, TX 78617
- Home at address 14120 Gilwell Dr, Del Valle, TX 78617

$295,990
Under construction- 3 bd
- 2 ba
- 1,282 sqft
14120 Gilwell Dr, Del Valle, TX 78617
- Home at address 6009 Swedish Farms Ter, Del Valle, TX 78617

$300,690
Move-in ready- 3 bd
- 2.5 ba
- 1,518 sqft
6009 Swedish Farms Ter, Del Valle, TX 78617
- Home at address 6004 Alfred Acres Dr, Del Valle, TX 78617

$303,650
Move-in ready- 3 bd
- 2.5 ba
- 1,518 sqft
6004 Alfred Acres Dr, Del Valle, TX 78617
- Home at address 5812 Swedish Farms Ter, Del Valle, TX 78617

$303,750
Under construction- 3 bd
- 2.5 ba
- 1,572 sqft
5812 Swedish Farms Ter, Del Valle, TX 78617
- Home at address 5908 Swedish Farms Ter, Del Valle, TX 78617

$310,690
Under construction- 3 bd
- 2.5 ba
- 1,693 sqft
5908 Swedish Farms Ter, Del Valle, TX 78617
Floor plans in Longview 40s - Alley
About the builder - Taylor Morrison

- 259communities on Jome
- 1,414homes on Jome
Neighborhood
Home address
Schools in Del Valle Independent School District
GreatSchools’ Summary Rating calculation is based on 4 of the school’s themed ratings, including test scores, student/academic progress, college readiness, and equity. This information should only be used as a reference. Jome is not affiliated with GreatSchools and does not endorse or guarantee this information. Please reach out to schools directly to verify all information and enrollment eligibility. Data provided by GreatSchools.org © 2025
Places of interest
Getting around
1 nearby routes: 1 bus, 0 rail, 0 otherAir quality
Noise level
A Soundscore™ rating is a number between 50 (very loud) and 100 (very quiet) that tells you how loud a location is due to environmental noise.
Financials
Nearby communities in Del Valle
Homes in Del Valle by Taylor Morrison
Recently added communities in this area
Other Builders in Del Valle, TX
Nearby sold homes
New homes in nearby cities
More New Homes in Del Valle, TX
- Jome
- New homes search
- Texas
- Greater Austin Area
- Travis County
- Del Valle
- Longview 40s - Alley
- 5716 Jennifer Pasture Path, Del Valle, TX 78617







































































