









Book your tour. Save an average of $18,473. We'll handle the rest.
We collect exclusive builder offers, book your tours, and support you from start to housewarming.
- Confirmed tours
- Get matched & compare top deals
- Expert help, no pressure
- No added fees
Estimated value based on Jome data, T&C apply



























Why tour with Jome?
- No pressure toursTour at your own pace with no sales pressure
- Expert guidanceGet insights from our home buying experts
- Exclusive accessSee homes and deals not available elsewhere
Jome is featured in
- Single-Family
- Quick move-in
- $221.14/sqft
- $1,200/annual HOA
Home description
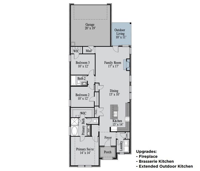
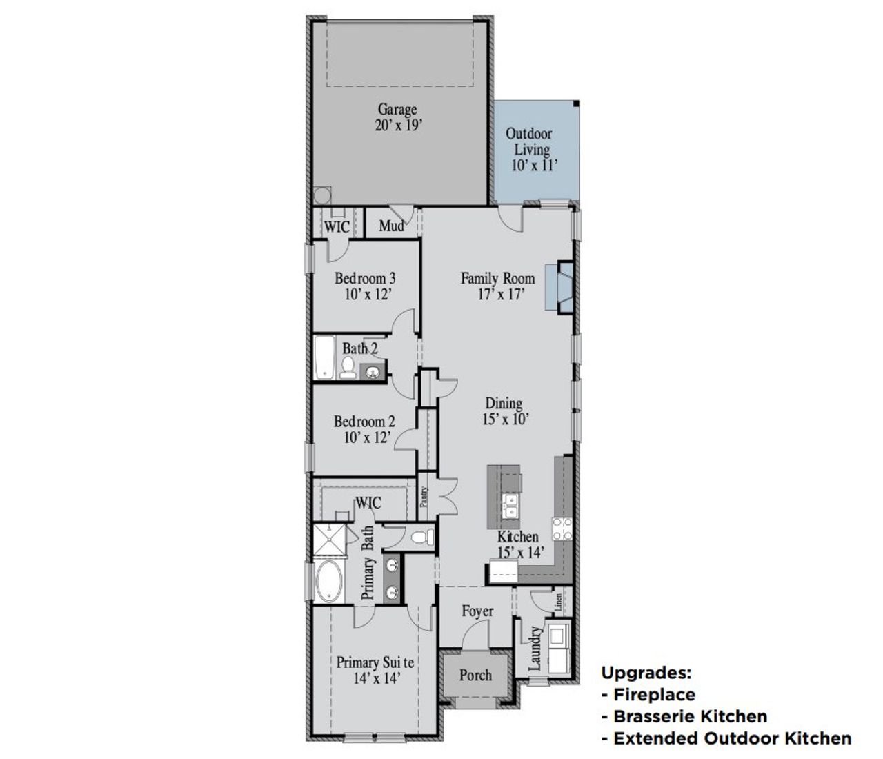
This inviting single-story home features 3 bedrooms, 2 bathrooms, and a bright open layout designed for modern living. The kitchen boasts a spacious island and walk-in pantry, flowing seamlessly into the dining area and family room for effortless entertaining. A private primary suite offers a spa-like bath with dual vanities, a soaking tub, and a large walk-in closet. Two additional bedrooms share a full bath, while a mudroom, laundry, and extra storage add everyday convenience. With a covered outdoor living space and a 2-car garage, this home perfectly blends comfort, functionality, and style.
May also be listed on the UnionMain Homes website
Information last verified by Jome: Yesterday at 10:49 AM (April 2, 2026)
Book your tour. Save an average of $18,473. We'll handle the rest.
We collect exclusive builder offers, book your tours, and support you from start to housewarming.
- Confirmed tours
- Get matched & compare top deals
- Expert help, no pressure
- No added fees
Estimated value based on Jome data, T&C apply
Home details
- Property status:
- Move-in ready
- Size:
- 1,646 sqft
- Stories:
- 1
- Beds:
- 3
- Baths:
- 2
- Garage spaces:
- 2
- Facing direction:
- Southeast
Construction details
- Builder Name:
- UnionMain Homes
- Completion Date:
- November, 2025
Home features & finishes
- Garage/Parking:
- GarageAttached Garage
- Interior Features:
- Walk-In ClosetFoyerPantry
- Kitchen:
- Kitchen Island
- Laundry facilities:
- Utility/Laundry Room
- Property amenities:
- BasementOutdoor LivingPatioFireplacePorch
- Rooms:
- Primary Bedroom On MainKitchenMudroomDining RoomFamily RoomPrimary Bedroom Downstairs

Get a consultation with our New Homes Expert
- See how your home builds wealth
- Plan your home-buying roadmap
- Discover hidden gems

Community details
Edgewater at Edgewater
by UnionMain Homes, Fate, TX
- 9 homes
- 17 plans
- 1,646 - 3,668 sqft
View Edgewater details
More homes in Edgewater
- Home at address 204 Golden Run Dr, Fate, TX 75189

Hawthorne
Savings$364,000
- 3 bd
- 2 ba
- 1,754 sqft
204 Golden Run Dr, Fate, TX 75189
- Home at address 620 Blakelys Wy, Fate, TX 75189

The Cedar
Savings$391,000
- 4 bd
- 2 ba
- 1,954 sqft
620 Blakelys Wy, Fate, TX 75189
- Home at address 204 Golden Run, Fate, TX 75189

The Hawthorne
Savings$431,450
- 3 bd
- 2 ba
- 1,754 sqft
204 Golden Run, Fate, TX 75189
- Home at address 276 Bassett Hall Rd, Fate, TX 75189

The Willow
Savings$434,000
- 5 bd
- 3 ba
- 2,597 sqft
276 Bassett Hall Rd, Fate, TX 75189
- Home at address 411 Sedgwick Dr, Fate, TX 75189

The Jackson
Savings$569,000
- 4 bd
- 3.5 ba
- 2,931 sqft
411 Sedgwick Dr, Fate, TX 75189
- Home at address 403 Sedgwick Dr, Fate, TX 75189

The Travis
Savings$599,000
- 4 bd
- 3.5 ba
- 2,843 sqft
403 Sedgwick Dr, Fate, TX 75189
Floor plans in Edgewater
About the builder - UnionMain Homes
Neighborhood
Home address
Schools in Rockwall Independent School District
- Grades 09-09Publicnew 9th center south side4.0 mi2727 s john king blvdna
GreatSchools’ Summary Rating calculation is based on 4 of the school’s themed ratings, including test scores, student/academic progress, college readiness, and equity. This information should only be used as a reference. Jome is not affiliated with GreatSchools and does not endorse or guarantee this information. Please reach out to schools directly to verify all information and enrollment eligibility. Data provided by GreatSchools.org © 2025
Places of interest
Getting around
Air quality
Noise level
A Soundscore™ rating is a number between 50 (very loud) and 100 (very quiet) that tells you how loud a location is due to environmental noise.

Considering this home?
Our expert will guide your tour, in-person or virtual
Need more information?
Text or call (888) 545-5198
Financials
Estimated monthly payment
Let us help you find your dream home
How many bedrooms are you looking for?
Similar homes nearby
Recently added communities in this area
Nearby communities in Fate
New homes in nearby cities
More New Homes in Fate, TX
- Jome
- New homes search
- Texas
- Dallas-Fort Worth Area
- Rockwall County
- Fate
- Edgewater
- 272 Bassett Hall Rd, Fate, TX 75189






























