














Book your tour. Save an average of $18,473. We'll handle the rest.
- Confirmed tours
- Get matched & compare top deals
- Expert help, no pressure
- No added fees
Estimated value based on Jome data, T&C apply




















Why tour with Jome?
- No pressure toursTour at your own pace with no sales pressure
- Expert guidanceGet insights from our home buying experts
- Exclusive accessSee homes and deals not available elsewhere
Jome is featured in
- Single-Family
- Quick move-in
- $154.84/sqft
- $500/annual HOA
Home description
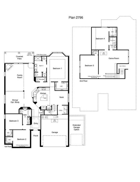
The Newburgh floorplan, with approximately 3,043 sq. ft., gives you the perfect space in this 5 bedroom, 3.5 bath layout. Park your car or store your belongings in the attached 3 car garage. When you walk in the door, you’ll have access to 2 secondary bedrooms and a secondary bathroom. Walking further down the hall, you will enter the dining room with the option of study and family room. Enjoy the covered patio that is connected to the family room. The primary bedroom comes with a spacious walk-in closet and bathroom with a double vanity sink and a walk-in shower. Enjoy the spacious kitchen with its beautiful shaker style cabinetry and decorative tile backsplash, along with stainless-steel appliances.
Find access to the laundry room and garage from the kitchen that is right next to the stairs leading to the second floor where you will immediately find the game room, with access to 2 secondary bedrooms with walk-in close
D.R. Horton, MLS 6820000
May also be listed on the D.R. Horton website
Information last verified by Jome: Today at 2:34 AM (January 17, 2026)
Book your tour. Save an average of $18,473. We'll handle the rest.
We collect exclusive builder offers, book your tours, and support you from start to housewarming.
- Confirmed tours
- Get matched & compare top deals
- Expert help, no pressure
- No added fees
Estimated value based on Jome data, T&C apply
Home details
- Property status:
- Move-in ready
- Lot size (acres):
- 0.29
- Size:
- 3,043 sqft
- Stories:
- 2
- Beds:
- 5
- Baths:
- 3
- Half baths:
- 1
- Garage spaces:
- 3
Construction details
- Builder Name:
- D.R. Horton
- Year Built:
- 2025
- Roof:
- Composition Roofing
Home features & finishes
- Construction Materials:
- CementBrick
- Flooring:
- Carpet FlooringTile Flooring
- Foundation Details:
- Slab
- Garage/Parking:
- GarageAttached Garage
- Home amenities:
- Green Construction
- Interior Features:
- Walk-In ClosetBreakfast Bar
- Kitchen:
- DishwasherMicrowave OvenOvenDisposalGas CooktopGas OvenKitchen Range
- Laundry facilities:
- Dryer
- Property amenities:
- BarBackyard
- Rooms:
- Kitchen

Get a consultation with our New Homes Expert
- See how your home builds wealth
- Plan your home-buying roadmap
- Discover hidden gems
Utility information
- Heating:
- Gas Heating
- Utilities:
- HVAC

Community details
The Woods
by D.R. Horton, Lumberton, TX
- 8 homes
- 6 plans
- 2,171 - 3,150 sqft
View The Woods details
Community amenities
- Waterfront View
More homes in The Woods
- Home at address 175 Sycamore Ct, Lumberton, TX 77657

Newburgh
$471,170
- 5 bd
- 3.5 ba
- 3,043 sqft
175 Sycamore Ct, Lumberton, TX 77657
Floor plans in The Woods
About the builder - D.R. Horton

- 1,199communities on Jome
- 9,186homes on Jome
Neighborhood
Home address
Schools in Lumberton Independent School District
GreatSchools’ Summary Rating calculation is based on 4 of the school’s themed ratings, including test scores, student/academic progress, college readiness, and equity. This information should only be used as a reference. Jome is not affiliated with GreatSchools and does not endorse or guarantee this information. Please reach out to schools directly to verify all information and enrollment eligibility. Data provided by GreatSchools.org © 2025
Places of interest
Getting around
Air quality

Considering this home?
Our expert will guide your tour, in-person or virtual
Need more information?
Text or call (888) 486-2818
Financials
Estimated monthly payment
Let us help you find your dream home
How many bedrooms are you looking for?
Similar homes nearby
Recently added communities in this area
Nearby communities in Lumberton
New homes in nearby cities
More New Homes in Lumberton, TX
D.R. Horton, MLS 6820000
Copyright © 2025, Houston Realtors Information Service, Inc. The information provided is exclusively for consumers’ personal, non-commercial use, and may not be used for any purpose other than to identify prospective properties consumers may be interested in purchasing. Information is deemed reliable but not guaranteed. All information provided should be independently verified.
Read moreLast checked Jan 17, 2:50 pm
- Jome
- New homes search
- Texas
- Hardin County
- Lumberton
- The Woods
- 175 Sycamore, Lumberton, TX 77657





















