














Book your tour. Save an average of $18,473. We'll handle the rest.
We collect exclusive builder offers, book your tours, and support you from start to housewarming.
- Confirmed tours
- Get matched & compare top deals
- Expert help, no pressure
- No added fees
Estimated value based on Jome data, T&C apply








































Why tour with Jome?
- No pressure toursTour at your own pace with no sales pressure
- Expert guidanceGet insights from our home buying experts
- Exclusive accessSee homes and deals not available elsewhere
Jome is featured in
- Single-Family
- Quick move-in
- $119.28/sqft
- $450/annual HOA
Home description
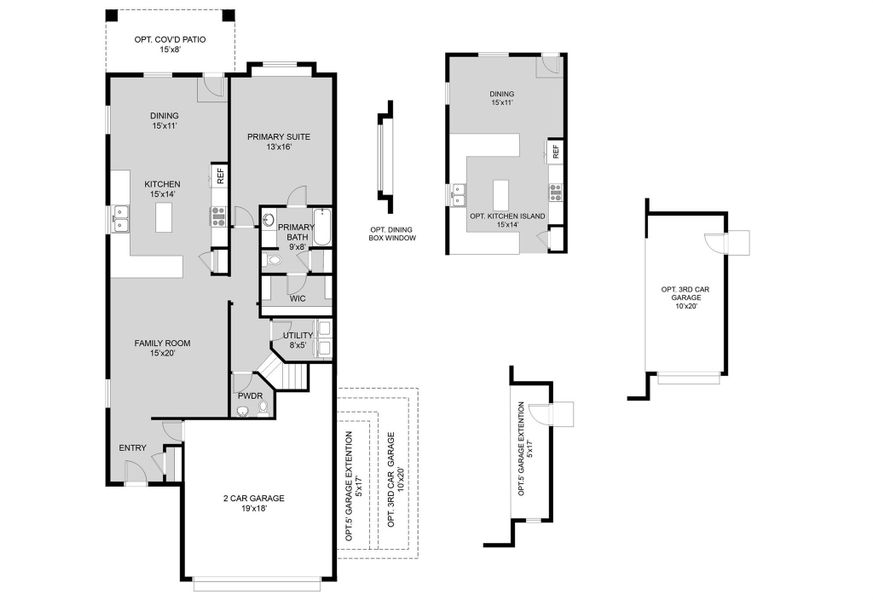
Welcome home to Cliffstone Hills in Conroe, TX! Conveniently located off the 336 Loop, this thoughtfully planned community makes commuting a breeze. The Redbud floor plan is a spacious, two-story home designed to give you room to live, gather, and unwind. With 4 bedrooms, 2.5 bathrooms, a game room, and a 2-car garage, this home offers the flexibility to fit your lifestyle today and grow with you tomorrow. Inside, vinyl plank flooring flows throughout the common areas. The kitchen is sure to impress with 42-inch white cabinetry, granite countertops, stainless-steel appliances, and an optional layout featuring extra counterspace and a center island. The first-floor Owner’s Suite offers double sinks and granite countertops, a separate tub and shower, and a spacious walk-in closet. Outside, a covered patio and a sprinkler system - making yard care simple and manageable. This beautiful new home blends modern finishes, functional design, and low-maintenance living.
Legend Home Corporation, MLS 82597862
May also be listed on the Legend Homes website
Information last verified by Jome: Today at 8:50 PM (March 3, 2026)
Book your tour. Save an average of $18,473. We'll handle the rest.
We collect exclusive builder offers, book your tours, and support you from start to housewarming.
- Confirmed tours
- Get matched & compare top deals
- Expert help, no pressure
- No added fees
Estimated value based on Jome data, T&C apply
Home details
- Property status:
- Move-in ready
- Lot size (acres):
- 0.11
- Size:
- 2,622 sqft
- Stories:
- 2
- Beds:
- 4
- Baths:
- 2
- Half baths:
- 1
- Garage spaces:
- 2
- Facing direction:
- South
Construction details
- Builder Name:
- Legend Homes
- Year Built:
- 2025
- Roof:
- Composition Roofing
Home features & finishes
- Appliances:
- Sprinkler System
- Construction Materials:
- Cement
- Flooring:
- Vinyl Flooring
- Foundation Details:
- Slab
- Garage/Parking:
- GarageAttached Garage
- Home amenities:
- Green Construction
- Interior Features:
- Walk-In ClosetPantryBreakfast Bar
- Kitchen:
- DishwasherMicrowave OvenOvenDisposalGas CooktopKitchen IslandGas OvenKitchen Range
- Laundry facilities:
- Dryer
- Property amenities:
- BarBackyard
- Rooms:
- Kitchen

Get a consultation with our New Homes Expert
- See how your home builds wealth
- Plan your home-buying roadmap
- Discover hidden gems
Utility information
- Heating:
- Gas Heating
- Utilities:
- HVAC

Community details
Cliffstone Hills
by Legend Homes, Conroe, TX
- 21 homes
- 9 plans
- 1,331 - 2,622 sqft
View Cliffstone Hills details
More homes in Cliffstone Hills
- Home at address 1375 Mount Bassie Trl, Conroe, TX 77380

Home
$249,990
- 4 bd
- 2.5 ba
- 1,745 sqft
1375 Mount Bassie Trl, Conroe, TX 77380
- Home at address 1375 Mount Bassie Trl, Conroe, TX 77301

The Woodland
$249,990
- 4 bd
- 2.5 ba
- 1,745 sqft
1375 Mount Bassie Trl, Conroe, TX 77301
- Home at address 2549 Hawks Eye Dr, Conroe, TX 77301

The Lowry
$254,990
- 4 bd
- 2.5 ba
- 1,940 sqft
2549 Hawks Eye Dr, Conroe, TX 77301
- Home at address 2508 Hawks Eye Dr, Conroe, TX 77340

Home
$264,990
- 4 bd
- 2.5 ba
- 1,940 sqft
2508 Hawks Eye Dr, Conroe, TX 77340
- Home at address 2525 Hawks Eye Dr, Conroe, TX 77301

The Lowry
$264,990
- 4 bd
- 2.5 ba
- 1,940 sqft
2525 Hawks Eye Dr, Conroe, TX 77301
- Home at address 2508 Hawks Eye Dr, Conroe, TX 77301

The Lowry
$264,990
- 4 bd
- 2.5 ba
- 1,940 sqft
2508 Hawks Eye Dr, Conroe, TX 77301
Floor plans in Cliffstone Hills
About the builder - Legend Homes
Neighborhood
Home address
- City:
- Conroe
- County:
- Montgomery
- Zip Code:
- 77301
Schools in Conroe Independent School District
- Grades 06-11Publicjuvenile detention ctr1.8 mi200 academy drna
- Grades 08-12Publicjjaep2.0 mi2235 n 1st stna
GreatSchools’ Summary Rating calculation is based on 4 of the school’s themed ratings, including test scores, student/academic progress, college readiness, and equity. This information should only be used as a reference. Jome is not affiliated with GreatSchools and does not endorse or guarantee this information. Please reach out to schools directly to verify all information and enrollment eligibility. Data provided by GreatSchools.org © 2025
Places of interest
Getting around
Air quality
Noise level
A Soundscore™ rating is a number between 50 (very loud) and 100 (very quiet) that tells you how loud a location is due to environmental noise.

Considering this home?
Our expert will guide your tour, in-person or virtual
Need more information?
Text or call (888) 488-9243
Financials
Estimated monthly payment
Let us help you find your dream home
How many bedrooms are you looking for?
Similar homes nearby
Recently added communities in this area
Nearby communities in Conroe
New homes in nearby cities
More New Homes in Conroe, TX
Legend Home Corporation, MLS 82597862
Copyright © 2025, Houston Realtors Information Service, Inc. The information provided is exclusively for consumers’ personal, non-commercial use, and may not be used for any purpose other than to identify prospective properties consumers may be interested in purchasing. Information is deemed reliable but not guaranteed. All information provided should be independently verified.
Read moreLast checked Mar 3, 8:50 pm
- Jome
- New homes search
- Texas
- Greater Houston Area
- Montgomery County
- Conroe
- Cliffstone Hills
- 2524 Hawks Eye Dr, Conroe, TX 77301




























