














Book your tour. Save an average of $18,473. We'll handle the rest.
- Confirmed tours
- Get matched & compare top deals
- Expert help, no pressure
- No added fees
Estimated value based on Jome data, T&C apply



















- 4 bd
- 3.5 ba
- 3,493 sqft
209 Crownbeard St, Georgetown, TX 78633
Why tour with Jome?
- No pressure toursTour at your own pace with no sales pressure
- Expert guidanceGet insights from our home buying experts
- Exclusive accessSee homes and deals not available elsewhere
Jome is featured in
- Single-Family
- Quick move-in
- $184.6/sqft
- $55/monthly HOA
Home description
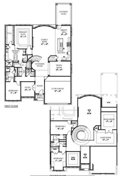
MOVE IN READY!! Westin Homes NEW Construction (Cameron, Elevation B) This elegant 4-bedroom, 3.5-bath home offers a thoughtfully designed layout beginning with a breathtaking rotunda entry that flows into a private study, formal dining room, and a bright breakfast area connected to a chef’s dream kitchen, perfect for both entertaining and everyday living. The first-floor primary suite provides a serene retreat with spacious dual walk-in closets, while a convenient guest suite adds comfort and flexibility. Upstairs, two additional bedrooms are complemented by both a large game room and a dedicated media room, creating ideal spaces for relaxation and fun. Outdoor living is enhanced with a covered patio overlooking freshly sodded front and back yards, while an attached two-car garage ensures convenience. Perfectly positioned between peace and accessibility, Nolina is a Hill Country haven offering resort-style amenities including a fitness center, outdoor lounge, splash pad, scenic nature trails, and more—making it a community you’ll love to call home.
Westin Homes, MLS 8233067
May also be listed on the Westin Homes website
Information last verified by Jome: Today at 7:09 AM (December 6, 2025)
Home highlights
Scenic Highland Lakes reservoir west of Austin, known for boating, cliffside views, and upscale lakefront living.
Book your tour. Save an average of $18,473. We'll handle the rest.
We collect exclusive builder offers, book your tours, and support you from start to housewarming.
- Confirmed tours
- Get matched & compare top deals
- Expert help, no pressure
- No added fees
Estimated value based on Jome data, T&C apply
Home details
- Property status:
- Move-in ready
- Lot size (acres):
- 0.18
- Lot width (feet):
- 60
- Size:
- 3,493 sqft
- Stories:
- 2
- Beds:
- 4
- Baths:
- 3.5
- Garage spaces:
- 2
- Fence:
- Wood Fence
- Facing direction:
- Southeast
Construction details
- Builder Name:
- Westin Homes
- Year Built:
- 2025
- Roof:
- Composition Roofing, Shingle Roofing
Home features & finishes
- Construction Materials:
- BrickStone
- Cooling:
- Ceiling Fan(s)Central Air
- Flooring:
- Carpet FlooringTile Flooring
- Foundation Details:
- Slab
- Garage/Parking:
- GarageSingle-Door GarageAttached GarageTandem Parking
- Home amenities:
- Green Construction
- Interior Features:
- Ceiling-HighWalk-In ClosetFoyerCoffered CeilingPantrySound System WiringFrench DoorsDouble Vanity
- Kitchen:
- DishwasherMicrowave OvenOvenDisposalStainless Steel AppliancesQuartz countertopCook TopKitchen Island
- Laundry facilities:
- DryerWasher
- Lighting:
- LightingChandelier
- Property amenities:
- BackyardElectric FireplacePatioFireplace
- Rooms:
- Primary Bedroom On MainFamily RoomOpen Concept FloorplanPrimary Bedroom Downstairs
- Security system:
- Security System
Utility information
- Heating:
- Gas Heating
- Utilities:
- Underground Utilities, HVAC

Community details
Nolina - 60' at Nolina
by Westin Homes, Georgetown, TX
- 9 homes
- 11 plans
- 2,818 - 3,865 sqft
View Nolina - 60' details
Community amenities
- Playground
- Fitness Center/Exercise Area
- Club House
- Community Pool
- Park Nearby
- Community Lounge
More homes in Nolina - 60'
Floor plans in Nolina - 60'
About the builder - Westin Homes
Neighborhood
Home address
- City:
- Georgetown
- County:
- Williamson
- Zip Code:
- 78633
Schools in Florence Independent School District
- Grades KG-06Privatedivine savior academy - santa rita ranch3.7 mi23857 ronald w reagan blvdna
GreatSchools’ Summary Rating calculation is based on 4 of the school’s themed ratings, including test scores, student/academic progress, college readiness, and equity. This information should only be used as a reference. Jome is not affiliated with GreatSchools and does not endorse or guarantee this information. Please reach out to schools directly to verify all information and enrollment eligibility. Data provided by GreatSchools.org © 2025
Places of interest
Getting around
Air quality
Natural hazards risk
Climate hazards can impact homes and communities, with risks varying by location. These scores reflect the potential impact of natural disasters and climate-related risks on Williamson County
Provided by FEMA

Considering this home?
Our expert will guide your tour, in-person or virtual
Need more information?
Text or call (888) 486-2818
Financials
Estimated monthly payment
Similar homes nearby
Recently added communities in this area
Nearby communities in Georgetown
New homes in nearby cities
More New Homes in Georgetown, TX
Westin Homes, MLS 8233067
Based on information from the Austin Board of REALTORS® (alternatively, from ACTRIS) for the period through 08/13/2024. Neither the Board nor ACTRIS guarantees or is in any way responsible for its accuracy. All data is provided “AS IS” and with all faults. Data maintained by the Board or ACTRIS may not reflect all real estate activity in the market. Information being provided is for consumers’ personal, non-commercial use and may not be used for any purpose other than to identify prospective properties consumers may be interested in purchasing. The Digital Millennium Copyright Act of 1998, 17 U.S.C. § 512 (the “DMCA”) provides recourse for copyright owners who believe that material appearing on the Internet infringes their rights under U.S. copyright law. If you believe in good faith that any content or material made available in connection with our website or services infringes your copyright, you (or your agent) may send us a notice requesting that the content or material be removed, or access to it blocked. Notices must be sent in writing by email to DMCAnotice@MLSGrid.com. The DMCA requires that your notice of alleged copyright infringement include the following information: (1) description of the copyrighted work that is the subject of claimed infringement; (2) description of the alleged infringing content and information sufficient to permit us to locate the content; (3) contact information for you, including your address, telephone number and email address; (4) a statement by you that you have a good faith belief that the content in the manner complained of is not authorized by the copyright owner, or its agent, or by the operation of any law; (5) a statement by you, signed under penalty of perjury, that the information in the notification is accurate and that you have the authority to enforce the copyrights that are claimed to be infringed; and (6) a physical or electronic signature of the copyright owner or a person authorized to act on the copyright owner’s behalf. Failure to include all of the above information may result in the delay of the processing of your complaint.
Read moreLast checked Dec 6, 6:40 pm
- Home
- New homes
- Texas
- Greater Austin Area
- Williamson County
- Georgetown
- Nolina - 60'
- 209 Crownbeard St, Georgetown, TX 78633










































