



Book your tour. Save an average of $18,473. We'll handle the rest.
- Confirmed tours
- Get matched & compare top deals
- Expert help, no pressure
- No added fees
Estimated value based on Jome data, T&C apply
- 3 bd
- 3 ba
- 1,380 sqft
115 Autumn Sage Trl, Johnson City, TX 78636
Why tour with Jome?
- No pressure toursTour at your own pace with no sales pressure
- Expert guidanceGet insights from our home buying experts
- Exclusive accessSee homes and deals not available elsewhere
Jome is featured in
- Single-Family
- Under construction
- $256.62/sqft
- $75/quarterly HOA
Home description
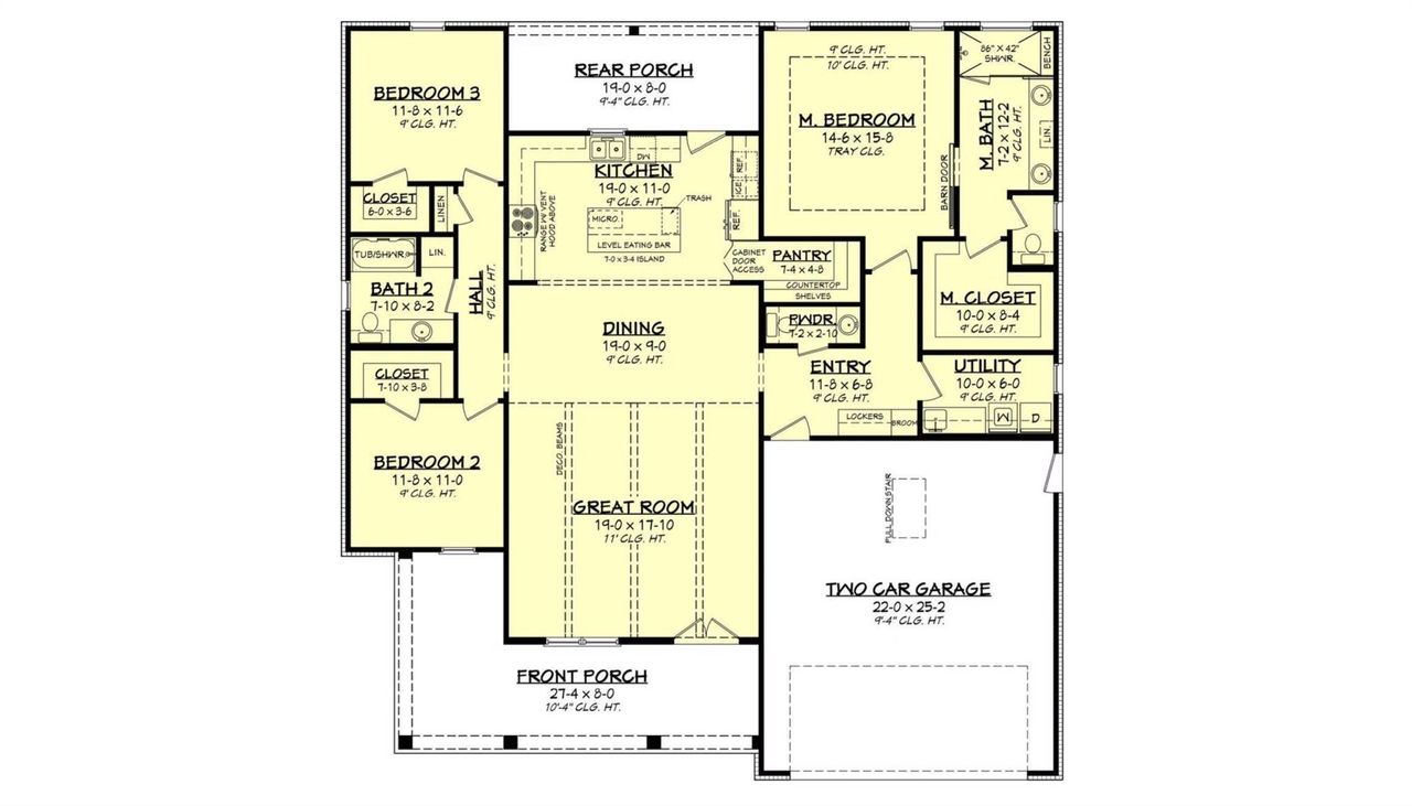
Welcome home to Homesteads at Deer Creek – where Hill Country beauty, privacy, and comfort come together in one of Johnson City’s most sought-after communities. This inviting home features 3 spacious bedrooms, 2 bathrooms, and approximately 1380 square feet of well-designed living space — perfect for both everyday living and entertaining. Buyer and Buyer's Agent are responsible for conducting all due diligence and verifying all information, including but not limited to property condition, zoning, permits, taxes, and square footage. Situated on a large, private lot, there’s plenty of room to create your dream backyard, enjoy family gatherings, or simply relax and take in the peaceful surroundings. With light HOA restrictions, you have the freedom to personalize your property while maintaining the charm of the neighborhood.
Enjoy being just minutes from award-winning wineries, craft breweries, distilleries, and top-rated restaurants, with Downtown Johnson City and Dripping Springs close by for shopping, dining, local events, and vibrant Hill Country culture. Plus, you’re within easy reach of Austin, offering the perfect blend of quiet country living and big-city convenience. Rates as low as 4.750% with builder incentives Appointment with sales office required. Please email admin@darbarhomes.com for more information.
NestHaven Properties, MLS 9607815
Information last verified by Jome: Yesterday at 6:52 AM (December 26, 2025)
Home highlights
Book your tour. Save an average of $18,473. We'll handle the rest.
We collect exclusive builder offers, book your tours, and support you from start to housewarming.
- Confirmed tours
- Get matched & compare top deals
- Expert help, no pressure
- No added fees
Estimated value based on Jome data, T&C apply
Home details
- Property status:
- Under construction
- Lot size (acres):
- 0.18
- Size:
- 1,380 sqft
- Stories:
- 1
- Beds:
- 3
- Baths:
- 3
- Garage spaces:
- 2
- Fence:
- Privacy Fence
- Facing direction:
- South
Construction details
- Year Built:
- 2025
- Roof:
- Shingle Roofing
Home features & finishes
- Appliances:
- Exhaust Fan
- Construction Materials:
- Stucco
- Cooling:
- Ceiling Fan(s)Central Air
- Flooring:
- Vinyl FlooringTile Flooring
- Foundation Details:
- Slab
- Garage/Parking:
- Garage
- Interior Features:
- Walk-In ClosetPantry
- Kitchen:
- Range-Free StandingDishwasherMicrowave OvenDisposalStainless Steel AppliancesQuartz countertopKitchen IslandElectric Oven
- Laundry facilities:
- Washer
- Lighting:
- Lighting
- Property amenities:
- BackyardYardPorch
- Rooms:
- Primary Bedroom On MainPrimary Bedroom Downstairs

Get a consultation with our New Homes Expert
- See how your home builds wealth
- Plan your home-buying roadmap
- Discover hidden gems
Utility information
- Heating:
- Central Heating
- Utilities:
- Electricity Available, Water Available
Community amenities
- Common Grounds
- Playground
Neighborhood
Home address
- City:
- Johnson City
- County:
- Blanco
- Zip Code:
- 78636
Schools in Johnson City Independent School District
GreatSchools’ Summary Rating calculation is based on 4 of the school’s themed ratings, including test scores, student/academic progress, college readiness, and equity. This information should only be used as a reference. Jome is not affiliated with GreatSchools and does not endorse or guarantee this information. Please reach out to schools directly to verify all information and enrollment eligibility. Data provided by GreatSchools.org © 2025
Places of interest
Getting around
Natural hazards risk
Climate hazards can impact homes and communities, with risks varying by location. These scores reflect the potential impact of natural disasters and climate-related risks on Blanco County
Provided by FEMA

Considering this home?
Our expert will guide your tour, in-person or virtual
Need more information?
Text or call (888) 486-2818
Financials
Let us help you find your dream home
How many bedrooms are you looking for?
Similar homes nearby
Recently added communities in this area
Nearby communities in Johnson City
New homes in nearby cities
More New Homes in Johnson City, TX
NestHaven Properties, MLS 9607815
Based on information from the Austin Board of REALTORS® (alternatively, from ACTRIS) for the period through 08/13/2024. Neither the Board nor ACTRIS guarantees or is in any way responsible for its accuracy. All data is provided “AS IS” and with all faults. Data maintained by the Board or ACTRIS may not reflect all real estate activity in the market. Information being provided is for consumers’ personal, non-commercial use and may not be used for any purpose other than to identify prospective properties consumers may be interested in purchasing. The Digital Millennium Copyright Act of 1998, 17 U.S.C. § 512 (the “DMCA”) provides recourse for copyright owners who believe that material appearing on the Internet infringes their rights under U.S. copyright law. If you believe in good faith that any content or material made available in connection with our website or services infringes your copyright, you (or your agent) may send us a notice requesting that the content or material be removed, or access to it blocked. Notices must be sent in writing by email to DMCAnotice@MLSGrid.com. The DMCA requires that your notice of alleged copyright infringement include the following information: (1) description of the copyrighted work that is the subject of claimed infringement; (2) description of the alleged infringing content and information sufficient to permit us to locate the content; (3) contact information for you, including your address, telephone number and email address; (4) a statement by you that you have a good faith belief that the content in the manner complained of is not authorized by the copyright owner, or its agent, or by the operation of any law; (5) a statement by you, signed under penalty of perjury, that the information in the notification is accurate and that you have the authority to enforce the copyrights that are claimed to be infringed; and (6) a physical or electronic signature of the copyright owner or a person authorized to act on the copyright owner’s behalf. Failure to include all of the above information may result in the delay of the processing of your complaint.
Read moreLast checked Dec 26, 6:40 pm
- Jome
- New homes search
- Texas
- Blanco County
- Johnson City
- 115 Autumn Sage Trl, Johnson City, TX 78636





















