




Book your tour. Save an average of $18,473. We'll handle the rest.
- Confirmed tours
- Get matched & compare top deals
- Expert help, no pressure
- No added fees
Estimated value based on Jome data, T&C apply
- 4 bd
- 4 ba
- 3,673 sqft
213 Irvine Pass, Liberty Hill, TX 78642
Why tour with Jome?
- No pressure toursTour at your own pace with no sales pressure
- Expert guidanceGet insights from our home buying experts
- Exclusive accessSee homes and deals not available elsewhere
Jome is featured in
- Single-Family
- Quick move-in
- $237.95/sqft
- $106/monthly HOA
Home description
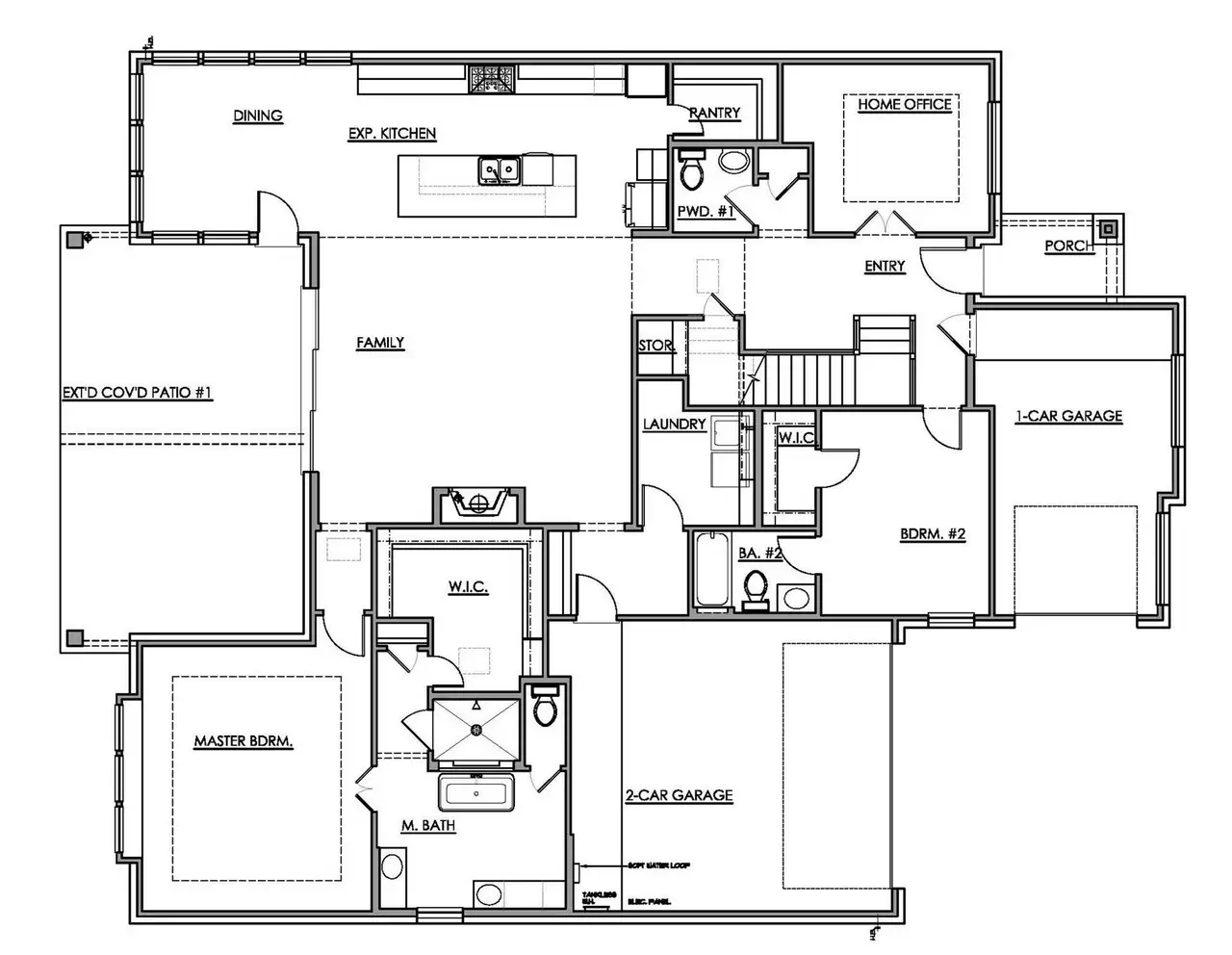
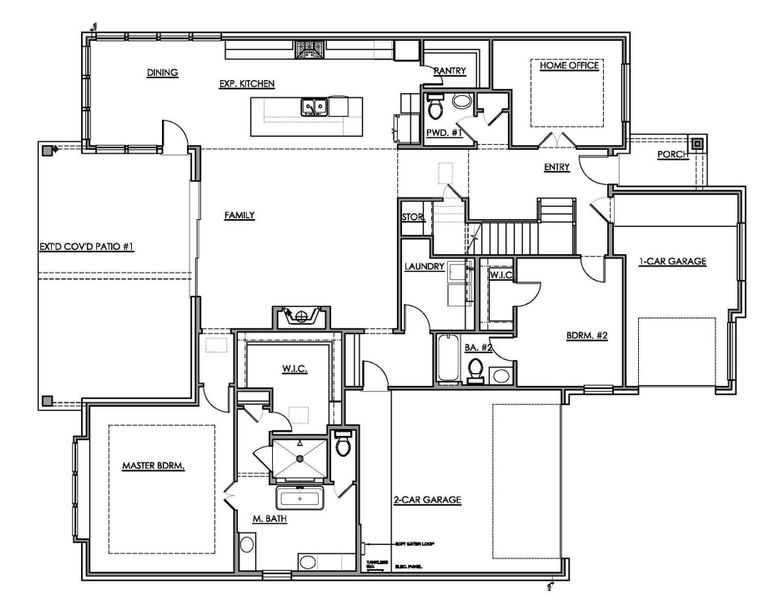
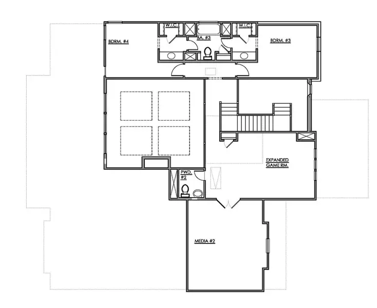
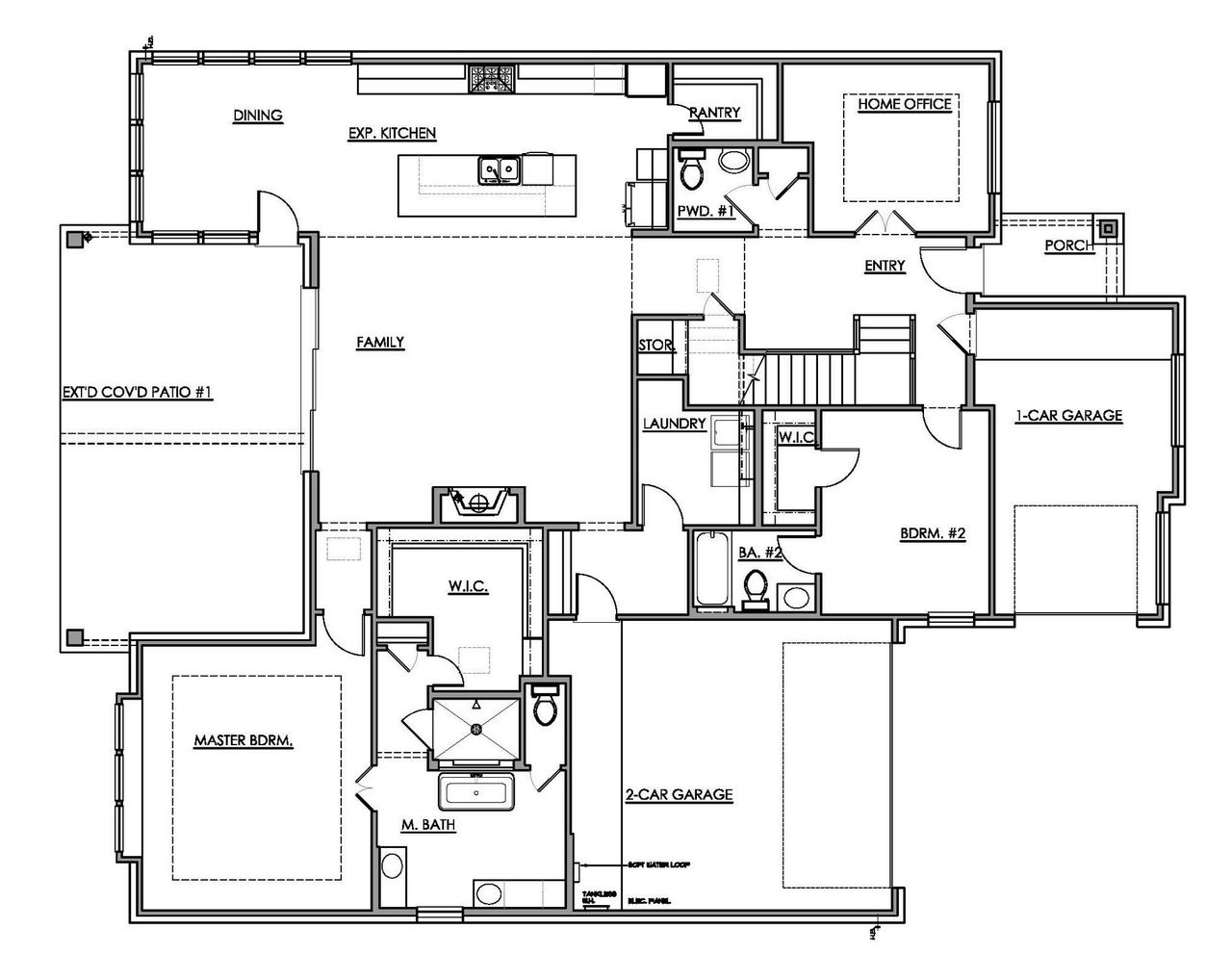
Discover the stunning new Elissa floor plan—your dream home loaded with over $144,000 in premium upgrades. This thoughtfully designed home features an impressive 11-foot kitchen island with quartz countertops, crisp white cabinetry, stacked upper cabinets, pendant lighting, a double oven, and a built-in microwave drawer, all enhanced by the expanded kitchen layout. Sitting on an expansive 10,700 sq. ft. homesite with an 85-foot wide backyard and over 40 feet of depth from the back of the home, it offers incredible privacy with no rear neighbors. Enjoy outdoor living with the oversized 25’ x 16’ covered patio, perfect for relaxing or entertaining. Inside, the home is west-facing and filled with luxurious upgrades, including an extended covered patio with large sliding glass doors, an expanded game room, a spacious 19’ x 15’ media room, and a deluxe primary bathroom. This is truly the perfect combination of comfort, style, and function.
RGS Realty LLC, MLS 3238713
May also be listed on the Scott Felder Homes website
Information last verified by Jome: Yesterday at 6:53 AM (December 7, 2025)
Home highlights
Scenic Highland Lakes reservoir west of Austin, known for boating, cliffside views, and upscale lakefront living.
Book your tour. Save an average of $18,473. We'll handle the rest.
We collect exclusive builder offers, book your tours, and support you from start to housewarming.
- Confirmed tours
- Get matched & compare top deals
- Expert help, no pressure
- No added fees
Estimated value based on Jome data, T&C apply
Home details
- Property status:
- Move-in ready
- Lot size (acres):
- 0.24
- Size:
- 3,673 sqft
- Stories:
- 2
- Beds:
- 4
- Baths:
- 4
- Half baths:
- 2
- Garage spaces:
- 3
- Fence:
- Wood Fence, Privacy Fence, Masonry Fence, Wrought Iron Fence
- Facing direction:
- West
Construction details
- Builder Name:
- Scott Felder Homes
- Completion Date:
- November, 2025
- Year Built:
- 2025
- Roof:
- Composition Roofing
Home features & finishes
- Appliances:
- Exhaust FanExhaust Fan Vented
- Construction Materials:
- StuccoBrickStone
- Cooling:
- Ceiling Fan(s)Central Air
- Flooring:
- Vinyl FlooringCarpet FlooringTile Flooring
- Foundation Details:
- Slab
- Garage/Parking:
- Door OpenerGarageFront Entry Garage/ParkingAttached Garage
- Interior Features:
- Ceiling-HighWalk-In ClosetPantryBreakfast BarFrench DoorsDouble Vanity
- Kitchen:
- DishwasherMicrowave OvenOvenDisposalStainless Steel AppliancesGas CooktopBuilt-In OvenCook TopKitchen IslandElectric Oven
- Laundry facilities:
- Dryer
- Lighting:
- Lighting
- Property amenities:
- Gas Log FireplaceBackyardSoaking TubFireplaceYardPorch
- Rooms:
- Primary Bedroom On MainFamily RoomBreakfast AreaOpen Concept FloorplanPrimary Bedroom Downstairs
- Security system:
- Smoke DetectorCarbon Monoxide Detector
Utility information
- Heating:
- Thermostat, Water Heater, Central Heating, Gas Heating
- Utilities:
- Electricity Available, Natural Gas Available, Internet Cable, Cable Available, High Speed Internet Access

Community details
Santa Rita Ranch at Santa Rita Ranch
by Scott Felder Homes, Liberty Hill, TX
- 20 homes
- 23 plans
- 1,563 - 4,091 sqft
View Santa Rita Ranch details
Community amenities
- Grill Area
- Common Grounds
- Dog Park
- Playground
- Fitness Center/Exercise Area
- Club House
- Sport Court
- Community Pool
- Park Nearby
- BBQ Area
- Fishing Pond
- Picnic Area
- Lifestyle Director
- Sport Facility
- Planned Social Activities
- Cluster Mailbox
- Sidewalks Available
- High Speed Internet Access
More homes in Santa Rita Ranch
Floor plans in Santa Rita Ranch
About the builder - Scott Felder Homes
Neighborhood
Home address
- City:
- Liberty Hill
- County:
- Williamson
- Zip Code:
- 78642
Schools in Georgetown Independent School District
- Grades KG-06Privatedivine savior academy - santa rita ranch1.2 mi23857 ronald w reagan blvdna
- Grades PK-KGPrivatethe goddard school-leander7.4 mi1730 union stna
GreatSchools’ Summary Rating calculation is based on 4 of the school’s themed ratings, including test scores, student/academic progress, college readiness, and equity. This information should only be used as a reference. Jome is not affiliated with GreatSchools and does not endorse or guarantee this information. Please reach out to schools directly to verify all information and enrollment eligibility. Data provided by GreatSchools.org © 2025
Places of interest
Getting around
Air quality
Natural hazards risk
Climate hazards can impact homes and communities, with risks varying by location. These scores reflect the potential impact of natural disasters and climate-related risks on Williamson County
Provided by FEMA

Considering this home?
Our expert will guide your tour, in-person or virtual
Need more information?
Text or call (888) 486-2818
Financials
Estimated monthly payment
Similar homes nearby
Recently added communities in this area
Nearby communities in Liberty Hill
New homes in nearby cities
More New Homes in Liberty Hill, TX
RGS Realty LLC, MLS 3238713
Based on information from the Austin Board of REALTORS® (alternatively, from ACTRIS) for the period through 08/13/2024. Neither the Board nor ACTRIS guarantees or is in any way responsible for its accuracy. All data is provided “AS IS” and with all faults. Data maintained by the Board or ACTRIS may not reflect all real estate activity in the market. Information being provided is for consumers’ personal, non-commercial use and may not be used for any purpose other than to identify prospective properties consumers may be interested in purchasing. The Digital Millennium Copyright Act of 1998, 17 U.S.C. § 512 (the “DMCA”) provides recourse for copyright owners who believe that material appearing on the Internet infringes their rights under U.S. copyright law. If you believe in good faith that any content or material made available in connection with our website or services infringes your copyright, you (or your agent) may send us a notice requesting that the content or material be removed, or access to it blocked. Notices must be sent in writing by email to DMCAnotice@MLSGrid.com. The DMCA requires that your notice of alleged copyright infringement include the following information: (1) description of the copyrighted work that is the subject of claimed infringement; (2) description of the alleged infringing content and information sufficient to permit us to locate the content; (3) contact information for you, including your address, telephone number and email address; (4) a statement by you that you have a good faith belief that the content in the manner complained of is not authorized by the copyright owner, or its agent, or by the operation of any law; (5) a statement by you, signed under penalty of perjury, that the information in the notification is accurate and that you have the authority to enforce the copyrights that are claimed to be infringed; and (6) a physical or electronic signature of the copyright owner or a person authorized to act on the copyright owner’s behalf. Failure to include all of the above information may result in the delay of the processing of your complaint.
Read moreLast checked Dec 8, 12:40 am
- Home
- New homes
- Texas
- Greater Austin Area
- Williamson County
- Liberty Hill
- Santa Rita Ranch
- 213 Irvine Pass, Liberty Hill, TX 78642










































