














Book your tour. Save an average of $18,473. We'll handle the rest.
We collect exclusive builder offers, book your tours, and support you from start to housewarming.
- Confirmed tours
- Get matched & compare top deals
- Expert help, no pressure
- No added fees
Estimated value based on Jome data, T&C apply

























- 3 bd
- 2 ba
- 1,355 sqft
3018 Nickell Back Dr, Conroe, TX 77301
Why tour with Jome?
- No pressure toursTour at your own pace with no sales pressure
- Expert guidanceGet insights from our home buying experts
- Exclusive accessSee homes and deals not available elsewhere
Jome is featured in
- Single-Family
- Quick move-in
- $194.69/sqft
- $495/annual HOA
Home description
Welcome home to Mackenzie Creek in Conroe, TX! Conveniently located off 336, just east of I-45, this community offers low property taxes and close proximity to Lake Conroe—perfectly balancing value and lifestyle. The Sweetwater floor plan is a charming one-story home with 3 bedrooms, 2 bathrooms, and a 2-car garage, designed to provide comfort and functionality. Inside, durable vinyl plank flooring flows throughout the main living areas, complemented by elegant tray ceilings that add a touch of dramatic flair. The gourmet kitchen features 42-inch white cabinetry, granite countertops, stainless-steel appliances, and plenty of space for cooking and gathering. Retreat to the private Owner’s Suite, complete with a beautiful bay window, double sinks with granite countertops, a separate tub and shower, and a spacious walk-in closet. This beautiful new home blends modern finishes, functional design, and stylish comfort—don’t miss your opportunity to call Mackenzie Creek home!
Legend Home Corporation, MLS 38476341
May also be listed on the Legend Homes website
Information last verified by Jome: Yesterday at 9:06 PM (March 2, 2026)
Book your tour. Save an average of $18,473. We'll handle the rest.
We collect exclusive builder offers, book your tours, and support you from start to housewarming.
- Confirmed tours
- Get matched & compare top deals
- Expert help, no pressure
- No added fees
Estimated value based on Jome data, T&C apply
Home details
- Property status:
- Move-in ready
- Lot size (acres):
- 0.10
- Size:
- 1,355 sqft
- Stories:
- 1
- Beds:
- 3
- Baths:
- 2
- Garage spaces:
- 2
- Facing direction:
- East

Floor plan details
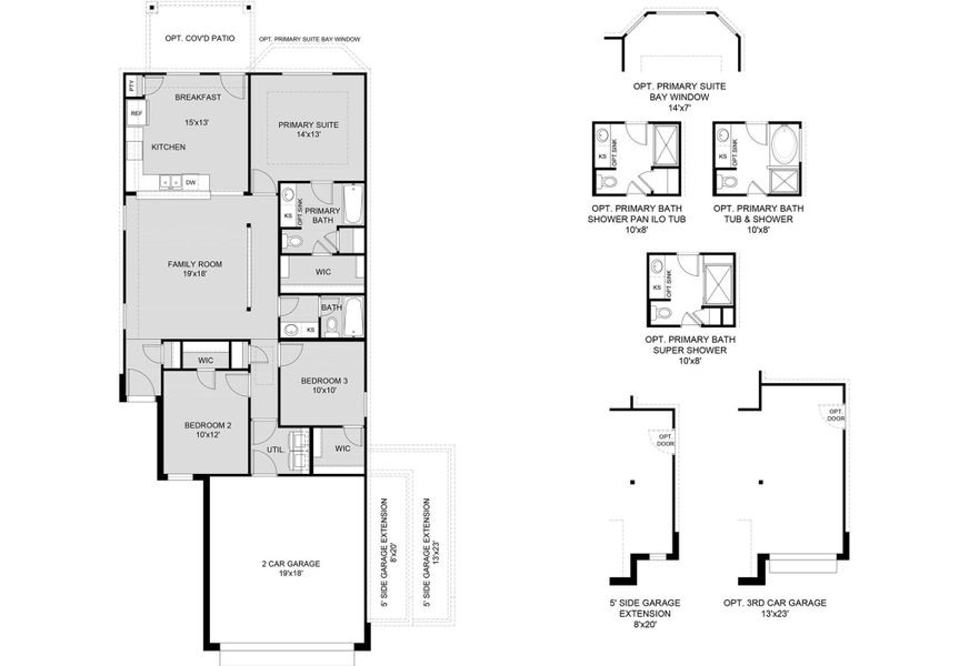
The Sweetwater
- 3 bd
- 2 ba
- 1,355 sqft
View The Sweetwater details
Construction details
- Builder Name:
- Legend Homes
- Completion Date:
- October, 2025
- Year Built:
- 2025
- Roof:
- Composition Roofing
Home features & finishes
- Appliances:
- Sprinkler System
- Construction Materials:
- CementBrick
- Flooring:
- Vinyl FlooringCarpet Flooring
- Foundation Details:
- Slab
- Garage/Parking:
- GarageAttached Garage
- Home amenities:
- Green Construction
- Interior Features:
- Ceiling-HighWalk-In ClosetPantryBreakfast BarBay WindowsGarden TubWindow Coverings
- Kitchen:
- DishwasherMicrowave OvenOvenRefrigeratorDisposalStainless Steel AppliancesGas CooktopGas OvenKitchen Range
- Laundry facilities:
- DryerWasher
- Lighting:
- Lighting
- Property amenities:
- BarBackyardCabinets
- Rooms:
- Primary Bedroom On MainKitchenPrimary Bedroom Downstairs

Get a consultation with our New Homes Expert
- See how your home builds wealth
- Plan your home-buying roadmap
- Discover hidden gems
Utility information
- Heating:
- Gas Heating
- Utilities:
- HVAC

Community details
Mackenzie Creek
by Legend Homes, Conroe, TX
- 17 homes
- 9 plans
- 1,331 - 2,622 sqft
View Mackenzie Creek details
More homes in Mackenzie Creek
- Home at address 3046 Nickell Back Dr, Conroe, TX 77301

The Sweetwater
$232,990
- 3 bd
- 2 ba
- 1,355 sqft
3046 Nickell Back Dr, Conroe, TX 77301
- Home at address 3062 Nickell Back Dr, Conroe, TX 77301

The Pinewood
$249,990
- 3 bd
- 2 ba
- 1,331 sqft
3062 Nickell Back Dr, Conroe, TX 77301
- Home at address 3038 Nickell Back Dr, Conroe, TX 77301

The Woodland
$257,990
- 4 bd
- 2.5 ba
- 1,745 sqft
3038 Nickell Back Dr, Conroe, TX 77301
- Home at address 3058 Nickell Back Dr, Conroe, TX 77301

The Woodland
$259,990
- 4 bd
- 2.5 ba
- 1,745 sqft
3058 Nickell Back Dr, Conroe, TX 77301
- Home at address 3010 Nickell Back Dr, Conroe, TX 77301

The Auburn
$259,990
- 3 bd
- 2.5 ba
- 2,094 sqft
3010 Nickell Back Dr, Conroe, TX 77301
- Home at address 3022 Nickell Back Dr, Conroe, TX 77301

The Lowry
$261,990
- 4 bd
- 2.5 ba
- 1,940 sqft
3022 Nickell Back Dr, Conroe, TX 77301
Floor plans in Mackenzie Creek
About the builder - Legend Homes
Neighborhood
Home address
- City:
- Conroe
- County:
- Montgomery
- Zip Code:
- 77301
Schools in Conroe Independent School District
- Grades M-MPublicwashington junior high0.7 mi507 dr martin l king pl nna
GreatSchools’ Summary Rating calculation is based on 4 of the school’s themed ratings, including test scores, student/academic progress, college readiness, and equity. This information should only be used as a reference. Jome is not affiliated with GreatSchools and does not endorse or guarantee this information. Please reach out to schools directly to verify all information and enrollment eligibility. Data provided by GreatSchools.org © 2025
Places of interest
Getting around
Air quality
Noise level
A Soundscore™ rating is a number between 50 (very loud) and 100 (very quiet) that tells you how loud a location is due to environmental noise.

Considering this home?
Our expert will guide your tour, in-person or virtual
Need more information?
Text or call (888) 488-9243
Financials
Estimated monthly payment
Let us help you find your dream home
How many bedrooms are you looking for?
Similar homes nearby
Recently added communities in this area
Nearby communities in Conroe
New homes in nearby cities
More New Homes in Conroe, TX
Legend Home Corporation, MLS 38476341
Copyright © 2025, Houston Realtors Information Service, Inc. The information provided is exclusively for consumers’ personal, non-commercial use, and may not be used for any purpose other than to identify prospective properties consumers may be interested in purchasing. Information is deemed reliable but not guaranteed. All information provided should be independently verified.
Read moreLast checked Mar 2, 8:50 pm
- Jome
- New homes search
- Texas
- Greater Houston Area
- Montgomery County
- Conroe
- Mackenzie Creek
- 3018 Nickell Back Dr, Conroe, TX 77301




























