














Book your tour. Save an average of $18,473. We'll handle the rest.
- Confirmed tours
- Get matched & compare top deals
- Expert help, no pressure
- No added fees
Estimated value based on Jome data, T&C apply
- 4 bd
- 4.5 ba
- 3,778 sqft
11564 Chapel Bend Dr, Montgomery, TX 77356
Why tour with Jome?
- No pressure toursTour at your own pace with no sales pressure
- Expert guidanceGet insights from our home buying experts
- Exclusive accessSee homes and deals not available elsewhere
Jome is featured in
- Single-Family
- Quick move-in
- $235.33/sqft
- $475/annual HOA
Home description
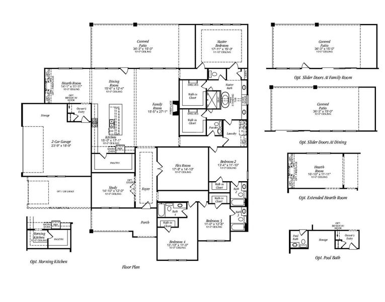
NEW CONSTRUCTION –Completion Early 2026 - Experience refined country living in Montgomery with the Gracepoint Homes 3778 Plan in Chapel Bend, a stunning single-story design blending modern elegance and everyday functionality. Featuring 4 bedrooms, 4.5 baths, and a 3-car garage on a peaceful acreage homesite, this home offers open-concept living with high ceilings and abundant natural light. The upgraded kitchen includes quartz countertops, a large island, premium appliances, and a morning kitchen leading to the walk-in pantry. The owner’s suite is a private retreat with spa bath, freestanding tub, glass shower, and dual closets. A flex/media room, study, and covered patio enhance livability inside and out. Every detail of the 3,778 sq ft of this plan reflects Gracepoint’s craftsmanship, energy-efficiency, elegance, and timeless. Located in Chapel Bend, minutes from Lake Conroe, The Woodlands, and Historic Montgomery, with spacious lots, mature trees, and a low tax rate.
Gracepoint Homes, MLS 81548362
May also be listed on the Gracepoint Homes website
Information last verified by Jome: Yesterday at 2:50 PM (December 6, 2025)
Home highlights
Book your tour. Save an average of $18,473. We'll handle the rest.
We collect exclusive builder offers, book your tours, and support you from start to housewarming.
- Confirmed tours
- Get matched & compare top deals
- Expert help, no pressure
- No added fees
Estimated value based on Jome data, T&C apply
Home details
- Property status:
- Move-in ready
- Lot size (acres):
- 1.10
- Size:
- 3,778 sqft
- Stories:
- 1
- Beds:
- 4
- Baths:
- 4
- Half baths:
- 1
- Garage spaces:
- 3
Construction details
- Builder Name:
- Gracepoint Homes
- Year Built:
- 2025
- Roof:
- Composition Roofing
Home features & finishes
- Appliances:
- Sprinkler System
- Construction Materials:
- BrickStone
- Cooling:
- Ceiling Fan(s)
- Flooring:
- Vinyl FlooringCarpet FlooringTile Flooring
- Foundation Details:
- Slab
- Garage/Parking:
- Door OpenerGarageGarage StorageAttached Garage
- Home amenities:
- Green Construction
- Interior Features:
- Ceiling-HighWired For SecurityWalk-In ClosetFoyerPantryWalk-In PantrySound System Wiring
- Kitchen:
- DishwasherMicrowave OvenRefrigeratorDisposalGas CooktopKitchen IslandElectric Oven
- Laundry facilities:
- DryerWasherUtility/Laundry Room
- Property amenities:
- Gas Log FireplaceBackyardCabinetsPatioFireplacePorch
- Rooms:
- Flex RoomPrimary Bedroom On MainKitchenOffice/StudyDining RoomFamily RoomOpen Concept FloorplanPrimary Bedroom Downstairs
Utility information
- Heating:
- Gas Heating
- Utilities:
- HVAC

Community details
Chapel Bend
by Gracepoint Homes, Montgomery, TX
- 8 homes
- 10 plans
- 2,656 - 4,947 sqft
View Chapel Bend details
More homes in Chapel Bend
Floor plans in Chapel Bend
About the builder - Gracepoint Homes
Neighborhood
Home address
- City:
- Montgomery
- County:
- Montgomery
- Zip Code:
- 77356
Schools in Montgomery Independent School District
GreatSchools’ Summary Rating calculation is based on 4 of the school’s themed ratings, including test scores, student/academic progress, college readiness, and equity. This information should only be used as a reference. Jome is not affiliated with GreatSchools and does not endorse or guarantee this information. Please reach out to schools directly to verify all information and enrollment eligibility. Data provided by GreatSchools.org © 2025
Places of interest
Getting around
Air quality
Natural hazards risk
Climate hazards can impact homes and communities, with risks varying by location. These scores reflect the potential impact of natural disasters and climate-related risks on Montgomery County
Provided by FEMA

Considering this home?
Our expert will guide your tour, in-person or virtual
Need more information?
Text or call (888) 486-2818
Financials
Estimated monthly payment
Similar homes nearby
Recently added communities in this area
Nearby communities in Montgomery
New homes in nearby cities
More New Homes in Montgomery, TX
Gracepoint Homes, MLS 81548362
Copyright © 2025, Houston Realtors Information Service, Inc. The information provided is exclusively for consumers’ personal, non-commercial use, and may not be used for any purpose other than to identify prospective properties consumers may be interested in purchasing. Information is deemed reliable but not guaranteed. All information provided should be independently verified.
Read moreLast checked Dec 6, 8:50 pm
- Home
- New homes
- Texas
- Greater Houston Area
- Montgomery County
- Montgomery
- Chapel Bend
- 11564 Chapel Bend Dr, Montgomery, TX 77356







































