













Book your tour. Save an average of $18,473. We'll handle the rest.
- Confirmed tours
- Get matched & compare top deals
- Expert help, no pressure
- No added fees
Estimated value based on Jome data, T&C apply
















- 4 bd
- 2.5 ba
- 1,745 sqft
3038 Nickell Back Dr, Conroe, TX 77301
Why tour with Jome?
- No pressure toursTour at your own pace with no sales pressure
- Expert guidanceGet insights from our home buying experts
- Exclusive accessSee homes and deals not available elsewhere
Jome is featured in
- Single-Family
- Quick move-in
- $147.85/sqft
- $495/annual HOA
Home description
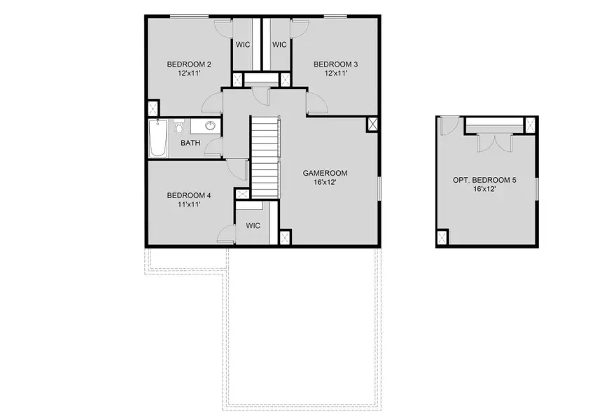
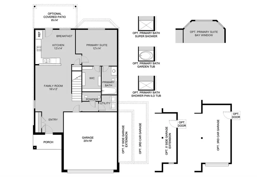
Love where you live in Mackenzie Creek in Conroe, Texas! Conveniently located off 336, East of 45 - where homeowners enjoy the benefit of low property taxes and close proximity to Lake Conroe. The Woodland floor plan is an open concept 2-story home featuring 4 bedrooms, 2.5 bathrooms, game room, and a 2-car garage. This home has it all, including privacy blinds and vinyl plank flooring throughout the common areas! Washer, dryer, and refrigerator are included, too! The gourmet kitchen is sure to please with 42" cabinets, granite countertops, and stainless-steel appliances! Retreat to the first-floor Owner's Suite featuring a beautiful bay window, granite countertops, an oversized shower, and spacious walk-in closet! Enjoy the great outdoors with a sprinkler system and a covered patio! Don't miss your opportunity to call Mackenzie Creek home, schedule a visit today!
Legend Home Corporation, MLS 50518899
May also be listed on the Legend Homes website
Information last verified by Jome: Today at 2:34 AM (January 16, 2026)
Book your tour. Save an average of $18,473. We'll handle the rest.
We collect exclusive builder offers, book your tours, and support you from start to housewarming.
- Confirmed tours
- Get matched & compare top deals
- Expert help, no pressure
- No added fees
Estimated value based on Jome data, T&C apply
Home details
- Property status:
- Move-in ready
- Lot size (acres):
- 0.10
- Size:
- 1,745 sqft
- Stories:
- 2
- Beds:
- 4
- Baths:
- 2
- Half baths:
- 1
- Garage spaces:
- 2
- Facing direction:
- East
Construction details
- Builder Name:
- Legend Homes
- Completion Date:
- October, 2025
- Year Built:
- 2025
- Roof:
- Composition Roofing
Home features & finishes
- Appliances:
- Sprinkler System
- Construction Materials:
- CementBrick
- Cooling:
- Ceiling Fan(s)
- Flooring:
- Vinyl FlooringCarpet Flooring
- Foundation Details:
- Slab
- Garage/Parking:
- GarageAttached Garage
- Home amenities:
- Green Construction
- Interior Features:
- Walk-In ClosetPantryBreakfast Bar
- Kitchen:
- DishwasherMicrowave OvenOvenRefrigeratorDisposalGas CooktopGas OvenKitchen Range
- Laundry facilities:
- DryerWasher
- Lighting:
- Lighting
- Property amenities:
- BarBackyard
- Rooms:
- Kitchen

Get a consultation with our New Homes Expert
- See how your home builds wealth
- Plan your home-buying roadmap
- Discover hidden gems
Utility information
- Heating:
- Gas Heating
- Utilities:
- HVAC

Community details
Mackenzie Creek
by Legend Homes, Conroe, TX
- 20 homes
- 9 plans
- 1,331 - 2,622 sqft
View Mackenzie Creek details
More homes in Mackenzie Creek
- Home at address 3058 Nickell Back Dr, Conroe, TX 77301

The Woodland
$259,990
- 4 bd
- 2.5 ba
- 1,745 sqft
3058 Nickell Back Dr, Conroe, TX 77301
- Home at address 3022 Nickell Back Dr, Conroe, TX 77301

The Lowry
$261,990
- 4 bd
- 2.5 ba
- 1,940 sqft
3022 Nickell Back Dr, Conroe, TX 77301
- Home at address 3797 Alexus Dr, Conroe, TX 77301

The Evergreen
$269,990
- 4 bd
- 2.5 ba
- 2,032 sqft
3797 Alexus Dr, Conroe, TX 77301
- Home at address 3082 Nickell Back Dr, Conroe, TX 77301

The Woodland
$269,990
- 4 bd
- 2.5 ba
- 1,745 sqft
3082 Nickell Back Dr, Conroe, TX 77301
- Home at address 3042 Nickell Back Dr, Conroe, TX 77301

The Evergreen
$271,990
- 4 bd
- 2.5 ba
- 2,032 sqft
3042 Nickell Back Dr, Conroe, TX 77301
- Home at address 3014 Nickell Back Dr, Conroe, TX 77301

The Evergreen
$272,990
- 4 bd
- 2.5 ba
- 2,032 sqft
3014 Nickell Back Dr, Conroe, TX 77301
Floor plans in Mackenzie Creek
About the builder - Legend Homes
Neighborhood
Home address
- City:
- Conroe
- County:
- Montgomery
- Zip Code:
- 77301
Schools in Conroe Independent School District
- Grades PK-12Privateconroe adventist academy0.8 mi3601 s loop 336 ena
GreatSchools’ Summary Rating calculation is based on 4 of the school’s themed ratings, including test scores, student/academic progress, college readiness, and equity. This information should only be used as a reference. Jome is not affiliated with GreatSchools and does not endorse or guarantee this information. Please reach out to schools directly to verify all information and enrollment eligibility. Data provided by GreatSchools.org © 2025
Places of interest
Getting around
Air quality
Noise level
A Soundscore™ rating is a number between 50 (very loud) and 100 (very quiet) that tells you how loud a location is due to environmental noise.

Considering this home?
Our expert will guide your tour, in-person or virtual
Need more information?
Text or call (888) 486-2818
Financials
Estimated monthly payment
Let us help you find your dream home
How many bedrooms are you looking for?
Similar homes nearby
Recently added communities in this area
Nearby communities in Conroe
New homes in nearby cities
More New Homes in Conroe, TX
Legend Home Corporation, MLS 50518899
Copyright © 2025, Houston Realtors Information Service, Inc. The information provided is exclusively for consumers’ personal, non-commercial use, and may not be used for any purpose other than to identify prospective properties consumers may be interested in purchasing. Information is deemed reliable but not guaranteed. All information provided should be independently verified.
Read moreLast checked Jan 16, 8:50 pm
- Jome
- New homes search
- Texas
- Greater Houston Area
- Montgomery County
- Conroe
- Mackenzie Creek
- 3038 Nickell Back Dr, Conroe, TX 77301






























