













Book your tour. Save an average of $18,473. We'll handle the rest.
- Confirmed tours
- Get matched & compare top deals
- Expert help, no pressure
- No added fees
Estimated value based on Jome data, T&C apply
Why tour with Jome?
- No pressure toursTour at your own pace with no sales pressure
- Expert guidanceGet insights from our home buying experts
- Exclusive accessSee homes and deals not available elsewhere
Jome is featured in
- Single-Family
- Quick move-in
- $161.61/sqft
- $1,075/annual HOA
Home description
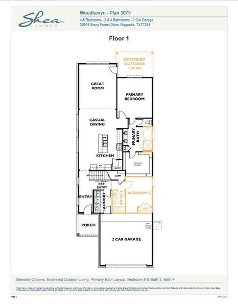
SHEA HOMES NEW CONSTRUCTION in Woodhavyn! Beautiful 2-story home with 5 bedrooms, 4 full baths, 2 car garage. 2 Bedrooms on 1st floor w/3 bedrooms and gameroom on 2nd floor. Bedroom #5 on the 1st floor could be used as a home office/study area. Full Stucco exterior all 4 sides w/composition roof. Large extended outside living patio. The kitchen features BUILT-IN Whirlpool Appliances w/36-inch 5-burner cooktop. Full gutters, wood floors, upper cabinets in the laundry room, double trash can pull-out in the kitchen island. Full exterior gutters. 5 1/4" baseboards, rounded sheetrock corners, ring doorbell, Eero Mesh Device, keyless entry front door lock, fully automated sprinkler system, landscaping, Amazon Video Display, Smart Home Capabilities, and much more! Shea Homes at Woodhavyn - Come LIVE THE DIFFERENCE.
Shea Homes, MLS 77263223
May also be listed on the Shea Homes website
Information last verified by Jome: Today at 2:33 AM (January 22, 2026)
Book your tour. Save an average of $18,473. We'll handle the rest.
We collect exclusive builder offers, book your tours, and support you from start to housewarming.
- Confirmed tours
- Get matched & compare top deals
- Expert help, no pressure
- No added fees
Estimated value based on Jome data, T&C apply
Home details
- Property status:
- Move-in ready
- Lot size (acres):
- 0.15
- Size:
- 2,506 sqft
- Stories:
- 2
- Beds:
- 5
- Baths:
- 4
- Garage spaces:
- 2
- Facing direction:
- East
Construction details
- Builder Name:
- Shea Homes
- Completion Date:
- October, 2025
- Year Built:
- 2025
- Roof:
- Composition Roofing
Home features & finishes
- Appliances:
- Sprinkler System
- Construction Materials:
- Stucco
- Flooring:
- Wood FlooringTile Flooring
- Foundation Details:
- SlabPillar/Post/Pier
- Garage/Parking:
- Door OpenerGarageAttached Garage
- Home amenities:
- Green Construction
- Interior Features:
- Ceiling-HighWired For SecurityWalk-In ClosetCrown MoldingFoyerBreakfast BarWalk-In Pantry
- Kitchen:
- DishwasherMicrowave OvenOvenDisposalGas CooktopGas Oven
- Laundry facilities:
- DryerWasher
- Property amenities:
- BarBackyardCabinetsFireplace
- Rooms:
- Kitchen

Get a consultation with our New Homes Expert
- See how your home builds wealth
- Plan your home-buying roadmap
- Discover hidden gems
Utility information
- Heating:
- Gas Heating
- Utilities:
- HVAC

Community details
Woodhavyn 40'
by Shea Homes, Magnolia, TX
- 9 homes
- 9 plans
- 1,529 - 2,506 sqft
View Woodhavyn 40' details
More homes in Woodhavyn 40'
- Home at address 29945 Stony Forest Dr, Magnolia, TX 77354

Plan 3009 Elevation C
$323,990
- 3 bd
- 2 ba
- 1,529 sqft
29945 Stony Forest Dr, Magnolia, TX 77354
- Home at address 29965 Stony Forest Dr, Magnolia, TX 77354

Plan 3034 Elevation A
$339,990
- 3 bd
- 3 ba
- 1,856 sqft
29965 Stony Forest Dr, Magnolia, TX 77354
- Home at address 29985 Stony Forest Dr, Magnolia, TX 77354

Plan 3034 Elevation C
$349,990
- 3 bd
- 3 ba
- 1,856 sqft
29985 Stony Forest Dr, Magnolia, TX 77354
- Home at address 29946 Stony Forest Dr, Magnolia, TX 77354

Plan 3034 Elevation C
$359,990
- 4 bd
- 3 ba
- 1,866 sqft
29946 Stony Forest Dr, Magnolia, TX 77354
- Home at address 29949 Stony Forest Dr, Magnolia, TX 77354

Plan 3039 Elevation B
$394,990
- 4 bd
- 3 ba
- 2,153 sqft
29949 Stony Forest Dr, Magnolia, TX 77354
- Home at address 30313 Ruby Forest Ct, Magnolia, TX 77354

Plan 3059 Elevation B
$394,990
- 4 bd
- 3.5 ba
- 2,477 sqft
30313 Ruby Forest Ct, Magnolia, TX 77354
Floor plans in Woodhavyn 40'
About the builder - Shea Homes
Neighborhood
Home address
- City:
- Magnolia
- County:
- Montgomery
- Zip Code:
- 77354
Schools in Magnolia Independent School District
GreatSchools’ Summary Rating calculation is based on 4 of the school’s themed ratings, including test scores, student/academic progress, college readiness, and equity. This information should only be used as a reference. Jome is not affiliated with GreatSchools and does not endorse or guarantee this information. Please reach out to schools directly to verify all information and enrollment eligibility. Data provided by GreatSchools.org © 2025
Places of interest
Getting around
Air quality
Noise level
A Soundscore™ rating is a number between 50 (very loud) and 100 (very quiet) that tells you how loud a location is due to environmental noise.

Considering this home?
Our expert will guide your tour, in-person or virtual
Need more information?
Text or call (888) 486-2818
Financials
Estimated monthly payment
Let us help you find your dream home
How many bedrooms are you looking for?
Similar homes nearby
Recently added communities in this area
Nearby communities in Magnolia
New homes in nearby cities
More New Homes in Magnolia, TX
Shea Homes, MLS 77263223
Copyright © 2025, Houston Realtors Information Service, Inc. The information provided is exclusively for consumers’ personal, non-commercial use, and may not be used for any purpose other than to identify prospective properties consumers may be interested in purchasing. Information is deemed reliable but not guaranteed. All information provided should be independently verified.
Read moreLast checked Jan 22, 8:50 am
- Jome
- New homes search
- Texas
- Greater Houston Area
- Montgomery County
- Magnolia
- Woodhavyn 40'
- 29969 Stony Forest Dr, Magnolia, TX 77354



































