








Book your tour. Save an average of $18,473. We'll handle the rest.
We collect exclusive builder offers, book your tours, and support you from start to housewarming.
- Confirmed tours
- Get matched & compare top deals
- Expert help, no pressure
- No added fees
Estimated value based on Jome data, T&C apply












































- 5 bd
- 4.5 ba
- 3,690 sqft
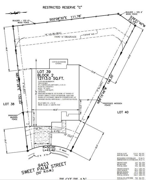
9423 Sweet Palm St, Richmond, TX 77407
Why tour with Jome?
- No pressure toursTour at your own pace with no sales pressure
- Expert guidanceGet insights from our home buying experts
- Exclusive accessSee homes and deals not available elsewhere
Jome is featured in
- Single-Family
- Quick move-in
- $196.24/sqft
- $1,000/annual HOA
Home description
What's Special: Media Room | Game Room | 5th Bedroom | Dedicated Study. New Construction - Ready Now! Built by Taylor Morrison, America's Most Trusted Home Builder. Welcome to the Carnelian at 9423 Sweet Palm Street in Trillium! This home blends charm with modern convenience. Off the foyer, a private study and dining nook lead to a spacious great room with a fireplace. The kitchen features a breakfast bar and walk-in pantry, opening to covered back patio. Behind double doors, the main-floor suite offers a soaking tub, large shower, dual vanities, and generous closet, with laundry nearby. A guest room with full bath adds flexibility. Upstairs includes three bedrooms, two baths, game room, and media room. Enjoy Trillium’s pool, rec center, and close-knit community vibe near top-rated schools and everyday essentials. Additional highlights include: private study, fireplace in the great room, and drop-in tub in the primary bathroom. Photos are for representative purposes only. MLS#43894832
Alexander Properties, MLS 43894832
May also be listed on the Taylor Morrison website
Information last verified by Jome: Today at 2:37 AM (April 23, 2026)
Home highlights
Major Houston business hub home to energy giants, top jobs, and master-planned communities with greenbelt access.
Book your tour. Save an average of $18,473. We'll handle the rest.
We collect exclusive builder offers, book your tours, and support you from start to housewarming.
- Confirmed tours
- Get matched & compare top deals
- Expert help, no pressure
- No added fees
Estimated value based on Jome data, T&C apply
Home details
- Property status:
- Move-in ready
- Collection:
- Trillium 60s
- Lot size (acres):
- 0.28
- Size:
- 3,690 sqft
- Stories:
- 2
- Beds:
- 5
- Baths:
- 4
- Half baths:
- 1
- Garage spaces:
- 2
- Fence:
- Partial Fence
- Facing direction:
- Northwest
Construction details
- Builder Name:
- Taylor Morrison
- Completion Date:
- December, 2025
- Year Built:
- 2025
- Roof:
- Composition Roofing
Home features & finishes
- Appliances:
- Sprinkler System
- Construction Materials:
- StuccoBrickStone
- Cooling:
- Ceiling Fan(s)
- Flooring:
- Wood FlooringCarpet FlooringTile Flooring
- Foundation Details:
- Slab
- Garage/Parking:
- GarageAttached Garage
- Home amenities:
- Green Construction
- Interior Features:
- Ceiling-HighWired For SecurityWalk-In ClosetFoyerPantry
- Kitchen:
- DishwasherMicrowave OvenOvenDisposalGas CooktopKitchen Island
- Laundry facilities:
- DryerWasherLaundry Facilities in BathroomUtility/Laundry Room
- Property amenities:
- Cul-de-sacGas Log FireplaceBathtub in primaryCovered PatioPatioFireplaceSmart Home SystemPorch
- Rooms:
- Flex RoomPrimary Bedroom On MainKitchenPowder RoomGame RoomMedia RoomOffice/StudyDining RoomFamily RoomPrimary Bedroom Downstairs

Get a consultation with our New Homes Expert
- See how your home builds wealth
- Plan your home-buying roadmap
- Discover hidden gems
Utility information
- Heating:
- Water Heater, Gas Heating
- Water source:
- Public

Community details
Trillium
by Taylor Morrison, Richmond, TX
- 16 homes
- 19 plans
- 1,675 - 3,970 sqft
View Trillium details
More homes in Trillium
- Home at address 9615 Periwinkle Chase Dr, Richmond, TX 77407

Sawyer
Trillium 40s
$476,960
- 5 bd
- 3 ba
- 2,462 sqft
9615 Periwinkle Chase Dr, Richmond, TX 77407
- Home at address 9610 Pink Lotus Ct, Richmond, TX 77407

Camelia
Trillium 50s
$582,111
- 5 bd
- 4 ba
- 2,937 sqft
9610 Pink Lotus Ct, Richmond, TX 77407
- Home at address 9614 Pink Lotus Ct, Richmond, TX 77407

Cabernet
Trillium 50s
$639,880
- 5 bd
- 4.5 ba
- 3,178 sqft
9614 Pink Lotus Ct, Richmond, TX 77407
- Home at address 9627 Pink Lotus Ct, Richmond, TX 77407

Bordeaux
Trillium 50s
$644,786
- 5 bd
- 4.5 ba
- 3,319 sqft
9627 Pink Lotus Ct, Richmond, TX 77407
- Home at address 17910 Primrose Grove Dr, Richmond, TX 77407

Bordeaux
Trillium 50s
$653,230
- 5 bd
- 4.5 ba
- 3,319 sqft
17910 Primrose Grove Dr, Richmond, TX 77407
- Home at address 9410 Sweet Palm St, Richmond, TX 77407

Regatta
Trillium 60s
$686,700
- 5 bd
- 4 ba
- 3,611 sqft
9410 Sweet Palm St, Richmond, TX 77407
Floor plans in Trillium
About the builder - Taylor Morrison

- 315communities on Jome
- 1,351homes on Jome
Neighborhood
Home address
Schools in Fort Bend Independent School District
- Grades PK-05Publicmission bend glen elementary1.4 mi16003 mission glenna
GreatSchools’ Summary Rating calculation is based on 4 of the school’s themed ratings, including test scores, student/academic progress, college readiness, and equity. This information should only be used as a reference. Jome is not affiliated with GreatSchools and does not endorse or guarantee this information. Please reach out to schools directly to verify all information and enrollment eligibility. Data provided by GreatSchools.org © 2025
Places of interest
Getting around
Air quality
Noise level
A Soundscore™ rating is a number between 50 (very loud) and 100 (very quiet) that tells you how loud a location is due to environmental noise.

Considering this home?
Our expert will guide your tour, in-person or virtual
Need more information?
Text or call (888) 545-5198
Financials
Estimated monthly payment
Let us help you find your dream home
How many bedrooms are you looking for?
Similar homes nearby
Recently added communities in this area
Nearby communities in Richmond
New homes in nearby cities
More New Homes in Richmond, TX
Alexander Properties, MLS 43894832
Copyright © 2025, Houston Realtors Information Service, Inc. The information provided is exclusively for consumers’ personal, non-commercial use, and may not be used for any purpose other than to identify prospective properties consumers may be interested in purchasing. Information is deemed reliable but not guaranteed. All information provided should be independently verified.
Read moreLast checked Apr 23, 2:50 pm
- Jome
- New homes search
- Texas
- Greater Houston Area
- Fort Bend County
- Richmond
- Trillium
- Trillium 60s
- 9423 Sweet Palm St, Richmond, TX 77407































