














Book your tour. Save an average of $18,473. We'll handle the rest.
- Confirmed tours
- Get matched & compare top deals
- Expert help, no pressure
- No added fees
Estimated value based on Jome data, T&C apply







Why tour with Jome?
- No pressure toursTour at your own pace with no sales pressure
- Expert guidanceGet insights from our home buying experts
- Exclusive accessSee homes and deals not available elsewhere
Jome is featured in
- Single-Family
- Quick move-in
- $263.41/sqft
- $500/annual HOA
Home description
Price adjustment reflects addition of the newly added privacy fencing to provide durability, style, and seclusion!
Welcome to 130 Galena Street, a brand-new construction home in the desirable Settler’s Glen
community of New Fairview. Nestled on a generous half-acre lot, this home offers the perfect
balance of wide-open space, modern style, and everyday convenience. With easy access to
Hwy 114, I-35W, and Hwy 287, you’ll enjoy the quiet charm of country living while staying close
to shopping, dining, entertainment, and major work centers.
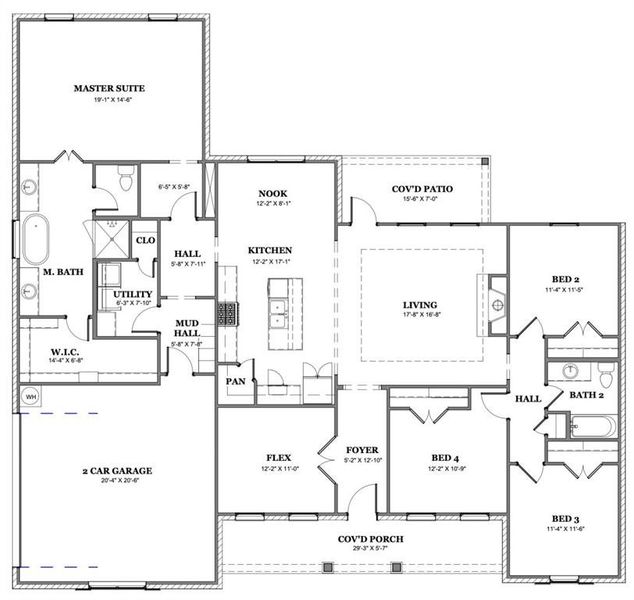
Inside, you’ll find luxury vinyl wood-style flooring throughout the entry, living, kitchen, flex room,
and halls for a seamless, stylish flow. The open-concept kitchen is designed for both function
and entertaining, with an expansive eat-in island, stainless steel appliances, and electric range.
A signature brick arch at the entry and a cozy wood-burning fireplace in the living room add
warmth and architectural charm.
The spacious master suite is a true retreat, featuring a spa-like bathroom with a freestanding
soaking tub, separate shower, and designer tile selections. Throughout the home, designer
lighting and finishes create a polished, inviting atmosphere.
Step outside to enjoy your covered patio, perfect for weekend gatherings or quiet evenings.
With a full landscaping
Ask about our Incentives
Ask about our other builder homes
League Real Estate, MLS 20947494
May also be listed on the Clarity Homes website
Information last verified by Jome: Today at 12:56 AM (January 20, 2026)
Book your tour. Save an average of $18,473. We'll handle the rest.
We collect exclusive builder offers, book your tours, and support you from start to housewarming.
- Confirmed tours
- Get matched & compare top deals
- Expert help, no pressure
- No added fees
Estimated value based on Jome data, T&C apply
Home details
- Property status:
- Move-in ready
- Lot size (acres):
- 0.14
- Size:
- 2,312 sqft
- Stories:
- 1
- Beds:
- 4
- Baths:
- 2
- Garage spaces:
- 2
Construction details
- Builder Name:
- Clarity Homes
- Year Built:
- 2025
- Roof:
- Composition Roofing
Home features & finishes
- Appliances:
- Sprinkler System
- Flooring:
- Vinyl Flooring
- Foundation Details:
- Slab
- Garage/Parking:
- ParkingGarageAttached Garage
- Interior Features:
- Walk-In ClosetPantry
- Kitchen:
- DishwasherMicrowave OvenDisposalStainless Steel AppliancesElectric CooktopGranite countertopKitchen IslandKitchen RangeElectric Oven
- Laundry facilities:
- Utility/Laundry Room
- Lighting:
- ChandelierDecorative/Designer Lighting
- Property amenities:
- BalconyFireplace
- Rooms:
- Primary Bedroom On MainKitchenOpen Concept FloorplanPrimary Bedroom Downstairs
- Security system:
- Fire Alarm SystemSmoke Detector

Get a consultation with our New Homes Expert
- See how your home builds wealth
- Plan your home-buying roadmap
- Discover hidden gems
Utility information
- Heating:
- Water Heater, Central Heating
- Utilities:
- Electricity Available, Aerobic Septic System, Cable TV, Curbs

Community details
Settler’s Glen
by Clarity Homes, Fort Worth, TX
- 2 homes
- 2,312 - 2,378 sqft
View Settler’s Glen details
More homes in Settler’s Glen
- Home at address 179 Galena St, New Fairview, TX 76107

Home
$639,000
- 4 bd
- 2 ba
- 2,378 sqft
179 Galena St, New Fairview, TX 76107
About the builder - Clarity Homes
Neighborhood
Home address
- City:
- New Fairview
- County:
- Wise
- Zip Code:
- 76107
Schools in Fort Worth Independent School District
- Grades KG-KGPrivatemontessori school on camp bowie0.9 mi1801 ashland avena
GreatSchools’ Summary Rating calculation is based on 4 of the school’s themed ratings, including test scores, student/academic progress, college readiness, and equity. This information should only be used as a reference. Jome is not affiliated with GreatSchools and does not endorse or guarantee this information. Please reach out to schools directly to verify all information and enrollment eligibility. Data provided by GreatSchools.org © 2025
Places of interest
Getting around
3 nearby routes: 3 bus, 0 rail, 0 otherAir quality
Noise level
A Soundscore™ rating is a number between 50 (very loud) and 100 (very quiet) that tells you how loud a location is due to environmental noise.

Considering this home?
Our expert will guide your tour, in-person or virtual
Need more information?
Text or call (888) 486-2818
Financials
Estimated monthly payment
Let us help you find your dream home
How many bedrooms are you looking for?
Similar homes nearby
Recently added communities in this area
Nearby communities in New Fairview
New homes in nearby cities
More New Homes in New Fairview, TX
League Real Estate, MLS 20947494
IDX information is provided exclusively for personal, non-commercial use, and may not be used for any purpose other than to identify prospective properties consumers may be interested in purchasing. You may not reproduce or redistribute this data, it is for viewing purposes only. This data is deemed reliable, but is not guaranteed accurate by the MLS or NTREIS.
Read moreLast checked Jan 20, 10:00 am
- Jome
- New homes search
- Texas
- Dallas-Fort Worth Area
- Wise County
- New Fairview
- Settler’s Glen
- 130 Galena St, New Fairview, TX 76107



























