














Book your tour. Save an average of $18,473. We'll handle the rest.
- Confirmed tours
- Get matched & compare top deals
- Expert help, no pressure
- No added fees
Estimated value based on Jome data, T&C apply























Why tour with Jome?
- No pressure toursTour at your own pace with no sales pressure
- Expert guidanceGet insights from our home buying experts
- Exclusive accessSee homes and deals not available elsewhere
Jome is featured in
- Single-Family
- Quick move-in
- $126.1/sqft
- $1,200/annual HOA
Home description
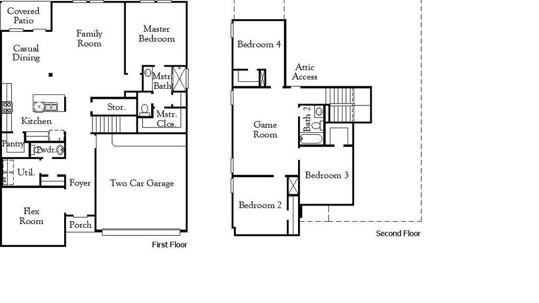
Experience comfort, versatility, and style in the beautifully designed Martin Plan, located in the gated River Ranch community. This spacious home features a flexible main-floor room—perfect as a home office, gym, or guest suite—and a private downstairs primary suite for added convenience. The open-concept kitchen is a showstopper, complete with 42-inch cabinetry, Omega stone countertops, and a seamless flow into the living area—ideal for gatherings and everyday living. Upstairs, a large game room offers additional space for recreation and relaxation. Enjoy resort-style amenities including a massive lagoon, scenic jogging trails, multiple playgrounds, a kids’ obstacle course, dog park, and more, making River Ranch a place you’ll love to call home.
Coventry Homes, MLS 7138608
May also be listed on the Coventry Homes website
Information last verified by Jome: Today at 2:31 AM (December 5, 2025)
Home highlights
Book your tour. Save an average of $18,473. We'll handle the rest.
We collect exclusive builder offers, book your tours, and support you from start to housewarming.
- Confirmed tours
- Get matched & compare top deals
- Expert help, no pressure
- No added fees
Estimated value based on Jome data, T&C apply
Home details
- Property status:
- Move-in ready
- Size:
- 2,379 sqft
- Stories:
- 2
- Beds:
- 4
- Baths:
- 2.5
- Garage spaces:
- 2
- Facing direction:
- East
Construction details
- Builder Name:
- Coventry Homes
- Year Built:
- 2025
- Roof:
- Composition Roofing
Home features & finishes
- Appliances:
- Sprinkler System
- Construction Materials:
- Brick
- Cooling:
- Ceiling Fan(s)
- Flooring:
- Vinyl FlooringCarpet FlooringTile Flooring
- Foundation Details:
- Slab
- Garage/Parking:
- GarageAttached Garage
- Home amenities:
- Green Construction
- Interior Features:
- Wired For SecurityWalk-In ClosetPantryWalk-In Pantry
- Kitchen:
- DishwasherMicrowave OvenDisposalGas CooktopKitchen IslandElectric Oven
- Laundry facilities:
- DryerWasher
- Property amenities:
- BackyardPorch
- Rooms:
- Kitchen
Utility information
- Heating:
- Gas Heating
- Utilities:
- HVAC

Community details
River Ranch Trails at River Ranch
by Coventry Homes, Dayton, TX
- 9 homes
- 8 plans
- 1,480 - 2,522 sqft
View River Ranch Trails details
More homes in River Ranch Trails
Floor plans in River Ranch Trails
About the builder - Coventry Homes
Neighborhood
Home address
Schools in Dayton Independent School District
- Grades PK-PKPubliccolbert elementary5.3 mi231 s colbert stna
GreatSchools’ Summary Rating calculation is based on 4 of the school’s themed ratings, including test scores, student/academic progress, college readiness, and equity. This information should only be used as a reference. Jome is not affiliated with GreatSchools and does not endorse or guarantee this information. Please reach out to schools directly to verify all information and enrollment eligibility. Data provided by GreatSchools.org © 2025
Places of interest
Getting around
Air quality
Natural hazards risk
Climate hazards can impact homes and communities, with risks varying by location. These scores reflect the potential impact of natural disasters and climate-related risks on Liberty County
Provided by FEMA

Considering this home?
Our expert will guide your tour, in-person or virtual
Need more information?
Text or call (888) 486-2818
Financials
Estimated monthly payment
Similar homes nearby
Recently added communities in this area
Nearby communities in Dayton
New homes in nearby cities
More New Homes in Dayton, TX
Coventry Homes, MLS 7138608
Copyright © 2025, Houston Realtors Information Service, Inc. The information provided is exclusively for consumers’ personal, non-commercial use, and may not be used for any purpose other than to identify prospective properties consumers may be interested in purchasing. Information is deemed reliable but not guaranteed. All information provided should be independently verified.
Read moreLast checked Dec 5, 2:50 am
- Home
- New homes
- Texas
- Greater Houston Area
- Liberty County
- Dayton
- River Ranch Trails
- 2422 E Heritage Dr, Dayton, TX 77535







































