









Book your tour. Save an average of $18,473. We'll handle the rest.
- Confirmed tours
- Get matched & compare top deals
- Expert help, no pressure
- No added fees
Estimated value based on Jome data, T&C apply
Why tour with Jome?
- No pressure toursTour at your own pace with no sales pressure
- Expert guidanceGet insights from our home buying experts
- Exclusive accessSee homes and deals not available elsewhere
Jome is featured in
- Single-Family
- Under construction
- $232.52/sqft
- $2,500/annual HOA
Home description
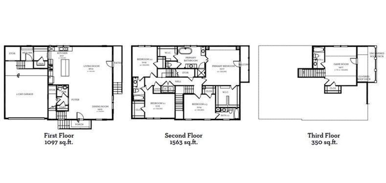
Zoned to STRATFORD HIGH SCHOOL and SPRING FOREST MIDDLE SCHOOL! This beautiful new home features 4 bedrooms and 4.5 bathrooms, a gameroom, a private backyard and a ROOFTOP TERRACE. Conveniently located in a quiet gated community near I-10 and Beltway 8. First floor living and dining areas feature soaring 12' ceilings and loads of natural light pouring in from windows all around. Stacked soft-close cabinets tower above a chef's kitchen with Bosch luxury appliances and a large island. The primary suite features TWO HUGE separate closets! The primary bathroom is beyond spacious and boasts a freestanding tub and separate shower with two separate vanities with LED lit mirrors! WOOD FLOORS throughout! The game room on third level leads out to a partially covered rooftop terrace. Located just two miles from the vibrant CITYCENTRE, you'll have easy access to premier shopping, fine dining, and entertainment. Come take a look today!
Intown Homes, MLS 15143267
May also be listed on the InTown Homes website
Information last verified by Jome: Today at 2:50 AM (December 5, 2025)
Home highlights
Major Houston business hub home to energy giants, top jobs, and master-planned communities with greenbelt access.
Book your tour. Save an average of $18,473. We'll handle the rest.
We collect exclusive builder offers, book your tours, and support you from start to housewarming.
- Confirmed tours
- Get matched & compare top deals
- Expert help, no pressure
- No added fees
Estimated value based on Jome data, T&C apply
Home details
- Property status:
- Under construction
- Neighborhood:
- Spring Branch West
- Lot size (acres):
- 0.08
- Size:
- 3,010 sqft
- Stories:
- 3+
- Beds:
- 4
- Baths:
- 4.5
- Garage spaces:
- 2
- Facing direction:
- West
Construction details
- Builder Name:
- InTown Homes
- Year Built:
- 2026
- Roof:
- Composition Roofing
Home features & finishes
- Construction Materials:
- Cement
- Cooling:
- Ceiling Fan(s)
- Flooring:
- Wood Flooring
- Foundation Details:
- Slab
- Garage/Parking:
- GarageAttached Garage
- Home amenities:
- Green Construction
- Interior Features:
- Walk-In ClosetFoyerPantry
- Kitchen:
- DishwasherMicrowave OvenOvenDisposalGas CooktopKitchen IslandGas Oven
- Laundry facilities:
- DryerWasherUtility/Laundry Room
- Property amenities:
- BalconyDeckBackyardCabinetsPorch
- Rooms:
- KitchenPowder RoomDining RoomFamily Room
Utility information
- Heating:
- Gas Heating
- Utilities:
- HVAC

Community details
Chatterton Oaks
by InTown Homes, Houston, TX
- 6 homes
- 2,205 - 3,010 sqft
View Chatterton Oaks details
More homes in Chatterton Oaks
About the builder - InTown Homes
Neighborhood
Home address
Schools in Spring Branch Independent School District
GreatSchools’ Summary Rating calculation is based on 4 of the school’s themed ratings, including test scores, student/academic progress, college readiness, and equity. This information should only be used as a reference. Jome is not affiliated with GreatSchools and does not endorse or guarantee this information. Please reach out to schools directly to verify all information and enrollment eligibility. Data provided by GreatSchools.org © 2025
Places of interest
Getting around
3 nearby routes: 3 bus, 0 rail, 0 otherAir quality
Noise level
A Soundscore™ rating is a number between 50 (very loud) and 100 (very quiet) that tells you how loud a location is due to environmental noise.
Natural hazards risk
Climate hazards can impact homes and communities, with risks varying by location. These scores reflect the potential impact of natural disasters and climate-related risks on Harris County
Provided by FEMA

Considering this home?
Our expert will guide your tour, in-person or virtual
Need more information?
Text or call (888) 486-2818
Financials
Estimated monthly payment
Similar homes nearby
Recently added communities in this area
Nearby communities in Houston
New homes in nearby cities
More New Homes in Houston, TX
Intown Homes, MLS 15143267
Copyright © 2025, Houston Realtors Information Service, Inc. The information provided is exclusively for consumers’ personal, non-commercial use, and may not be used for any purpose other than to identify prospective properties consumers may be interested in purchasing. Information is deemed reliable but not guaranteed. All information provided should be independently verified.
Read moreLast checked Dec 5, 8:50 am
- Home
- New homes
- Texas
- Greater Houston Area
- Harris County
- Houston
- Chatterton Oaks
- 11061 Chatterton Dr, Houston, TX 77043



























