














Book your tour. Save an average of $18,473. We'll handle the rest.
We collect exclusive builder offers, book your tours, and support you from start to housewarming.
- Confirmed tours
- Get matched & compare top deals
- Expert help, no pressure
- No added fees
Estimated value based on Jome data, T&C apply

















- 4 bd
- 3 ba
- 2,725 sqft
8239 Red Shiner Wy, Fulshear, TX 77441
Why tour with Jome?
- No pressure toursTour at your own pace with no sales pressure
- Expert guidanceGet insights from our home buying experts
- Exclusive accessSee homes and deals not available elsewhere
Jome is featured in
- Single-Family
- Quick move-in
- $141.28/sqft
- $1,800/annual HOA
Home description
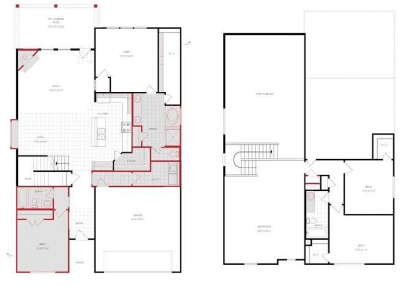
This spacious 4-bedroom, 3-bath Hemlock plan by Brohn Homes offers a thoughtful layout w/two bedrooms and two full baths conveniently located downstairs. Upstairs, a large game room and two additional bedrooms sharing a full bath provide space for family, guests, or a home office. The kitchen features quartz countertops, 42" cabinets with crown molding, a ceramic tile backsplash, a large island w/a built-in sink, and a walk-in pantry. Elegant flooring flows throughout the main living areas, creating a bright, open atmosphere. The primary suite includes dual sinks, a garden tub with a picture window, a separate shower, and a generous walk-in closet. Outside, enjoy a front porch, a covered back patio with no back neighbors, and a nearby creek, full sod, sprinkler system, gutters, and a tankless water heater. Built with Zip System sheathing and a durable truss system, this home combines lasting structural integrity with modern style—ideal for families seeking comfort and functionality.
HistoryMaker Homes, MLS 3985323
May also be listed on the Brohn Homes website
Information last verified by Jome: Today at 2:32 AM (March 3, 2026)
Book your tour. Save an average of $18,473. We'll handle the rest.
We collect exclusive builder offers, book your tours, and support you from start to housewarming.
- Confirmed tours
- Get matched & compare top deals
- Expert help, no pressure
- No added fees
Estimated value based on Jome data, T&C apply
Home details
- Property status:
- Move-in ready
- Lot size (acres):
- 0.14
- Size:
- 2,725 sqft
- Stories:
- 2
- Beds:
- 4
- Baths:
- 3
- Garage spaces:
- 2
- Facing direction:
- Southwest
Construction details
- Builder Name:
- Brohn Homes
- Completion Date:
- January, 2026
- Year Built:
- 2024
- Roof:
- Composition Roofing
Home features & finishes
- Appliances:
- Sprinkler System
- Construction Materials:
- CementBrick
- Cooling:
- Ceiling Fan(s)
- Flooring:
- Vinyl FlooringCarpet Flooring
- Foundation Details:
- Slab
- Garage/Parking:
- GarageAttached Garage
- Home amenities:
- ENERGY STAR CertifiedGreen Construction
- Interior Features:
- Ceiling-High
- Kitchen:
- DishwasherMicrowave OvenOvenDisposalGas CooktopGas OvenKitchen Range
- Laundry facilities:
- Dryer
- Lighting:
- Lighting
- Property amenities:
- BackyardPorch

Get a consultation with our New Homes Expert
- See how your home builds wealth
- Plan your home-buying roadmap
- Discover hidden gems
Utility information
- Heating:
- Water Heater, Gas Heating
- Utilities:
- HVAC

Community details
Fulshear Lakes at Fulshear Lakes
by Brohn Homes, Fulshear, TX
- 1 home
- 6 plans
- 1,754 - 3,001 sqft
View Fulshear Lakes details
Floor plans in Fulshear Lakes
- View details for Cottonwood II Fulshear Lakes 50s

Cottonwood II Fulshear Lakes 50s
$365,990+- 4 bd
- 2 ba
- 1,823 sqft
- View details for Olive III Fulshear Lakes 50s

Olive III Fulshear Lakes 50s
$404,990+- 4 bd
- 2 ba
- 2,192 sqft
About the builder - Brohn Homes
Neighborhood
Home address
Schools in Lamar Consolidated Independent School District
- Grades M-MPublicviola gilmore randle elementary2.8 mi5902 sycamore ranch lnna
- Grades PK-05Privatesimonton christian academy3.0 mi9703 fm 1489na
GreatSchools’ Summary Rating calculation is based on 4 of the school’s themed ratings, including test scores, student/academic progress, college readiness, and equity. This information should only be used as a reference. Jome is not affiliated with GreatSchools and does not endorse or guarantee this information. Please reach out to schools directly to verify all information and enrollment eligibility. Data provided by GreatSchools.org © 2025
Places of interest
Getting around
Air quality

Considering this home?
Our expert will guide your tour, in-person or virtual
Need more information?
Text or call (888) 488-9243
Financials
Estimated monthly payment
Let us help you find your dream home
How many bedrooms are you looking for?
Similar homes nearby
Recently added communities in this area
Nearby communities in Fulshear
New homes in nearby cities
More New Homes in Fulshear, TX
HistoryMaker Homes, MLS 3985323
Copyright © 2025, Houston Realtors Information Service, Inc. The information provided is exclusively for consumers’ personal, non-commercial use, and may not be used for any purpose other than to identify prospective properties consumers may be interested in purchasing. Information is deemed reliable but not guaranteed. All information provided should be independently verified.
Read moreLast checked Mar 3, 8:50 am
- Jome
- New homes search
- Texas
- Greater Houston Area
- Fort Bend County
- Fulshear
- Fulshear Lakes
- 8239 Red Shiner Wy, Fulshear, TX 77441
































