





























- 4 bd
- 2.5 ba
- 1,951 sqft
6013 Alfred Acres Dr, Del Valle, TX 78617
- Single-Family
- $171.96/sqft
- $225/quarterly HOA
- West facing
New Homes for Sale Near 6013 Alfred Acres Dr, Del Valle, TX 78617
About this Home
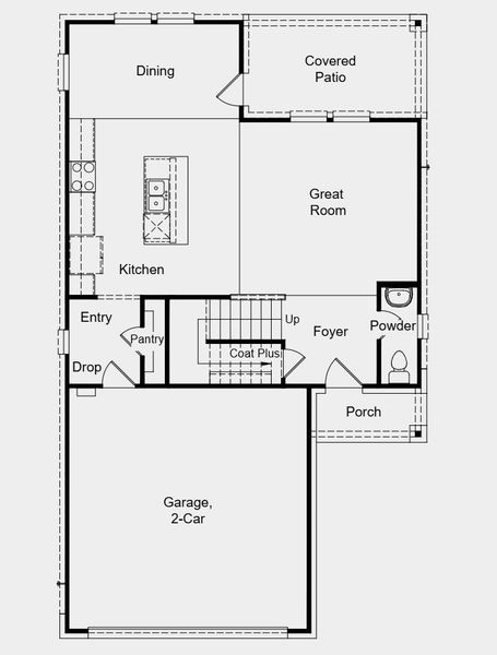
What's Special: Limited Time Price Reduction | East Facing Patio | Covered Patio. New Construction - Ready Now! Built by America's Most Trusted Homebuilder. Welcome to the Kestrel at 6013 Alfred Acres Drive in Longview! This thoughtfully designed two-story home offers a seamless blend of comfort and style, perfect for everyday living and entertaining. Step through the front porch into a bright foyer with a nearby powder room, then flow into a spacious gathering room that connects effortlessly to the kitchen and dining area. The kitchen shines with granite countertops, a tile backsplash, a center island, and easy access to the covered patio. Upstairs, a central game room links three secondary bedrooms, a full bath, and a convenient laundry space. The private primary suite provides a peaceful retreat with a spa-inspired bath and a generous walk-in closet. Additional Highlights include: covered patio. Photos are for representative purposes only.
May also be listed on the Taylor Morrison website
Information last verified by Jome: Wednesday at 6:50 AM (January 7, 2026)
Home details
- Property status:
- Sold
- Lot size (acres):
- 0.11
- Size:
- 1,951 sqft
- Stories:
- 2
- Beds:
- 4
- Baths:
- 2.5
- Garage spaces:
- 2
- Fence:
- Wood Fence
- Facing direction:
- West
Construction details
- Builder Name:
- Taylor Morrison
- Completion Date:
- October, 2025
- Year Built:
- 2025
- Roof:
- Shingle Roofing
Home features & finishes
- Appliances:
- Exhaust Fan Vented
- Cooling:
- Ceiling Fan(s)Central Air
- Flooring:
- Vinyl FlooringCarpet Flooring
- Foundation Details:
- Slab
- Garage/Parking:
- Door OpenerGarageAttached Garage
- Home amenities:
- Green Construction
- Interior Features:
- Walk-In ClosetFoyerPantryBlindsStorage
- Kitchen:
- RefrigeratorStainless Steel AppliancesGas CooktopKitchen IslandGas OvenKitchen Range
- Laundry facilities:
- Laundry Facilities On Upper LevelDryerWasherUtility/Laundry Room
- Property amenities:
- PatioPorch
- Rooms:
- KitchenPowder RoomGame RoomDining RoomFamily RoomOpen Concept FloorplanPrimary Bedroom Upstairs
- Security system:
- Smoke DetectorCarbon Monoxide Detector
Utility information
- Heating:
- Water Heater, Central Heating, Gas Heating, Tankless water heater
- Utilities:
- Electricity Available, Natural Gas Available, Underground Utilities, HVAC, Cable Available, Water Available

Community details
Longview 40s
by Taylor Morrison, Del Valle, TX
- 11 homes
- 8 plans
- 1,463 - 2,369 sqft
View Longview 40s details
Community amenities
- Common Grounds
- Club House
- Sport Court
- Community Pool
- Sport Facility
- Sidewalks Available
More homes in Longview 40s
- Home at address 14317 Matterod Dr, Del Valle, TX 78617

$331,490
Under construction- 4 bd
- 2 ba
- 1,637 sqft
14317 Matterod Dr, Del Valle, TX 78617
- Home at address 14221 Matterod Dr, Del Valle, TX 78617

$344,490
Under construction- 4 bd
- 2.5 ba
- 1,951 sqft
14221 Matterod Dr, Del Valle, TX 78617
- Home at address 14125 Matterod Dr, Del Valle, TX 78617

$344,950
Move-in ready- 4 bd
- 2.5 ba
- 1,954 sqft
14125 Matterod Dr, Del Valle, TX 78617
- Home at address 14120 Edna Maxine Walk, Del Valle, TX 78617

$372,990
Under construction- 4 bd
- 2.5 ba
- 2,207 sqft
14120 Edna Maxine Walk, Del Valle, TX 78617
- Home at address 14112 Edna Maxine Walk, Del Valle, TX 78617

$374,990
Under construction- 4 bd
- 3 ba
- 2,369 sqft
14112 Edna Maxine Walk, Del Valle, TX 78617
- Home at address 5901 Beverly Prairie Rd, Del Valle, TX 78617

$389,660
Move-in ready- 4 bd
- 2.5 ba
- 2,078 sqft
5901 Beverly Prairie Rd, Del Valle, TX 78617
Floor plans in Longview 40s
About the builder - Taylor Morrison

- 259communities on Jome
- 1,426homes on Jome
Neighborhood
Home address
Schools in Del Valle Independent School District
GreatSchools’ Summary Rating calculation is based on 4 of the school’s themed ratings, including test scores, student/academic progress, college readiness, and equity. This information should only be used as a reference. Jome is not affiliated with GreatSchools and does not endorse or guarantee this information. Please reach out to schools directly to verify all information and enrollment eligibility. Data provided by GreatSchools.org © 2025
Places of interest
Getting around
1 nearby routes: 1 bus, 0 rail, 0 otherAir quality
Noise level
A Soundscore™ rating is a number between 50 (very loud) and 100 (very quiet) that tells you how loud a location is due to environmental noise.
Financials
Nearby communities in Del Valle
Homes in Del Valle by Taylor Morrison
Recently added communities in this area
Other Builders in Del Valle, TX
Nearby sold homes
New homes in nearby cities
More New Homes in Del Valle, TX
- Jome
- New homes search
- Texas
- Greater Austin Area
- Travis County
- Del Valle
- Longview 40s
- 6013 Alfred Acres Dr, Del Valle, TX 78617



































































