










































- 4 bd
- 4 ba
- 3,002 sqft
1617 Shandy Ln, Haslet, TX 76052
- Single-Family
- $193.2/sqft
- $895/annual HOA
- North facing
New Homes for Sale Near 1617 Shandy Ln, Haslet, TX 76052
About this Home
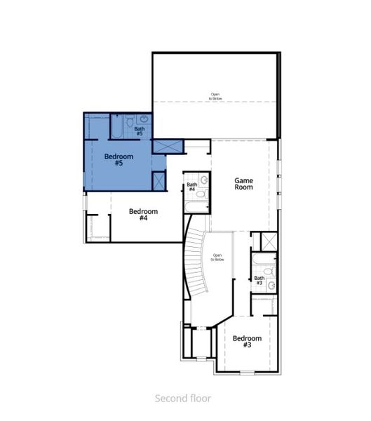
MLS# 21009948 - Built by Highland Homes - October completion! ~ Be the first to own this gorgeous new construction Highland Home located in the brand-new phase of Wellington in Fort Worth! This thoughtfully designed 4-bedroom, 4-bathroom home offers the perfect blend of modern luxury and functional living. Step inside to soaring vaulted ceilings in the spacious family room, creating a bright and open atmosphere ideal for entertaining or relaxing. The gourmet kitchen will feature designer finishes and ample space for hosting. Enjoy versatile living spaces with a downstairs entertainment room—perfect for movie nights or gatherings—and a generous upstairs game room for added fun or flexible use!
Dina Verteramo, MLS 21009948
May also be listed on the Highland Homes website
Information last verified by Jome: Today at 12:57 AM (January 12, 2026)
Home details
- Property status:
- Sold
- Lot size (acres):
- 0.14
- Lot width (feet):
- 50
- Size:
- 3,002 sqft
- Stories:
- 2
- Beds:
- 4
- Baths:
- 4
- Garage spaces:
- 2
- Fence:
- Wood Fence, Metal Fence
- Facing direction:
- North
Construction details
- Builder Name:
- Highland Homes
- Completion Date:
- October, 2025
- Year Built:
- 2025
- Roof:
- Composition Roofing
Home features & finishes
- Appliances:
- Exhaust FanSprinkler System
- Construction Materials:
- Brick
- Cooling:
- Ceiling Fan(s)Central Air
- Flooring:
- Ceramic FlooringWood FlooringCarpet FlooringTile Flooring
- Foundation Details:
- Slab
- Garage/Parking:
- Door OpenerGarageFront Entry Garage/ParkingAttached Garage
- Home amenities:
- Green Construction
- Interior Features:
- Walk-In ClosetPantryLoft
- Kitchen:
- DishwasherDisposalGas CooktopKitchen Island
- Laundry facilities:
- Stackable Washer/DryerUtility/Laundry Room
- Lighting:
- Exterior LightingDecorative/Designer Lighting
- Property amenities:
- SidewalkTrees on propertyLandscapingOutdoor LivingPatioFireplaceSmart Home SystemPorch
- Rooms:
- Primary Bedroom On MainKitchenGame RoomDining RoomFamily RoomPrimary Bedroom Downstairs
- Security system:
- Smoke Detector
Utility information
- Heating:
- Zoned Heating, Water Heater, Central Heating, Gas Heating, Tankless water heater
- Utilities:
- City Water System, Cable TV

Community details
Wellington: 50ft. lots at Wellington
by Highland Homes, Fort Worth, TX
- 6 homes
- 16 plans
- 1,864 - 3,244 sqft
View Wellington: 50ft. lots details
More homes in Wellington: 50ft. lots
- Home at address 11324 Cider St, Haslet, TX 76052

$530,105
Under construction- 4 bd
- 3 ba
- 2,613 sqft
11324 Cider St, Haslet, TX 76052
- Home at address 1628 Gimlet Ln, Haslet, TX 76052

$612,540
Under construction- 4 bd
- 4 ba
- 2,699 sqft
1628 Gimlet Ln, Haslet, TX 76052
- Home at address 11337 Bratton Blvd, Haslet, TX 76052

$638,090
Under construction- 5 bd
- 5 ba
- 3,244 sqft
11337 Bratton Blvd, Haslet, TX 76052
- Home at address 11333 Bratton Blvd, Haslet, TX 76052

$660,968
Under construction- 5 bd
- 4 ba
- 3,088 sqft
11333 Bratton Blvd, Haslet, TX 76052
Floor plans in Wellington: 50ft. lots
About the builder - Highland Homes
Neighborhood
Home address
Schools in Northwest Independent School District
GreatSchools’ Summary Rating calculation is based on 4 of the school’s themed ratings, including test scores, student/academic progress, college readiness, and equity. This information should only be used as a reference. Jome is not affiliated with GreatSchools and does not endorse or guarantee this information. Please reach out to schools directly to verify all information and enrollment eligibility. Data provided by GreatSchools.org © 2025
Places of interest
Getting around
Air quality
Noise level
A Soundscore™ rating is a number between 50 (very loud) and 100 (very quiet) that tells you how loud a location is due to environmental noise.
Financials
Nearby communities in Haslet
Homes in Haslet by Highland Homes
Recently added communities in this area
Other Builders in Haslet, TX
Nearby sold homes
New homes in nearby cities
More New Homes in Haslet, TX
Dina Verteramo, MLS 21009948
IDX information is provided exclusively for personal, non-commercial use, and may not be used for any purpose other than to identify prospective properties consumers may be interested in purchasing. You may not reproduce or redistribute this data, it is for viewing purposes only. This data is deemed reliable, but is not guaranteed accurate by the MLS or NTREIS.
Read moreLast checked Jan 12, 10:00 am
- Jome
- New homes search
- Texas
- Dallas-Fort Worth Area
- Tarrant County
- Haslet
- Wellington: 50ft. lots
- 1617 Shandy Ln, Haslet, TX 76052



































































