Logo
Representative rendering of the exterior for the P002 by D.R. Horton (Image 1).
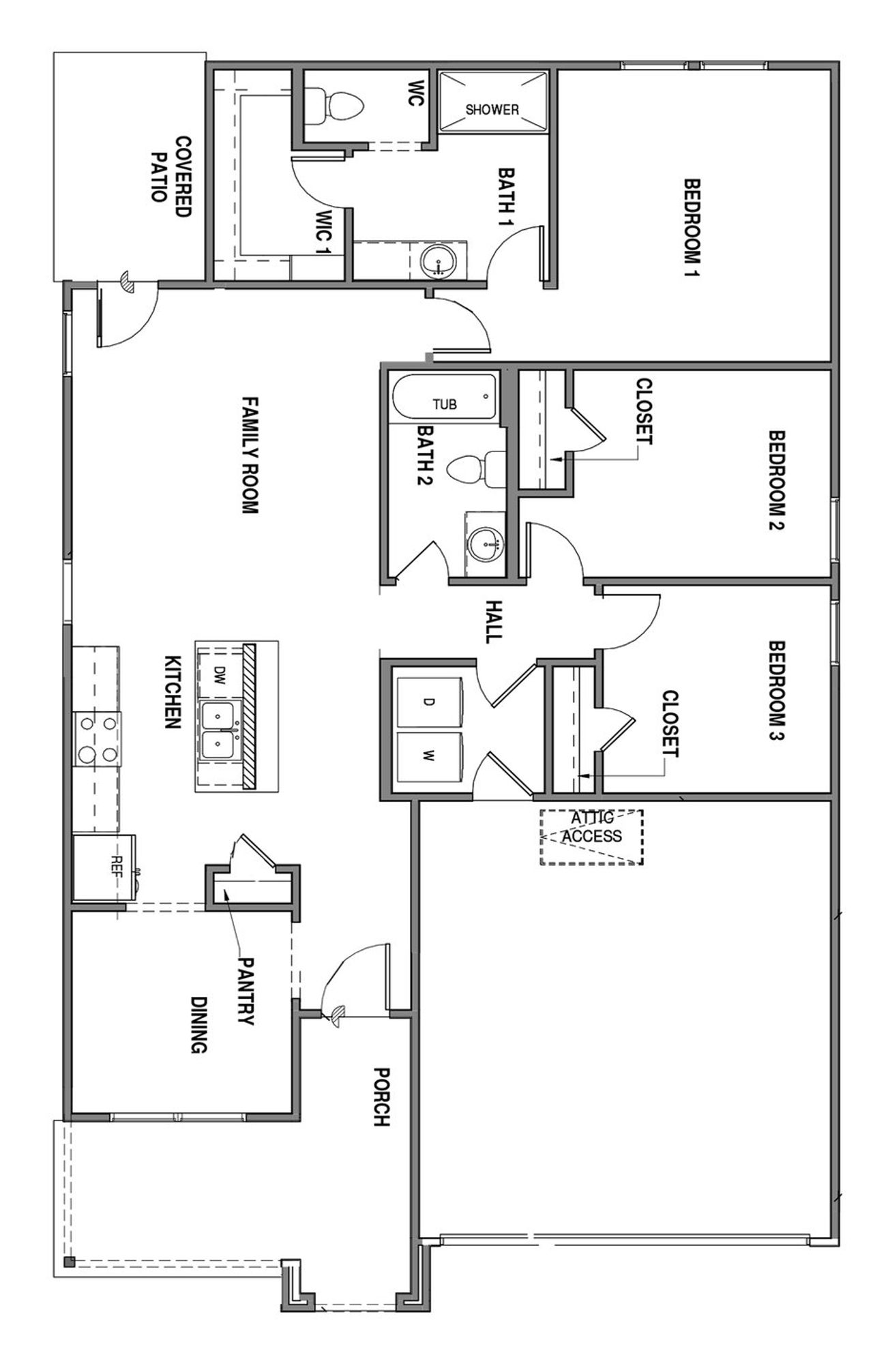
2D floor plan layout for the P002 by D.R. Horton in Lee Heights, Tom Bean, TX (Image 2).
Sold
  • 3 bd
  • 2 ba
  • 1,291 sqft

P002 plan in Lee Heights by D.R. Horton

Tom Bean, TX
Last saved price from $289,990

New Homes for Sale Near Tom Bean, TX 75491

About this Plan

This plan is sold. The information provided reflects details of the plan when it was on the market.

Your home will have a professionally landscaped front yard with a lighted front porch and back patio. Enjoy the gourmet kitchen, large main bedroom suite with a luxurious ensuite that includes a 5-foot shower, chrome faucets and a mirror over full length of vanity. Home features an energy efficient heating and cooling system per community guidelines and weather stripping around exterior doors. Bonus features include attic pull downstairs, one access. Photos shown here may not depict the specified home and features. Elevations, exterior/ interior colors, options, available upgrades, and standard features will vary in each community and may change without notice. May include options, elevations, and upgrades (such as patio covers, front porches, stone options, and lot premiums) that require an additional charge. Call for details.

May also be listed on the D.R. Horton website

Information last verified by Jome: Wednesday at 3:17 AM (June 18, 2025)

Plan details

*Pricing and availability are subject to change.
Name:
P002
Property status:
Sold
Size:
1,291 sqft
Stories:
1
Beds:
3
Baths:
2
Garage spaces:
2

Nearby communities in Tom Bean

Recently added communities in this area

Other Builders in Tom Bean, TX

  • D.R. Horton
  • Highland Homes
  • Meritage Homes
  • Lennar
  • Trophy Signature Homes
  • Bloomfield Homes
  • Perry Homes
  • Pulte Homes

Nearby sold homes

More New Homes in Tom Bean, TX

  1. Jome
  2. New homes search
  3. Texas
  4. Dallas-Fort Worth Area
  5. Grayson County
  6. Tom Bean
  7. Lee Heights
  8. Tom Bean, TX 75491