



Book your tour. Save an average of $18,473. We'll handle the rest.
We collect exclusive builder offers, book your tours, and support you from start to housewarming.
- Confirmed tours
- Get matched & compare top deals
- Expert help, no pressure
- No added fees
Estimated value based on Jome data, T&C apply

Why tour with Jome?
- No pressure toursTour at your own pace with no sales pressure
- Expert guidanceGet insights from our home buying experts
- Exclusive accessSee homes and deals not available elsewhere
Jome is featured in
- Single-Family
- $191.25/sqft
- $420/annual HOA
- 0.11-acre lot
Home description
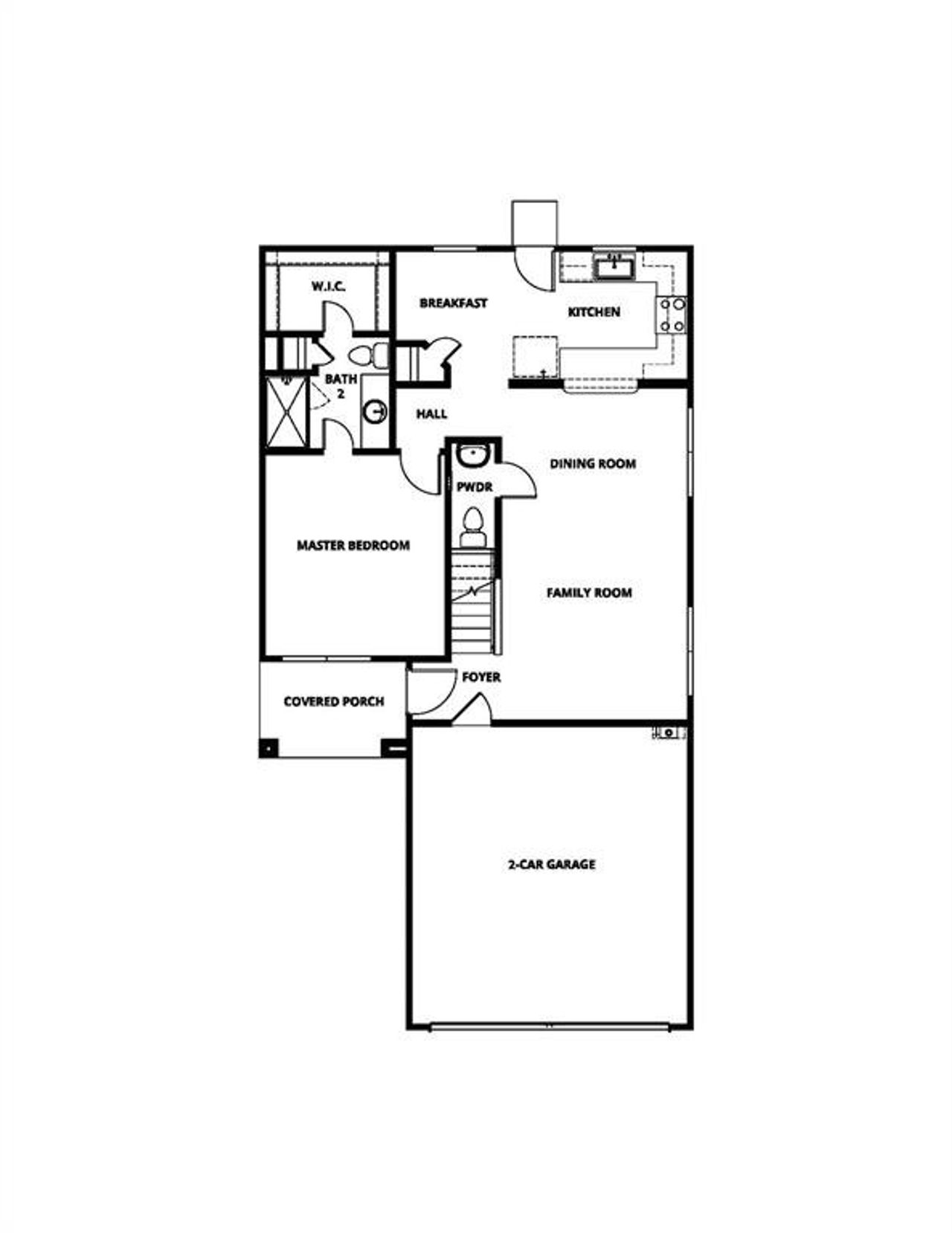
Piper – 2 story, 4-bed, 2.5-bath, loft, 1,772 SQFT! The two-story Piper floor plan showcases four bedrooms, two-and-a-half bathrooms and spacious living areas. Soaring ceilings, walls of windows, stainless-steel appliances, vinyl plank wood-style flooring and designer fixtures set the tone for this upgraded home. With the incredible, open layout, the dining room is open to the living room making it functional for everyday family living. The kitchen features energy-efficient kitchen appliances, granite countertops and wood cabinets topped with crown molding. Your family will enjoy having the large, upstairs game room to create more family memories. Situated downstairs, comfort and relaxation await in the private owner’s suite of the Piper. Designed with your ultimate enjoyment in mind, the upgraded Piper will exceed all expectations.
LGI Homes, MLS 20955447
May also be listed on the LGI Homes website
Information last verified by Jome: Today at 1:24 AM (April 1, 2026)
Book your tour. Save an average of $18,473. We'll handle the rest.
We collect exclusive builder offers, book your tours, and support you from start to housewarming.
- Confirmed tours
- Get matched & compare top deals
- Expert help, no pressure
- No added fees
Estimated value based on Jome data, T&C apply
Home details
- Property status:
- Pending/Under contract
- Neighborhood:
- South Dallas
- Lot size (acres):
- 0.11
- Size:
- 1,772 sqft
- Stories:
- 2
- Beds:
- 4
- Baths:
- 2
- Half baths:
- 1
- Garage spaces:
- 2
Construction details
- Builder Name:
- LGI Homes
- Year Built:
- 2025
- Roof:
- Composition Roofing
Home features & finishes
- Appliances:
- Sprinkler System
- Cooling:
- Ceiling Fan(s)Central Air
- Flooring:
- Vinyl FlooringCarpet Flooring
- Foundation Details:
- Slab
- Garage/Parking:
- Door OpenerGarageAttached Garage
- Interior Features:
- Ceiling-HighWalk-In ClosetPantry
- Kitchen:
- DishwasherMicrowave OvenRefrigeratorDisposalGas CooktopGranite countertopGas OvenKitchen Range
- Laundry facilities:
- DryerWasherUtility/Laundry Room
- Property amenities:
- SidewalkSodBathtub in primaryPorch
- Rooms:
- Primary Bedroom On MainKitchenGame RoomDining RoomFamily RoomBreakfast AreaPrimary Bedroom Downstairs
- Security system:
- Smoke Detector

Get a consultation with our New Homes Expert
- See how your home builds wealth
- Plan your home-buying roadmap
- Discover hidden gems
Utility information
- Heating:
- Central Heating, Gas Heating
- Utilities:
- Electricity Available, Natural Gas Available, City Water System, High Speed Internet Access

Community details
College Park
by LGI Homes, Dallas, TX
- 21 homes
- 8 plans
- 1,175 - 2,505 sqft
View College Park details
More homes in College Park
- Home at address 4256 Lava Forest Dr, Dallas, TX 75241

Home
$347,900
- 4 bd
- 2.5 ba
- 1,772 sqft
4256 Lava Forest Dr, Dallas, TX 75241
- Home at address 6344 Emerald Tree Ln, Dallas, TX 75241

Home
$349,900
- 4 bd
- 2.5 ba
- 1,772 sqft
6344 Emerald Tree Ln, Dallas, TX 75241
- Home at address 4233 Texas Sage Dr, Dallas, TX 75241

Home
$354,000
- 4 bd
- 2.5 ba
- 2,106 sqft
4233 Texas Sage Dr, Dallas, TX 75241
- Home at address 4221 Lava Forest Dr, Dallas, TX 75241

Home
$355,900
- 4 bd
- 2.5 ba
- 2,054 sqft
4221 Lava Forest Dr, Dallas, TX 75241
- Home at address 6322 Emerald Tree Ln, Dallas, TX 75241

Home
$357,900
- 4 bd
- 2.5 ba
- 2,054 sqft
6322 Emerald Tree Ln, Dallas, TX 75241
- Home at address 6308 Emerald Tree Ln, Dallas, TX 75241

Home
$359,900
- 4 bd
- 2.5 ba
- 2,054 sqft
6308 Emerald Tree Ln, Dallas, TX 75241
Floor plans in College Park
About the builder - LGI Homes

- 118communities on Jome
- 1,200homes on Jome
Neighborhood
Home address
- Neighborhood:
- South Dallas
- City:
- Dallas
Schools in Dallas Independent School District
- Grades 06-09Publicdr frederick haynes iii global prep at paul quinn0.6 mi3837 simpson stuart road3/10
- Grades M-MPublicreserved for future use1.7 mi3030 stag rdna
GreatSchools’ Summary Rating calculation is based on 4 of the school’s themed ratings, including test scores, student/academic progress, college readiness, and equity. This information should only be used as a reference. Jome is not affiliated with GreatSchools and does not endorse or guarantee this information. Please reach out to schools directly to verify all information and enrollment eligibility. Data provided by GreatSchools.org © 2025
Places of interest
Getting around
2 nearby routes: 2 bus, 0 rail, 0 otherAir quality

Considering this home?
Our expert will guide your tour, in-person or virtual
Need more information?
Text or call (888) 545-5198
Financials
Estimated monthly payment
Let us help you find your dream home
How many bedrooms are you looking for?
Similar homes nearby
Recently added communities in this area
Nearby communities in Dallas
New homes in nearby cities
More New Homes in Dallas, TX
LGI Homes, MLS 20955447
IDX information is provided exclusively for personal, non-commercial use, and may not be used for any purpose other than to identify prospective properties consumers may be interested in purchasing. You may not reproduce or redistribute this data, it is for viewing purposes only. This data is deemed reliable, but is not guaranteed accurate by the MLS or NTREIS.
Read moreLast checked Mar 31, 10:00 pm
- Jome
- New homes search
- Texas
- Dallas-Fort Worth Area
- Dallas County
- Dallas
- College Park
- 6323 Racer Summit Dr, Dallas, TX 75241






























