





Book your tour. Save an average of $18,473. We'll handle the rest.
We collect exclusive builder offers, book your tours, and support you from start to housewarming.
- Confirmed tours
- Get matched & compare top deals
- Expert help, no pressure
- No added fees
Estimated value based on Jome data, T&C apply
- 3 bd
- 2.5 ba
- 2,009 sqft
15802 Red Maple Ln, Santa Fe, TX 77517
Why tour with Jome?
- No pressure toursTour at your own pace with no sales pressure
- Expert guidanceGet insights from our home buying experts
- Exclusive accessSee homes and deals not available elsewhere
Jome is featured in
- Single-Family
- Quick move-in
- $184.17/sqft
- $350/annual HOA
Home description
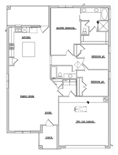
Welcome to the Hemphill Plan by Penbrell Homes – where thoughtful design meets everyday comfort! Nestled in a quiet cul-de-sac, this stunning 3-bedroom, 2.5-bath home offers the perfect blend of function and flexibility. All bedrooms are conveniently located on the main floor, while the upstairs boasts a versatile flex room with a half bath—ideal for a home office, game room, or guest retreat. Enjoy seamless entertaining in the open-concept layout, anchored by a spacious kitchen with a large island perfect for gathering. The family room flows effortlessly to a covered back patio, extending your living space outdoors. Retreat to the primary suite, complete with a double sink vanity, soaking tub, and separate walk-in shower. Additional features include an inside utility room, ample storage, and quality finishes throughout—hallmarks of Penbrell Homes’ attention to detail. Don't miss this opportunity to own a thoughtfully designed home in a desirable location!
RE/MAX American Dream, MLS 56803962
Information last verified by Jome: Today at 2:34 AM (February 27, 2026)
Book your tour. Save an average of $18,473. We'll handle the rest.
We collect exclusive builder offers, book your tours, and support you from start to housewarming.
- Confirmed tours
- Get matched & compare top deals
- Expert help, no pressure
- No added fees
Estimated value based on Jome data, T&C apply
Home details
- Property status:
- Move-in ready
- Lot size (acres):
- 0.21
- Size:
- 2,009 sqft
- Stories:
- 1
- Beds:
- 3
- Baths:
- 2
- Half baths:
- 1
- Garage spaces:
- 2
- Facing direction:
- Southwest
Construction details
- Year Built:
- 2025
- Roof:
- Composition Roofing
Home features & finishes
- Construction Materials:
- CementBrick
- Cooling:
- Ceiling Fan(s)
- Flooring:
- Carpet FlooringTile Flooring
- Foundation Details:
- Slab
- Garage/Parking:
- GarageAttached Garage
- Home amenities:
- Green Construction
- Interior Features:
- Walk-In ClosetPantryBreakfast BarWindow Coverings
- Kitchen:
- Range-Free StandingDishwasherMicrowave OvenOvenDisposalKitchen Island
- Laundry facilities:
- DryerWasher
- Property amenities:
- BarDeckBackyardPots & Pans DrawersCabinetsPatio
- Rooms:
- Primary Bedroom On MainKitchenPrimary Bedroom Downstairs

Get a consultation with our New Homes Expert
- See how your home builds wealth
- Plan your home-buying roadmap
- Discover hidden gems
Utility information
- Heating:
- Gas Heating
Neighborhood
Home address
Schools in Santa Fe Independent School District
GreatSchools’ Summary Rating calculation is based on 4 of the school’s themed ratings, including test scores, student/academic progress, college readiness, and equity. This information should only be used as a reference. Jome is not affiliated with GreatSchools and does not endorse or guarantee this information. Please reach out to schools directly to verify all information and enrollment eligibility. Data provided by GreatSchools.org © 2025
Places of interest
Getting around
Air quality
Noise level
A Soundscore™ rating is a number between 50 (very loud) and 100 (very quiet) that tells you how loud a location is due to environmental noise.
Natural hazards risk
Provided by FEMA

Considering this home?
Our expert will guide your tour, in-person or virtual
Need more information?
Text or call (888) 488-9243
Financials
Estimated monthly payment
Let us help you find your dream home
How many bedrooms are you looking for?
Similar homes nearby
Recently added communities in this area
Nearby communities in Santa Fe
New homes in nearby cities
More New Homes in Santa Fe, TX
RE/MAX American Dream, MLS 56803962
Copyright © 2025, Houston Realtors Information Service, Inc. The information provided is exclusively for consumers’ personal, non-commercial use, and may not be used for any purpose other than to identify prospective properties consumers may be interested in purchasing. Information is deemed reliable but not guaranteed. All information provided should be independently verified.
Read moreLast checked Feb 27, 2:50 pm
- Jome
- New homes search
- Texas
- Greater Houston Area
- Galveston County
- Santa Fe
- 15802 Red Maple Ln, Santa Fe, TX 77517

























