



- 3 bd
- 2 ba
- 1,491 sqft
301 Old Stagecoach Rd, Jarrell, TX 76537
- Single-Family
- $154.25/sqft
- $240/annual HOA
- East facing
New Homes for Sale Near 301 Old Stagecoach Rd, Jarrell, TX 76537
About this Home
New Construction - June 2025
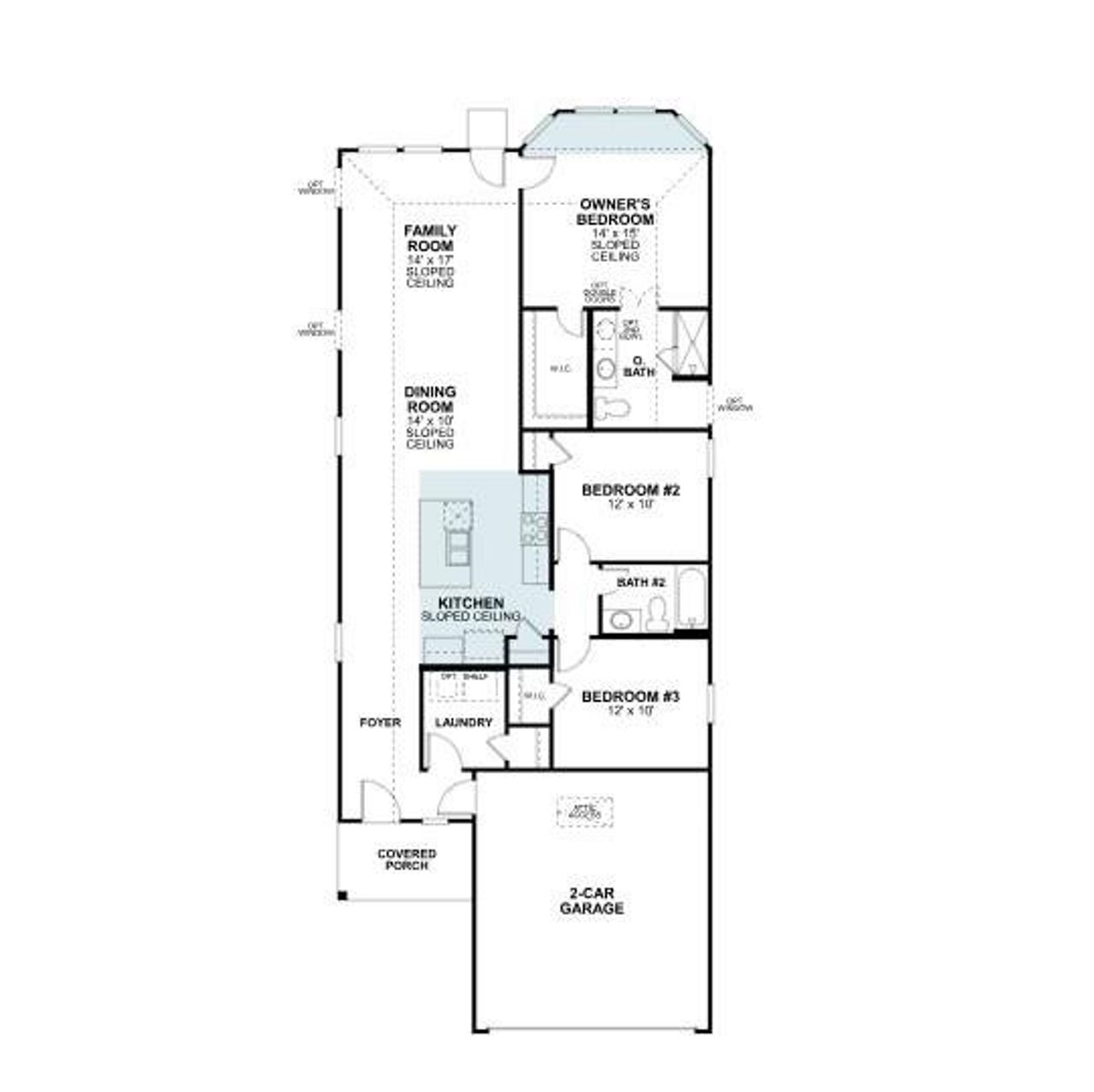
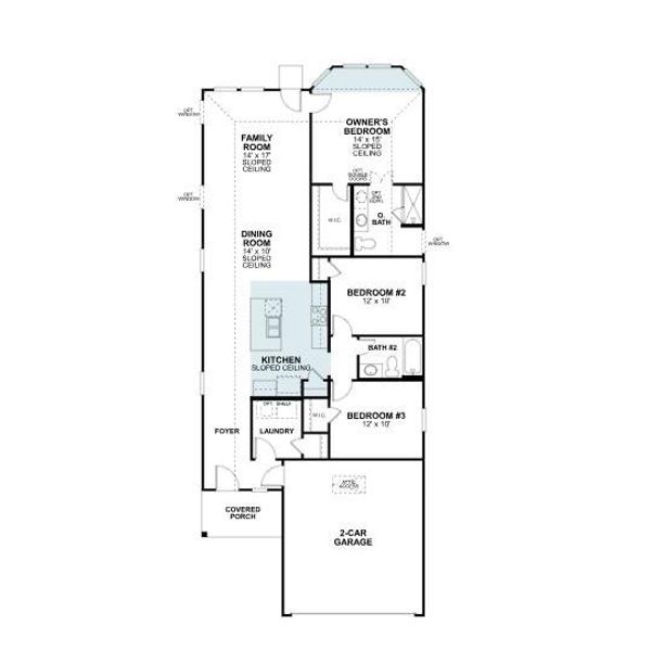
301 Old Stagecoach Road is a 3 bedroom 2 bathroom single story home. Wood look tile is found throughout most of the home, with carpet in only the secondary bedrooms. In the kitchen you'll find dark stained espresso cabinets, quartz counter tops and stainless steal appliances. The Primary bedroom features a bay window which gives great natural light. In the primary suite, the walk in closet and en suite bathroom are separate from each other giving a unique touch to a new construction floor plan. This home also features both sod and irrigation for the front and back of the home.
May also be listed on the M/I Homes website
Information last verified by Jome: Wednesday at 6:51 AM (January 7, 2026)
Home details
- Property status:
- Sold
- Lot size (acres):
- 0.11
- Size:
- 1,491 sqft
- Stories:
- 1
- Beds:
- 3
- Baths:
- 2
- Garage spaces:
- 2
- Fence:
- Wood Fence
- Facing direction:
- East
Construction details
- Builder Name:
- M/I Homes
- Year Built:
- 2025
- Roof:
- Composition Roofing, Shingle Roofing
Home features & finishes
- Construction Materials:
- Brick
- Cooling:
- Central Air
- Flooring:
- Vinyl FlooringCarpet FlooringTile Flooring
- Foundation Details:
- Slab
- Garage/Parking:
- GarageFront Entry Garage/ParkingAttached Garage
- Home amenities:
- Green Construction
- Interior Features:
- Ceiling-HighWalk-In ClosetFoyerPantryDouble Vanity
- Kitchen:
- DishwasherMicrowave OvenDisposalStainless Steel AppliancesElectric CooktopKitchen IslandGas OvenKitchen Range
- Laundry facilities:
- DryerUtility/Laundry Room
- Lighting:
- Lighting
- Property amenities:
- BackyardPatioYardPorch
- Rooms:
- Flex RoomPrimary Bedroom On MainKitchenOffice/StudyDining RoomFamily RoomOpen Concept FloorplanPrimary Bedroom Downstairs
- Security system:
- Smoke DetectorCarbon Monoxide Detector
Utility information
- Heating:
- Electric Heating, Water Heater, Central Heating
- Utilities:
- Electricity Available, Underground Utilities, HVAC, Cable Available, Sewer Available, Water Available
Community amenities
- Common Grounds
- Playground
- Club House
- Sport Court
- Community Pool
- Park Nearby
- Sport Facility
- Pet Amenities
- Cluster Mailbox
- Sidewalks Available
- High Speed Internet Access
About the builder - M/I Homes

- 139communities on Jome
- 1,872homes on Jome
Neighborhood
Home address
- City:
- Jarrell
- County:
- Williamson
- Zip Code:
- 76537
Schools in Jarrell Independent School District
- Grades M-MPublicnew middle #22.0 mi2401 e fm 487na
GreatSchools’ Summary Rating calculation is based on 4 of the school’s themed ratings, including test scores, student/academic progress, college readiness, and equity. This information should only be used as a reference. Jome is not affiliated with GreatSchools and does not endorse or guarantee this information. Please reach out to schools directly to verify all information and enrollment eligibility. Data provided by GreatSchools.org © 2025
Places of interest
Getting around
Air quality
Financials
Nearby communities in Jarrell
Recently added communities in this area
Other Builders in Jarrell, TX
Nearby sold homes
New homes in nearby cities
More New Homes in Jarrell, TX
- Jome
- New homes search
- Texas
- Greater Austin Area
- Williamson County
- Jarrell
- Cool Water
- 301 Old Stagecoach Rd, Jarrell, TX 76537
























































