














Book your tour. Save an average of $18,473. We'll handle the rest.
We collect exclusive builder offers, book your tours, and support you from start to housewarming.
- Confirmed tours
- Get matched & compare top deals
- Expert help, no pressure
- No added fees
Estimated value based on Jome data, T&C apply




















- 3 bd
- 3.5 ba
- 1,367 sqft
3209 Dolphin Dr, Unit 2, Austin, TX 78704
Why tour with Jome?
- No pressure toursTour at your own pace with no sales pressure
- Expert guidanceGet insights from our home buying experts
- Exclusive accessSee homes and deals not available elsewhere
Jome is featured in
- Condo
- Quick move-in
- $530.36/sqft
- North facing
Home description
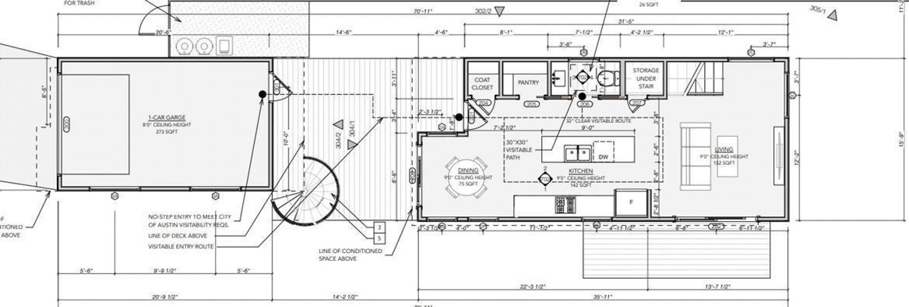
Welcome to the Dolphin Residence! Nestled in the highly desirable 78704 zip code, this brand-new construction by the renowned Brownstone Capital Investments, with architecture by the esteemed Pavonetti Architecture, offers a rare opportunity to own side-by-side units that deliver the feel of a single-family home. Located just minutes from downtown Austin, Zilker Park, and a plethora of dining and entertainment options, these homes provide an unbeatable combination of convenience and modern lifestyle. Situated within the highly sought-after school zones of Zilker Elementary and Austin High, this neighborhood is a hidden gem. Unit 2 is a rare find, featuring two detached homes on one property. The back house includes 2 bedrooms, 2.5 baths, while the garage apartment offers a 1-bedroom, 1-bath setup, perfect for use as a rental, office, or guest suite. The unit boasts a massive private yard with room for a pool, making it ideal for relaxation and entertaining. Designed with meticulous attention to detail, the residences feature a striking exterior of stucco and siding, accented by a sleek black metal roof. Inside, luxury abounds with Anderson sliders flooding the space with natural light, white oak engineered hardwood floors for timeless appeal, and level 5 drywall for a seamless finish. Every element reflects modern sophistication, creating an elevated living experience. Whether you're seeking a modern retreat near Austin's vibrant downtown or an exceptional investment in one of the city’s most desirable neighborhoods, the Dolphin Residence delivers it all. Builder warranty issued at closing, and buyers will conduct a blue tape walk with the builder prior to close. Don’t miss your chance to own a piece of 78704 luxury living!
Compass RE Texas, LLC, MLS 4963227
Information last verified by Jome: Today at 12:22 PM (March 18, 2026)
Book your tour. Save an average of $18,473. We'll handle the rest.
We collect exclusive builder offers, book your tours, and support you from start to housewarming.
- Confirmed tours
- Get matched & compare top deals
- Expert help, no pressure
- No added fees
Estimated value based on Jome data, T&C apply
Home details
- Property status:
- Move-in ready
- Neighborhood:
- South Lamar
- Lot size (acres):
- 0.12
- Size:
- 1,367 sqft
- Stories:
- 2
- Beds:
- 3
- Baths:
- 3
- Half baths:
- 1
- Garage spaces:
- 1
- Fence:
- Wood Fence
- Facing direction:
- North
Construction details
- Year Built:
- 2024
- Roof:
- Metal Roofing
Home features & finishes
- Construction Materials:
- StuccoBrick
- Cooling:
- Ceiling Fan(s)Central Air
- Flooring:
- Wood FlooringTile Flooring
- Foundation Details:
- Slab
- Garage/Parking:
- Door OpenerGarageFront Entry Garage/Parking
- Interior Features:
- Ceiling-High
- Kitchen:
- Stainless Steel AppliancesQuartz countertop
- Property amenities:
- YardPorch

Get a consultation with our New Homes Expert
- See how your home builds wealth
- Plan your home-buying roadmap
- Discover hidden gems
Utility information
- Heating:
- Central Heating
- Utilities:
- Electricity Available, Natural Gas Available, Water Available
Neighborhood
Home address
- Neighborhood:
- South Lamar
- City:
- Austin
Schools in Austin Independent School District
- Grades M-MChartermainspring schools0.9 mi1100 w live oak stna
GreatSchools’ Summary Rating calculation is based on 4 of the school’s themed ratings, including test scores, student/academic progress, college readiness, and equity. This information should only be used as a reference. Jome is not affiliated with GreatSchools and does not endorse or guarantee this information. Please reach out to schools directly to verify all information and enrollment eligibility. Data provided by GreatSchools.org © 2025
Places of interest
Getting around
11 nearby routes: 11 bus, 0 rail, 0 otherAir quality
Noise level
A Soundscore™ rating is a number between 50 (very loud) and 100 (very quiet) that tells you how loud a location is due to environmental noise.
Natural hazards risk
Provided by FEMA

Considering this home?
Our expert will guide your tour, in-person or virtual
Need more information?
Text or call (888) 545-5198
Financials
Estimated monthly payment
Let us help you find your dream home
How many bedrooms are you looking for?
Similar homes nearby
Recently added communities in this area
Nearby communities in Austin
New homes in nearby cities
More New Homes in Austin, TX
Compass RE Texas, LLC, MLS 4963227
Based on information from the Austin Board of REALTORS® (alternatively, from ACTRIS) for the period through 08/13/2024. Neither the Board nor ACTRIS guarantees or is in any way responsible for its accuracy. All data is provided “AS IS” and with all faults. Data maintained by the Board or ACTRIS may not reflect all real estate activity in the market. Information being provided is for consumers’ personal, non-commercial use and may not be used for any purpose other than to identify prospective properties consumers may be interested in purchasing. The Digital Millennium Copyright Act of 1998, 17 U.S.C. § 512 (the “DMCA”) provides recourse for copyright owners who believe that material appearing on the Internet infringes their rights under U.S. copyright law. If you believe in good faith that any content or material made available in connection with our website or services infringes your copyright, you (or your agent) may send us a notice requesting that the content or material be removed, or access to it blocked. Notices must be sent in writing by email to DMCAnotice@MLSGrid.com. The DMCA requires that your notice of alleged copyright infringement include the following information: (1) description of the copyrighted work that is the subject of claimed infringement; (2) description of the alleged infringing content and information sufficient to permit us to locate the content; (3) contact information for you, including your address, telephone number and email address; (4) a statement by you that you have a good faith belief that the content in the manner complained of is not authorized by the copyright owner, or its agent, or by the operation of any law; (5) a statement by you, signed under penalty of perjury, that the information in the notification is accurate and that you have the authority to enforce the copyrights that are claimed to be infringed; and (6) a physical or electronic signature of the copyright owner or a person authorized to act on the copyright owner’s behalf. Failure to include all of the above information may result in the delay of the processing of your complaint.
Read moreLast checked Mar 18, 12:40 pm
- Jome
- New homes search
- Texas
- Greater Austin Area
- Travis County
- Austin
- 3209 Dolphin Dr, Unit 2, Austin, TX 78704


























