














Book your tour. Save an average of $18,473. We'll handle the rest.
We collect exclusive builder offers, book your tours, and support you from start to housewarming.
- Confirmed tours
- Get matched & compare top deals
- Expert help, no pressure
- No added fees
Estimated value based on Jome data, T&C apply








































Why tour with Jome?
- No pressure toursTour at your own pace with no sales pressure
- Expert guidanceGet insights from our home buying experts
- Exclusive accessSee homes and deals not available elsewhere
Jome is featured in
- Single-Family
- Quick move-in
- $125.71/sqft
- $962/annual HOA
Home description
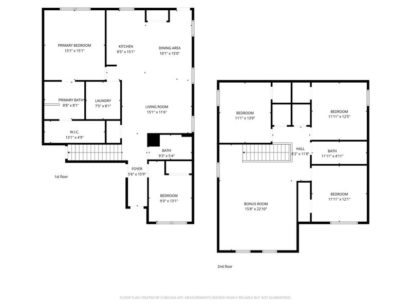
Welcome to this inviting 5-bedroom, 3-bath home in the highly sought-after Mavera community! The open-concept layout connects the kitchen, dining, and family room—perfect for everyday living and hosting friends. The kitchen features an island, 5-burner gas range, stainless steel appliances, and a spacious pantry. The private primary suite is tucked away at the back of the home and includes dual sinks, a soaking tub, separate shower, and a generous walk-in closet. A secondary bedroom and full bath are conveniently located downstairs. Upstairs offers three more bedrooms, a full bath, and a large game room. Additional highlights include a sprinkler system, reverse osmosis, water softener, and washer, dryer, and refrigerator included. Enjoy Mavera’s pools, parks, pickleball courts, ponds, and walking trails, with easy access to shopping, dining, H-E-B, I-45, and Grand Parkway. Come see it—you’ll be glad you did!
Better Homes and Gardens Real Estate Gary Greene - The Woodlands, MLS 69797972
May also be listed on the Centex website
Information last verified by Jome: Today at 2:36 AM (February 15, 2026)
Home highlights
Book your tour. Save an average of $18,473. We'll handle the rest.
We collect exclusive builder offers, book your tours, and support you from start to housewarming.
- Confirmed tours
- Get matched & compare top deals
- Expert help, no pressure
- No added fees
Estimated value based on Jome data, T&C apply
Home details
- Property status:
- Move-in ready
- Lot size (acres):
- 0.13
- Size:
- 2,466 sqft
- Stories:
- 2
- Beds:
- 5
- Baths:
- 3
- Garage spaces:
- 2
- Facing direction:
- West
Construction details
- Builder Name:
- Centex
- Completion Date:
- February, 2025
- Year Built:
- 2024
- Roof:
- Composition Roofing
Home features & finishes
- Appliances:
- Water SoftenerSprinkler System
- Construction Materials:
- BrickWood Siding
- Cooling:
- Ceiling Fan(s)
- Flooring:
- Vinyl FlooringCarpet Flooring
- Foundation Details:
- Slab
- Garage/Parking:
- GarageAttached Garage
- Home amenities:
- Green Construction
- Interior Features:
- Wired For SecurityWalk-In ClosetPantryWindow Coverings
- Kitchen:
- DishwasherMicrowave OvenOvenRefrigeratorDisposalGas CooktopKitchen IslandGas OvenKitchen Range
- Laundry facilities:
- DryerWasherUtility/Laundry Room
- Lighting:
- Lighting
- Property amenities:
- DeckBackyardCabinetsPatioPorch
- Rooms:
- KitchenDining RoomFamily RoomOpen Concept FloorplanPrimary Bedroom Downstairs

Get a consultation with our New Homes Expert
- See how your home builds wealth
- Plan your home-buying roadmap
- Discover hidden gems
Utility information
- Heating:
- Water Heater, Gas Heating
- Utilities:
- HVAC

Community details
Mavera at Mavera
by Centex, Conroe, TX
- 19 homes
- 20 plans
- 1,204 - 2,601 sqft
View Mavera details
Community amenities
- Energy Efficient
More homes in Mavera
- Home at address 16157 Sepia Manor St, Conroe, TX 77302

Adams
$246,910
- 3 bd
- 2 ba
- 1,206 sqft
16157 Sepia Manor St, Conroe, TX 77302
- Home at address 16160 Sepia Manor St, Conroe, TX 77302

Adams
$248,100
- 3 bd
- 2 ba
- 1,204 sqft
16160 Sepia Manor St, Conroe, TX 77302
- Home at address 16136 Sepia Manor St, Conroe, TX 77375

Home
$262,339
- 3 bd
- 2 ba
- 1,512 sqft
16136 Sepia Manor St, Conroe, TX 77375
- Home at address 16412 Big Hickory Dr, Conroe, TX 77302

Home
$275,611
- 4 bd
- 2.5 ba
- 1,824 sqft
16412 Big Hickory Dr, Conroe, TX 77302
- Home at address 14989 Rustic Moon Rd, Conroe, TX 77302

Independence
$278,710
- 3 bd
- 2 ba
- 1,506 sqft
14989 Rustic Moon Rd, Conroe, TX 77302
- Home at address 16148 Sepia Manor St, Conroe, TX 77302

Springfield
$286,290
- 4 bd
- 2.5 ba
- 1,850 sqft
16148 Sepia Manor St, Conroe, TX 77302
Floor plans in Mavera
About the builder - Centex
Neighborhood
Home address
- City:
- Conroe
- County:
- Montgomery
- Zip Code:
- 77302
Schools in Conroe Independent School District
GreatSchools’ Summary Rating calculation is based on 4 of the school’s themed ratings, including test scores, student/academic progress, college readiness, and equity. This information should only be used as a reference. Jome is not affiliated with GreatSchools and does not endorse or guarantee this information. Please reach out to schools directly to verify all information and enrollment eligibility. Data provided by GreatSchools.org © 2025
Places of interest
Getting around
Air quality
Noise level
A Soundscore™ rating is a number between 50 (very loud) and 100 (very quiet) that tells you how loud a location is due to environmental noise.

Considering this home?
Our expert will guide your tour, in-person or virtual
Need more information?
Text or call (888) 486-2818
Financials
Estimated monthly payment
Let us help you find your dream home
How many bedrooms are you looking for?
Similar homes nearby
Recently added communities in this area
Nearby communities in Conroe
New homes in nearby cities
More New Homes in Conroe, TX
Better Homes and Gardens Real Estate Gary Greene - The Woodlands, MLS 69797972
Copyright © 2025, Houston Realtors Information Service, Inc. The information provided is exclusively for consumers’ personal, non-commercial use, and may not be used for any purpose other than to identify prospective properties consumers may be interested in purchasing. Information is deemed reliable but not guaranteed. All information provided should be independently verified.
Read moreLast checked Feb 15, 8:50 am
- Jome
- New homes search
- Texas
- Greater Houston Area
- Montgomery County
- Conroe
- Mavera
- 15072 Rustic Moon Rd, Conroe, TX 77302


































