








Book your tour. Save an average of $18,473. We'll handle the rest.
We collect exclusive builder offers, book your tours, and support you from start to housewarming.
- Confirmed tours
- Get matched & compare top deals
- Expert help, no pressure
- No added fees
Estimated value based on Jome data, T&C apply




















- 4 bd
- 2 ba
- 1,475 sqft
131 Kelly Ct, Azle, TX 76020
Why tour with Jome?
- No pressure toursTour at your own pace with no sales pressure
- Expert guidanceGet insights from our home buying experts
- Exclusive accessSee homes and deals not available elsewhere
Jome is featured in
- Mobile Home
- Quick move-in
- $161.36/sqft
- 0.48-acre lot
Home description
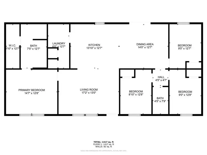
Be the first to own this beautifully designed 2025-built mobile home offering 1,475 square feet of thoughtfully designed living space in Azle. Nestled on a treed lot, this home combines modern finishes with peaceful surroundings.
Step inside to an expansive open concept layout featuring a spacious living area filled with natural light and recessed lighting throughout. The kitchen is the heart of the home, showcasing a large center island with seating, sleek countertops, abundant cabinetry, and modern appliances. Perfect for entertaining or everyday living.
The split bedroom floor plan provides privacy and functionality. The primary suite offers generous space and a well appointed ensuite bath, while secondary bedrooms are ideal for family, guests, or a home office.
Exterior highlights include a welcoming front deck and mature trees providing shade and privacy. Enjoy quiet country living while remaining conveniently located near Azle's amenities, shopping, and dining.
Property Highlights:
• 2025 new construction
• Open concept living, kitchen & dining
• Large kitchen island with storage
• Recessed lighting throughout
• Split bedroom layout
• Treed lot with front deck
• Move in ready
Modern design, brand new construction, and a peaceful setting. This one checks all the boxes.
AmbitionX Real Estate, MLS 21191569
Information last verified by Jome: Today at 1:49 AM (April 15, 2026)
Book your tour. Save an average of $18,473. We'll handle the rest.
We collect exclusive builder offers, book your tours, and support you from start to housewarming.
- Confirmed tours
- Get matched & compare top deals
- Expert help, no pressure
- No added fees
Estimated value based on Jome data, T&C apply
Home details
- Property status:
- Move-in ready
- Lot size (acres):
- 0.48
- Size:
- 1,475 sqft
- Stories:
- 1
- Beds:
- 4
- Baths:
- 2
- Fence:
- Wire-Barb Fence, No Fence, Chain Link Fence
Construction details
- Year Built:
- 2025
- Roof:
- Composition Roofing
Home features & finishes
- Cooling:
- Central Air
- Flooring:
- Laminate FlooringVinyl FlooringCarpet Flooring
- Foundation Details:
- Pillar/Post/Pier
- Garage/Parking:
- Car CarportParking
- Interior Features:
- Double Vanity
- Kitchen:
- DishwasherOvenRefrigeratorDisposalElectric CooktopGas CooktopKitchen IslandGas OvenKitchen RangeElectric Oven
- Laundry facilities:
- DryerWasherStackable Washer/DryerUtility/Laundry Room
- Property amenities:
- Trees on propertyDeckPatioPorch
- Rooms:
- Primary Bedroom On MainKitchenOpen Concept FloorplanPrimary Bedroom Downstairs

Get a consultation with our New Homes Expert
- See how your home builds wealth
- Plan your home-buying roadmap
- Discover hidden gems
Utility information
- Heating:
- Electric Heating, Water Heater, Central Heating
- Utilities:
- Electricity Available, City Water System, Cable Available, Individual Water Meter, Aerobic Septic System, Cable TV
Neighborhood
Home address
Schools in Springtown Independent School District
- Grades 09-12Publicporcupine academy5.4 mi301 e fifth stna
GreatSchools’ Summary Rating calculation is based on 4 of the school’s themed ratings, including test scores, student/academic progress, college readiness, and equity. This information should only be used as a reference. Jome is not affiliated with GreatSchools and does not endorse or guarantee this information. Please reach out to schools directly to verify all information and enrollment eligibility. Data provided by GreatSchools.org © 2025
Places of interest
Getting around
Air quality
Natural hazards risk
Provided by FEMA

Considering this home?
Our expert will guide your tour, in-person or virtual
Need more information?
Text or call (888) 545-5198
Financials
Estimated monthly payment
Let us help you find your dream home
How many bedrooms are you looking for?
Similar homes nearby
Recently added communities in this area
Nearby communities in Azle
New homes in nearby cities
More New Homes in Azle, TX
AmbitionX Real Estate, MLS 21191569
IDX information is provided exclusively for personal, non-commercial use, and may not be used for any purpose other than to identify prospective properties consumers may be interested in purchasing. You may not reproduce or redistribute this data, it is for viewing purposes only. This data is deemed reliable, but is not guaranteed accurate by the MLS or NTREIS.
Read moreLast checked Apr 15, 4:00 am
- Jome
- New homes search
- Texas
- Dallas-Fort Worth Area
- Parker County
- Azle
- 131 Kelly Ct, Azle, TX 76020


























