














Book your tour. Save an average of $18,473. We'll handle the rest.
We collect exclusive builder offers, book your tours, and support you from start to housewarming.
- Confirmed tours
- Get matched & compare top deals
- Expert help, no pressure
- No added fees
Estimated value based on Jome data, T&C apply

Why tour with Jome?
- No pressure toursTour at your own pace with no sales pressure
- Expert guidanceGet insights from our home buying experts
- Exclusive accessSee homes and deals not available elsewhere
Jome is featured in
- Single-Family
- Under construction
- $262.14/sqft
- No HOA fee
Home description
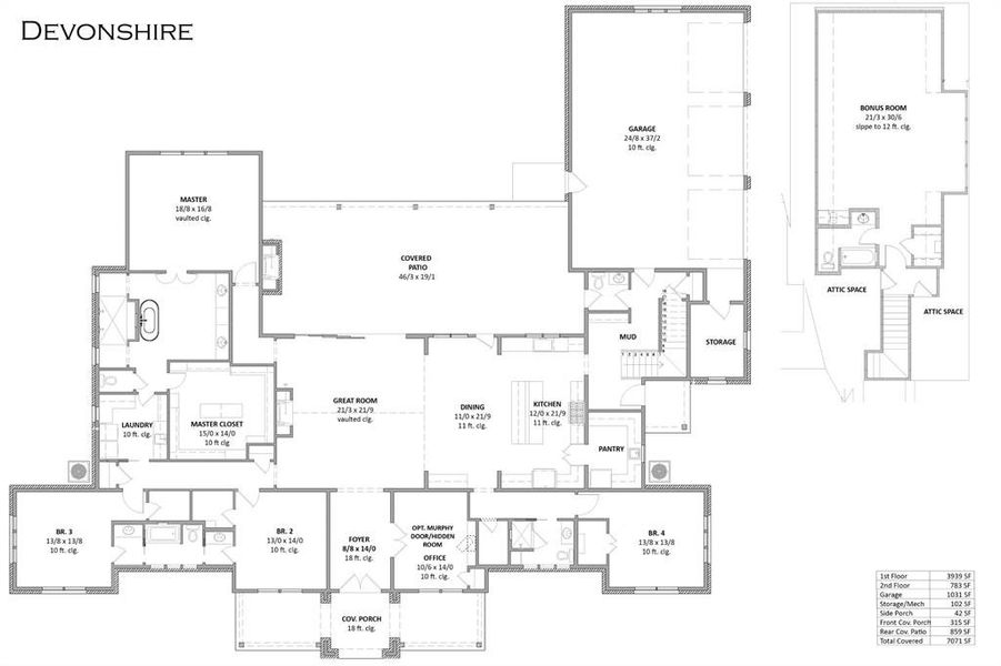
Currently in Construction**** Come out and see the 'Devonshire' Cope Homes floor plan, which features: Gourmet kitchen, quartz countertops, built-in double ovens, gas cooktop. sliding glass doors lead to covered patio w fireplace. First floor primary bedroom has a large walk-in closet that connects directly to the huge laundry room. Primary bath has free-standing tub & dual shower heads in the walk-in shower. This home has too many upgrades to list here! Come tour this model!
Luxury 1+ acre lots at affordable prices in the booming DFW area. Lexington Heights Community boasts concrete streets, fiber-optic high-speed internet, the ability to have a guest home, a shop, or an RV garage – all with NO PESKY HOA! Bring your own builder and pick any of the still available amazing 1+ acre Lots! Lexington Heights is a new community developed by Cope Equities and Cope Homes, where you can build your home alongside the beautiful Craftsman and Farmhouse style homes already existing in the community. Find us adjacent to the highly desired Community High School and just a few short blocks from other Community ISD schools. Come and see!
Cope Realty, LLC, MLS 21087944
May also be listed on the Cope Homes website
Information last verified by Jome: Today at 1:06 AM (February 25, 2026)
Book your tour. Save an average of $18,473. We'll handle the rest.
We collect exclusive builder offers, book your tours, and support you from start to housewarming.
- Confirmed tours
- Get matched & compare top deals
- Expert help, no pressure
- No added fees
Estimated value based on Jome data, T&C apply
Home details
- Property status:
- Under construction
- Lot size (acres):
- 1.31
- Size:
- 4,722 sqft
- Stories:
- 1
- Beds:
- 4
- Baths:
- 4
- Half baths:
- 1
- Garage spaces:
- 3
Construction details
- Builder Name:
- Cope Homes
- Year Built:
- 2025
- Roof:
- Composition Roofing
Home features & finishes
- Appliances:
- Sprinkler System
- Construction Materials:
- CementBrick
- Cooling:
- Ceiling Fan(s)Central Air
- Flooring:
- Carpet FlooringTile FlooringHardwood Flooring
- Foundation Details:
- Slab
- Garage/Parking:
- Door OpenerGarageAttached Garage
- Interior Features:
- Ceiling-VaultedWalk-In ClosetPantryWet Bar
- Kitchen:
- DishwasherMicrowave OvenOvenRefrigeratorDisposalGas CooktopKitchen IslandGas OvenDouble Oven
- Laundry facilities:
- DryerWasher
- Lighting:
- Decorative/Designer Lighting
- Property amenities:
- Outdoor FireplacePatioFireplacePorch
- Rooms:
- Primary Bedroom On MainMedia RoomLiving RoomOpen Concept FloorplanPrimary Bedroom Downstairs

Get a consultation with our New Homes Expert
- See how your home builds wealth
- Plan your home-buying roadmap
- Discover hidden gems
Utility information
- Heating:
- Propane Heating, Water Heater, Tankless water heater
- Utilities:
- Propane, Aerobic Septic System, Curbs

Community details
Lexington Heights
by Cope Homes, Nevada, TX
- 11 homes
- 3 plans
- 2,541 - 5,251 sqft
View Lexington Heights details
More homes in Lexington Heights
- Home at address 702 Cambridge Ct, Nevada, TX 75173

Home
$961,900
- 4 bd
- 3.5 ba
- 3,853 sqft
702 Cambridge Ct, Nevada, TX 75173
- Home at address 801 Liberty Ln, Nevada, TX 75173

Home
$1,089,900
- 4 bd
- 4.5 ba
- 4,293 sqft
801 Liberty Ln, Nevada, TX 75173
- Home at address 703 Colonial Ct, Nevada, TX 75173

Home
$1,114,900
- 4 bd
- 4.5 ba
- 4,293 sqft
703 Colonial Ct, Nevada, TX 75173
- Home at address 705 Colonial Ct, Nevada, TX 75173

Denali
$1,132,900
- 5 bd
- 4.5 ba
- 5,087 sqft
705 Colonial Ct, Nevada, TX 75173
- Home at address 804 Liberty Ln, Nevada, TX 75173

Home
$1,135,900
- 4 bd
- 4.5 ba
- 4,667 sqft
804 Liberty Ln, Nevada, TX 75173
- Home at address 710 Freedom Ln, Nevada, TX 75173

Home
$1,199,000
- 5 bd
- 4.5 ba
- 5,188 sqft
710 Freedom Ln, Nevada, TX 75173
Floor plans in Lexington Heights
About the builder - Cope Homes
Neighborhood
Home address
Schools in Community Independent School District
- Grades M-MPublicplano special programs center0.7 mi615 fm 1138 nna
- Grades M-MPublicmildred b ellis elementary2.9 mi900 n main stna
GreatSchools’ Summary Rating calculation is based on 4 of the school’s themed ratings, including test scores, student/academic progress, college readiness, and equity. This information should only be used as a reference. Jome is not affiliated with GreatSchools and does not endorse or guarantee this information. Please reach out to schools directly to verify all information and enrollment eligibility. Data provided by GreatSchools.org © 2025
Places of interest
Getting around
Air quality
Noise level
A Soundscore™ rating is a number between 50 (very loud) and 100 (very quiet) that tells you how loud a location is due to environmental noise.

Considering this home?
Our expert will guide your tour, in-person or virtual
Need more information?
Text or call (888) 488-9243
Financials
Estimated monthly payment
Let us help you find your dream home
How many bedrooms are you looking for?
Similar homes nearby
Recently added communities in this area
Nearby communities in Nevada
New homes in nearby cities
More New Homes in Nevada, TX
Cope Realty, LLC, MLS 21087944
IDX information is provided exclusively for personal, non-commercial use, and may not be used for any purpose other than to identify prospective properties consumers may be interested in purchasing. You may not reproduce or redistribute this data, it is for viewing purposes only. This data is deemed reliable, but is not guaranteed accurate by the MLS or NTREIS.
Read moreLast checked Feb 25, 4:00 pm
- Jome
- New homes search
- Texas
- Dallas-Fort Worth Area
- Collin County
- Nevada
- Lexington Heights
- 704 Cambridge Ct, Nevada, TX 75173





























