














Book your tour. Save an average of $18,473. We'll handle the rest.
- Confirmed tours
- Get matched & compare top deals
- Expert help, no pressure
- No added fees
Estimated value based on Jome data, T&C apply





















- 3 bd
- 2 ba
- 1,939 sqft
Preston plan in Jubilee: 40ft. lots by Highland Homes
Visit the community to experience this floor plan
Why tour with Jome?
- No pressure toursTour at your own pace with no sales pressure
- Expert guidanceGet insights from our home buying experts
- Exclusive accessSee homes and deals not available elsewhere
Jome is featured in
Plan description
May also be listed on the Highland Homes website
Information last verified by Jome: Wednesday at 1:09 AM (January 7, 2026)
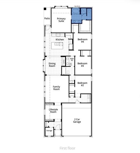
Plan details
- Name:
- Preston
- Property status:
- Floor plan
- Lot width (feet):
- 40
- Size:
- 1,939 sqft
- Stories:
- 1
- Beds from:
- 3
- Beds to:
- 4
- Baths from:
- 2
- Baths to:
- 3
- Half baths to:
- 1
- Garage spaces:
- 2
Plan features & finishes
- Garage/Parking:
- GarageAttached Garage
- Interior Features:
- Walk-In ClosetPantryStorage
- Kitchen:
- Kitchen Island
- Laundry facilities:
- Utility/Laundry Room
- Property amenities:
- BasementPatio
- Rooms:
- Primary Bedroom On MainKitchenDining RoomFamily RoomPrimary Bedroom Downstairs
- Upgrade Options:
- Breakfast Area

Get a consultation with our New Homes Expert
- See how your home builds wealth
- Plan your home-buying roadmap
- Discover hidden gems
See the full plan layout
Download the floor plan PDF with room dimensions and home design details.

Instant download, no cost

Community details
Jubilee: 40ft. lots at Jubilee
by Highland Homes, Hockley, TX
- 6 homes
- 13 plans
- 1,550 - 2,644 sqft
View Jubilee: 40ft. lots details
Want to know more about what's around here?
The Preston floor plan is part of Jubilee: 40ft. lots, a new home community by Highland Homes, located in Hockley, TX. Visit the Jubilee: 40ft. lots community page for full neighborhood insights, including nearby schools, shopping, walk & bike-scores, commuting, air quality & natural hazards.

Available homes in Jubilee: 40ft. lots
- Home at address 26554 Jolly Prairie Dr, Hockley, TX 77447

Melrose
$303,990
- 3 bd
- 2 ba
- 1,550 sqft
26554 Jolly Prairie Dr, Hockley, TX 77447
- Home at address 26511 Glad Fields Dr, Hockley, TX 77447

Carlton Plan
$310,000
- 3 bd
- 2 ba
- 1,598 sqft
26511 Glad Fields Dr, Hockley, TX 77447
- Home at address 26510 Glad Fields Dr, Hockley, TX 77447

Bristol Plan
$335,000
- 4 bd
- 3 ba
- 1,904 sqft
26510 Glad Fields Dr, Hockley, TX 77447
- Home at address 17423 Merriment Field Wy, Hockley, TX 77447

Bristol Plan
$352,005
- 4 bd
- 3 ba
- 1,904 sqft
17423 Merriment Field Wy, Hockley, TX 77447
- Home at address 26539 Jolly Prairie Dr, Hockley, TX 77447

Home
$370,615
- 4 bd
- 2.5 ba
- 2,523 sqft
26539 Jolly Prairie Dr, Hockley, TX 77447
- Home at address 26515 Glad Fields Dr, Hockley, TX 77447

Ellington Plan
$399,000
- 5 bd
- 3 ba
- 2,644 sqft
26515 Glad Fields Dr, Hockley, TX 77447
More floor plans in Jubilee: 40ft. lots

Considering this plan?
Our expert will guide your tour, in-person or virtual
Need more information?
Text or call (888) 486-2818
Financials
Estimated monthly payment
Let us help you find your dream home
How many bedrooms are you looking for?
Similar homes nearby
Recently added communities in this area
Nearby communities in Hockley
New homes in nearby cities
More New Homes in Hockley, TX
- Jome
- New homes search
- Texas
- Greater Houston Area
- Harris County
- Hockley
- Jubilee: 40ft. lots
- 26222 Happy Home St, Hockley, TX 77447


































