







Book your tour. Save an average of $18,473. We'll handle the rest.
We collect exclusive builder offers, book your tours, and support you from start to housewarming.
- Confirmed tours
- Get matched & compare top deals
- Expert help, no pressure
- No added fees
Estimated value based on Jome data, T&C apply





























- 3 bd
- 2 ba
- 1,582 sqft
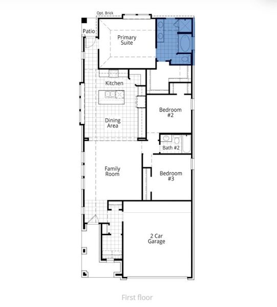
Carlton plan in Jubilee by Highland Homes
Visit the community to experience this floor plan
Why tour with Jome?
- No pressure toursTour at your own pace with no sales pressure
- Expert guidanceGet insights from our home buying experts
- Exclusive accessSee homes and deals not available elsewhere
Jome is featured in
Plan description
May also be listed on the Highland Homes website
Information last verified by Jome: Today at 12:52 AM (May 16, 2026)
Plan details
- Name:
- Carlton
- Property type:
- Floor plan
- Community:
- Jubilee
- Builder:
- Highland Homes
- Collection:
- Jubilee: 40ft. lots
- Lot width (feet):
- 40
- Size:
- 1,582 sqft
- Stories:
- 1
- Beds:
- 3
- Baths:
- 2
- Garage spaces:
- 2
Plan features & finishes
- Garage/Parking:
- GarageAttached Garage
- Interior Features:
- Walk-In ClosetPantry
- Kitchen:
- Kitchen Island
- Laundry facilities:
- Utility/Laundry Room
- Property amenities:
- BasementPatio
- Rooms:
- Primary Bedroom On MainKitchenDining RoomFamily RoomPrimary Bedroom Downstairs
- Upgrade Options:
- Breakfast Area

Get a consultation with our New Homes Expert
- See how your home builds wealth
- Plan your home-buying roadmap
- Discover hidden gems
See the full plan layout
Download the floor plan PDF with room dimensions and home design details.

Instant download, no cost

Community details
Jubilee at Jubilee
by Highland Homes, Hockley, TX
- 8 homes
- 28 plans
- 1,550 - 4,425 sqft
View Jubilee details
Want to know more about what's around here?
The Carlton floor plan is part of Jubilee, a new home community by Highland Homes, located in Hockley, TX. Visit the Jubilee community page for full neighborhood insights, including nearby schools, shopping, walk & bike-scores, commuting, air quality & natural hazards.

Homes built from this plan
Available homes in Jubilee
- Home at address 26554 Jolly Prairie Dr, Hockley, TX 77447

Melrose
Jubilee: 40ft. lots
$279,000
- 3 bd
- 2 ba
- 1,550 sqft
26554 Jolly Prairie Dr, Hockley, TX 77447
- Home at address 26535 Jolly Prairie Dr, Hockley, TX 77447

Windermere
Jubilee: 40ft. lots
$359,000
- 4 bd
- 3 ba
- 2,262 sqft
26535 Jolly Prairie Dr, Hockley, TX 77447
- Home at address 26522 Glad Fields Dr, Hockley, TX 77447

Hamilton
Jubilee: 40ft. lots
$365,000
- 4 bd
- 2.5 ba
- 2,523 sqft
26522 Glad Fields Dr, Hockley, TX 77447
- Home at address 26515 Jolly Prairie Dr, Hockley, TX 77447

Hamilton
Jubilee: 40ft. lots
$377,890
- 4 bd
- 2.5 ba
- 2,523 sqft
26515 Jolly Prairie Dr, Hockley, TX 77447
- Home at address 26559 Jolly Prairie Dr, Hockley, TX 77447

Ellington
Jubilee: 40ft. lots
$409,330
- 5 bd
- 3 ba
- 2,644 sqft
26559 Jolly Prairie Dr, Hockley, TX 77447
- Home at address 16606 Harmony Fields St, Hockley, TX 77447

216
Jubilee: 70ft. lots
$639,790
- 4 bd
- 3.5 ba
- 3,050 sqft
16606 Harmony Fields St, Hockley, TX 77447
More floor plans in Jubilee

Considering this plan?
Our expert will guide your tour, in-person or virtual
Need more information?
Text or call (888) 545-5198
Financials
Estimated monthly payment
Let us help you find your dream home
How many bedrooms are you looking for?
Similar homes nearby
Recently added communities in this area
Nearby communities in Hockley
New homes in nearby cities
More New Homes in Hockley, TX
- Jome
- New homes search
- Texas
- Greater Houston Area
- Harris County
- Hockley
- Jubilee
- Jubilee: 40ft. lots
- 26222 Happy Home St, Hockley, TX 77447


































