














Book your tour. Save an average of $18,473. We'll handle the rest.
- Confirmed tours
- Get matched & compare top deals
- Expert help, no pressure
- No added fees
Estimated value based on Jome data, T&C apply






Why tour with Jome?
- No pressure toursTour at your own pace with no sales pressure
- Expert guidanceGet insights from our home buying experts
- Exclusive accessSee homes and deals not available elsewhere
Jome is featured in
- Single-Family
- Quick move-in
- $189.98/sqft
- East facing
Home description
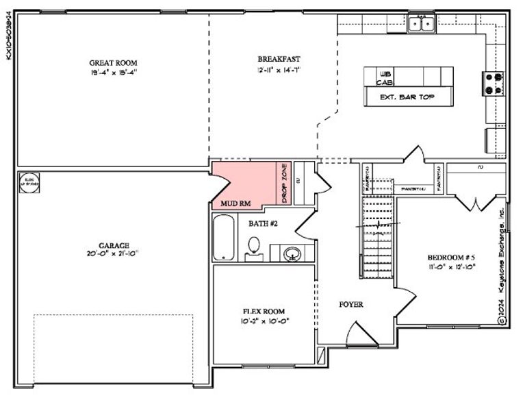
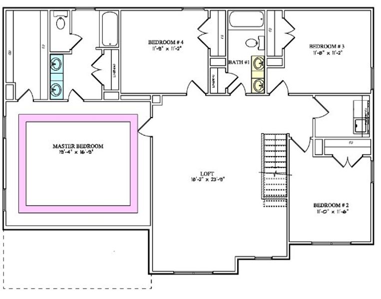
The Colebrook house plan by West Homes is a spacious and versatile design, offering over 2,900 square feet of living space. This large home features five bedrooms and three bathrooms, providing ample room for families of all sizes. With multiple elevation options, the Colebrook allows for a personalized exterior style that suits your preferences. The heart of the home is the open-concept kitchen, which includes a large island perfect for both casual dining and meal preparation. Adjacent to the kitchen, a flex room on the first floor offers endless possibilities, whether you need a home office, playroom, or additional living space. Conveniently, one of the five bedrooms and a full bathroom are also located on the first floor, making it ideal for guests or multi-generational living. Upstairs, a spacious loft provides a perfect setting for a media room, play area, or additional family gathering space. The primary suite is a true retreat, boasting a generous walk-in closet and an expansive bathroom with dual vanities, a soaking tub, and a separate shower. The Colebrook plan is designed to accommodate modern family life with style and flexibility. Call today or visit www.westhomes.com.
May also be listed on the West Homes website
Information last verified by Jome: Friday at 4:48 AM (November 28, 2025)
Home highlights
Book your tour. Save an average of $18,473. We'll handle the rest.
We collect exclusive builder offers, book your tours, and support you from start to housewarming.
- Confirmed tours
- Get matched & compare top deals
- Expert help, no pressure
- No added fees
Estimated value based on Jome data, T&C apply
Home details
- Property status:
- Move-in ready
- Size:
- 2,974 sqft
- Stories:
- 2
- Beds:
- 5
- Baths:
- 3
- Garage spaces:
- 2
- Facing direction:
- East
Construction details
- Builder Name:
- West Homes
Home features & finishes
- Garage/Parking:
- GarageAttached Garage
- Interior Features:
- Walk-In ClosetFoyerPantryLoft
- Laundry facilities:
- Utility/Laundry Room
- Property amenities:
- PatioPorch
- Rooms:
- Bonus RoomFlex RoomKitchenOffice/StudyMudroomFamily RoomLiving RoomBreakfast AreaOpen Concept Floorplan

Community details
Hardins Landing
by West Homes, Spring Hill, TN
- 3 homes
- 2,563 - 3,114 sqft
View Hardins Landing details
More homes in Hardins Landing
About the builder - West Homes
Neighborhood
Home address
- City:
- Spring Hill
- County:
- Maury
- Zip Code:
- 37174
Schools in Maury County School District
- Grades PK-KGPrivateprimrose school of spring hill2.1 mi3090 campbell station pkwyna
GreatSchools’ Summary Rating calculation is based on 4 of the school’s themed ratings, including test scores, student/academic progress, college readiness, and equity. This information should only be used as a reference. Jome is not affiliated with GreatSchools and does not endorse or guarantee this information. Please reach out to schools directly to verify all information and enrollment eligibility. Data provided by GreatSchools.org © 2025
Places of interest
Getting around
Air quality
Noise level
A Soundscore™ rating is a number between 50 (very loud) and 100 (very quiet) that tells you how loud a location is due to environmental noise.
Natural hazards risk
Climate hazards can impact homes and communities, with risks varying by location. These scores reflect the potential impact of natural disasters and climate-related risks on Maury County
Provided by FEMA

Considering this home?
Our expert will guide your tour, in-person or virtual
Need more information?
Text or call (888) 486-2818
Financials
Estimated monthly payment
Similar homes nearby
Recently added communities in this area
Nearby communities in Spring Hill
New homes in nearby cities
More New Homes in Spring Hill, TN
- Home
- New homes
- Tennessee
- Nashville-Memphis Area
- Maury County
- Spring Hill
- Hardins Landing
- 4014 Rampart Wy, Spring Hill, TN 37174



























