




- 3 bd
- 2.5 ba
- 1,650 sqft
304 Musgrave Ct, Piedmont, SC 29673
- Single-Family
- $175.7/sqft
- 46 days on Jome
New Homes for Sale Near 304 Musgrave Ct, Piedmont, SC 29673
About this Home
About this home
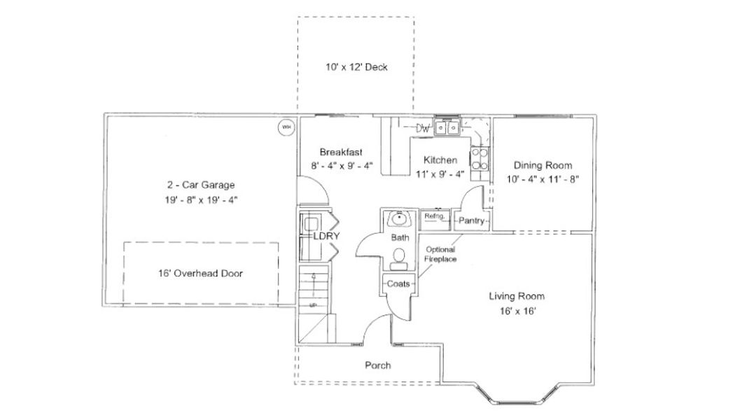
Check out 304 Musgrove Court, a stunning new home in Brook Valley community. This thoughtfully designed home offers three bedrooms, two and a half bathrooms, a bonus room, and a two-car garage. The Plumtree provides a functional layout that balances comfortable living spaces with flexible options for future use.
The main level features an open-concept design that connects the kitchen, dining room, and living room, creating a welcoming space for everyday living and entertaining. The living room offers plenty of space to relax and gather, while the kitchen includes a pantry and convenient access to both the dining area and breakfast nook. A half bathroom and laundry area are also located on the main level for added convenience.
Upstairs, the primary suite offers a private retreat with a walk-in closet and an en-suite bathroom. Two additional bedrooms share a full bathroom, providing comfortable accommodations for guests or additional living needs. A bonus room offers flexibility for storage or future expansion to fit your lifestyle. With its practical layout, flexible spaces, and inviting living areas, this home is the perfect place to call your own. Pictures are representative.
May also be listed on the D.R. Horton website
Information last verified by Jome: Tuesday at 3:22 AM (March 24, 2026)
Home details
- Property status:
- Sold
- Size:
- 1,650 sqft
- Stories:
- 2
- Beds:
- 3
- Baths:
- 2.5
- Garage spaces:
- 2
Construction details
- Builder Name:
- D.R. Horton
Home features & finishes
- Garage/Parking:
- Garage

Community details
Brook Valley
by D.R. Horton, Piedmont, SC
- 1 plan
- 1,650 - 1,650 sqft
View Brook Valley details
Floor plans in Brook Valley
About the builder - D.R. Horton

- 1,154communities on Jome
- 10,668homes on Jome
Neighborhood
Home address
- City:
- Piedmont
- County:
- Greenville
- Zip Code:
- 29673
Schools in Greenville County School District
GreatSchools’ Summary Rating calculation is based on 4 of the school’s themed ratings, including test scores, student/academic progress, college readiness, and equity. This information should only be used as a reference. Jome is not affiliated with GreatSchools and does not endorse or guarantee this information. Please reach out to schools directly to verify all information and enrollment eligibility. Data provided by GreatSchools.org © 2025
Places of interest
Getting around
Air quality
Noise level
A Soundscore™ rating is a number between 50 (very loud) and 100 (very quiet) that tells you how loud a location is due to environmental noise.
Financials
Nearby communities in Piedmont
Homes in Piedmont by D.R. Horton
Recently added communities in this area
Other Builders in Piedmont, SC
Nearby sold homes
New homes in nearby cities
More New Homes in Piedmont, SC
- Jome
- New homes search
- South Carolina
- Greenville County
- Piedmont
- Brook Valley
- 304 Musgrave Ct, Piedmont, SC 29673





























































