



Book your tour. Save an average of $18,473. We'll handle the rest.
We collect exclusive builder offers, book your tours, and support you from start to housewarming.
- Confirmed tours
- Get matched & compare top deals
- Expert help, no pressure
- No added fees
Estimated value based on Jome data, T&C apply
Why tour with Jome?
- No pressure toursTour at your own pace with no sales pressure
- Expert guidanceGet insights from our home buying experts
- Exclusive accessSee homes and deals not available elsewhere
Jome is featured in
- Single-Family
- Quick move-in
- $180.64/sqft
- 96 days on Jome
Home description
Welcome to Davis Heights, Inman’s newest neighborhood! Nestled in the heart of this charming South Carolina town, Davis Heights offers a perfect blend of modern living and small-town charm. Enjoy brand-new construction with thoughtfully designed homes featuring open floor plans, stylish finishes, and spacious yards—perfect for families, entertaining, or relaxing. Conveniently located near schools, shopping, and dining, Davis Heights is ideal for those seeking comfort and convenience in a peaceful setting. Don’t miss your chance to be part of this exciting new community. Schedule your tour today and find your dream home in Davis Heights.
May also be listed on the Enchanted Homes website
Information last verified by Jome: Today at 6:10 AM (May 27, 2026)
Book your tour. Save an average of $18,473. We'll handle the rest.
We collect exclusive builder offers, book your tours, and support you from start to housewarming.
- Confirmed tours
- Get matched & compare top deals
- Expert help, no pressure
- No added fees
Estimated value based on Jome data, T&C apply
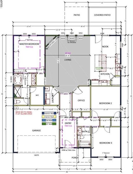
Home details
- Property status:
- Move-in ready
- Size:
- 1,899 sqft
- Beds:
- 3
- Baths:
- 2
- Garage spaces:
- 2
Construction details
- Builder Name:
- Enchanted Homes
Home features & finishes
- Garage/Parking:
- Garage

Get a consultation with our New Homes Expert
- See how your home builds wealth
- Plan your home-buying roadmap
- Discover hidden gems

Community details
Davis Heights
by Enchanted Homes, Inman, SC
- 7 homes
- 28 plans
- 1,247 - 2,411 sqft
View Davis Heights details
More homes in Davis Heights
- Home at address 651 Davis Ln, Inman, SC 29349

Home
$295,100
- 3 bd
- 2 ba
- 1,418 sqft
651 Davis Ln, Inman, SC 29349
- Home at address 647 Davis Ln, Inman, SC 29349

Home
$301,900
- 3 bd
- 2.5 ba
- 1,511 sqft
647 Davis Ln, Inman, SC 29349
- Home at address 692 Davis Ln, Inman, SC 29349

Home
$302,224
- 3 bd
- 2 ba
- 1,456 sqft
692 Davis Ln, Inman, SC 29349
- Home at address 514 Davis Ln, Inman, SC 29349

Home
$307,302
- 3 bd
- 2 ba
- 1,567 sqft
514 Davis Ln, Inman, SC 29349
- Home at address 700 Davis Ln, Inman, SC 29349

Home
$324,907
- 3 bd
- 2 ba
- 1,751 sqft
700 Davis Ln, Inman, SC 29349
- Home at address 520 Davis Ln, Inman, SC 29349

Home
$329,930
- 3 bd
- 2 ba
- 1,787 sqft
520 Davis Ln, Inman, SC 29349
Floor plans in Davis Heights
About the builder - Enchanted Homes
Neighborhood
Home address
- City:
- Inman
- County:
- Spartanburg
- Zip Code:
- 29349
Schools in Spartanburg School District 1
GreatSchools’ Summary Rating calculation is based on 4 of the school’s themed ratings, including test scores, student/academic progress, college readiness, and equity. This information should only be used as a reference. Jome is not affiliated with GreatSchools and does not endorse or guarantee this information. Please reach out to schools directly to verify all information and enrollment eligibility. Data provided by GreatSchools.org © 2025
Places of interest
Getting around
Air quality
Noise level
A Soundscore™ rating is a number between 50 (very loud) and 100 (very quiet) that tells you how loud a location is due to environmental noise.

Considering this home?
Our expert will guide your tour, in-person or virtual
Need more information?
Text or call (888) 545-5198
Financials
Estimated monthly payment
Let us help you find your dream home
How many bedrooms are you looking for?
Similar homes nearby
Recently added communities in this area
Nearby communities in Inman
New homes in nearby cities
More New Homes in Inman, SC
- Jome
- New homes search
- South Carolina
- Spartanburg County
- Inman
- Davis Heights
- 696 Davis Ln, Inman, SC 29349

































