














Book your tour. Save an average of $18,473. We'll handle the rest.
We collect exclusive builder offers, book your tours, and support you from start to housewarming.
- Confirmed tours
- Get matched & compare top deals
- Expert help, no pressure
- No added fees
Estimated value based on Jome data, T&C apply












- 4 bd
- 2.5 ba
- 2,400 sqft
00 Bluebird Trl, St. George, SC 29477
Why tour with Jome?
- No pressure toursTour at your own pace with no sales pressure
- Expert guidanceGet insights from our home buying experts
- Exclusive accessSee homes and deals not available elsewhere
Jome is featured in
- Single-Family
- Quick move-in
- $166.25/sqft
- 2.50-acre lot
Home description
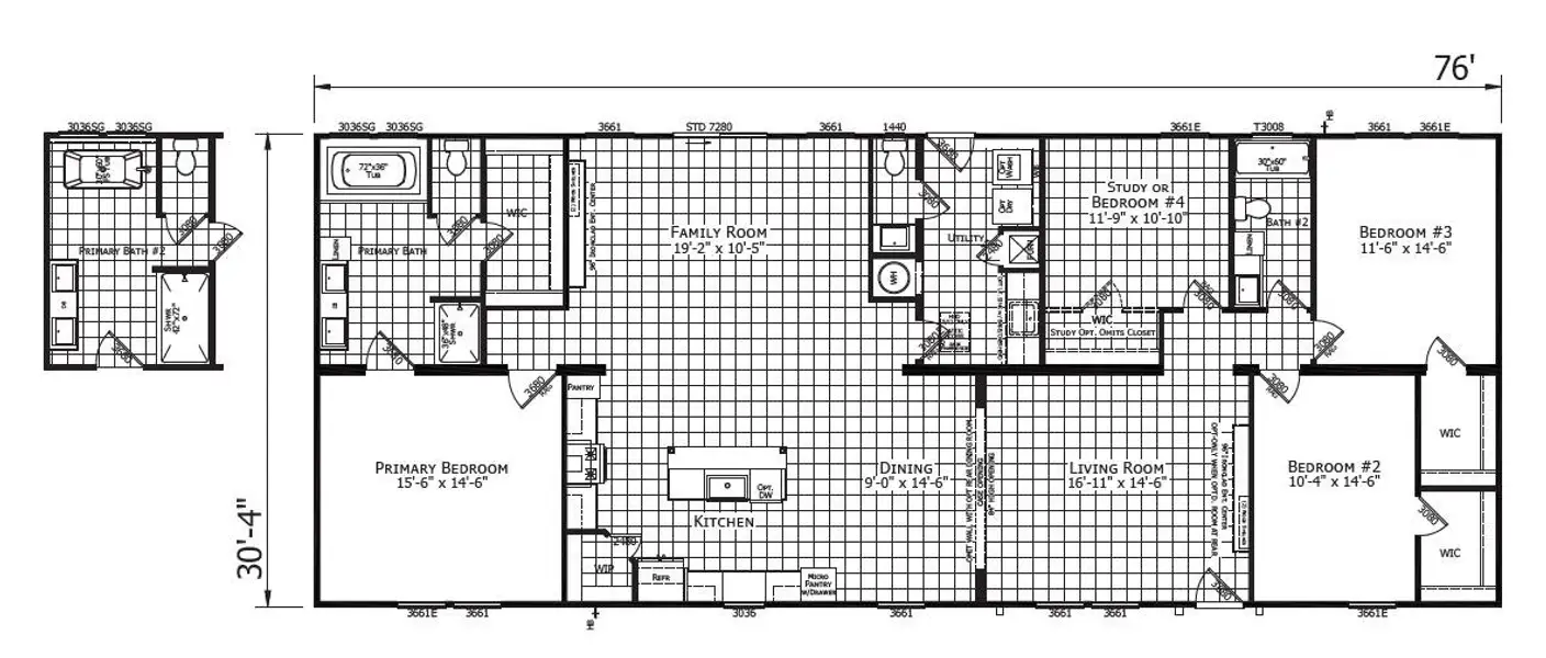
Exceptional value, NEW CONSTRUCTION, pristine natural setting. 2.5-acre high-elevation homesite with no flood insurance required. Conventional 4-bedroom septic permit in place. Cleared, pad-ready lot with underground power and high-speed fiber internet await. The property sits high and dry, performing well during heavy seasonal rains. Minutes from Saint George and I-95 yet serenely situated amidst pines and oaks on a quiet private drive. Opportunity to for buyers to customize proposed ~2,400sqft, 4BR/2.5BA energy-efficient home, boasting 9ft ceilings, glamour primary bath, walk-in closets, open concept living - offering outstanding quality and value at this price point.
Coastal Point Real Estate, MLS 26003687
Information last verified by Jome: Today at 7:41 AM (February 18, 2026)
Book your tour. Save an average of $18,473. We'll handle the rest.
We collect exclusive builder offers, book your tours, and support you from start to housewarming.
- Confirmed tours
- Get matched & compare top deals
- Expert help, no pressure
- No added fees
Estimated value based on Jome data, T&C apply
Home details
- Property status:
- Move-in ready
- Lot size (acres):
- 2.50
- Size:
- 2,400 sqft
- Stories:
- 1
- Beds:
- 4
- Baths:
- 2
- Half baths:
- 1
Construction details
- Year Built:
- 2026
Home features & finishes
- Rooms:
- Primary Bedroom On MainPrimary Bedroom Downstairs

Get a consultation with our New Homes Expert
- See how your home builds wealth
- Plan your home-buying roadmap
- Discover hidden gems
Neighborhood
Home address
- City:
- St. George
- County:
- Dorchester
- Zip Code:
- 29477
Schools in Dorchester School District 4
GreatSchools’ Summary Rating calculation is based on 4 of the school’s themed ratings, including test scores, student/academic progress, college readiness, and equity. This information should only be used as a reference. Jome is not affiliated with GreatSchools and does not endorse or guarantee this information. Please reach out to schools directly to verify all information and enrollment eligibility. Data provided by GreatSchools.org © 2025
Places of interest
Getting around
Air quality
Natural hazards risk
Provided by FEMA

Considering this home?
Our expert will guide your tour, in-person or virtual
Need more information?
Text or call (888) 488-9243
Financials
Estimated monthly payment
Let us help you find your dream home
How many bedrooms are you looking for?
Similar homes nearby
Recently added communities in this area
Nearby communities in St. George
New homes in nearby cities
More New Homes in St. George, SC
Coastal Point Real Estate, MLS 26003687
IDX information is provided exclusively for personal, non-commercial use, and may not be used for any purpose other than to identify prospective properties consumers may be interested in purchasing. Copyright Charleston Trident Multiple Listing Service, Inc. All rights reserved. Information is deemed reliable but not guaranteed.
Read moreLast checked Feb 18, 7:55 am
- Jome
- New homes search
- South Carolina
- Charleston Metropolitan Area
- Dorchester County
- St. George
- 00 Bluebird Trl, St. George, SC 29477



























