














Book your tour. Save an average of $18,473. We'll handle the rest.
- Confirmed tours
- Get matched & compare top deals
- Expert help, no pressure
- No added fees
Estimated value based on Jome data, T&C apply












Why tour with Jome?
- No pressure toursTour at your own pace with no sales pressure
- Expert guidanceGet insights from our home buying experts
- Exclusive accessSee homes and deals not available elsewhere
Jome is featured in
- Single-Family
- Quick move-in
- $211.24/sqft
- $1,000/annual HOA
Home description
Special Interest Rate with Closing Cost Assistance paid for by Builder.Welcome to 123 Brooks Drive in Evergreen by Holly Hill, a thoughtfully designed new home nestled in a peaceful community in Holly Hill, South Carolina. Surrounded by scenic Lowcountry beauty, Evergreen offers a relaxed setting where life feels calmer and more connected to nature.
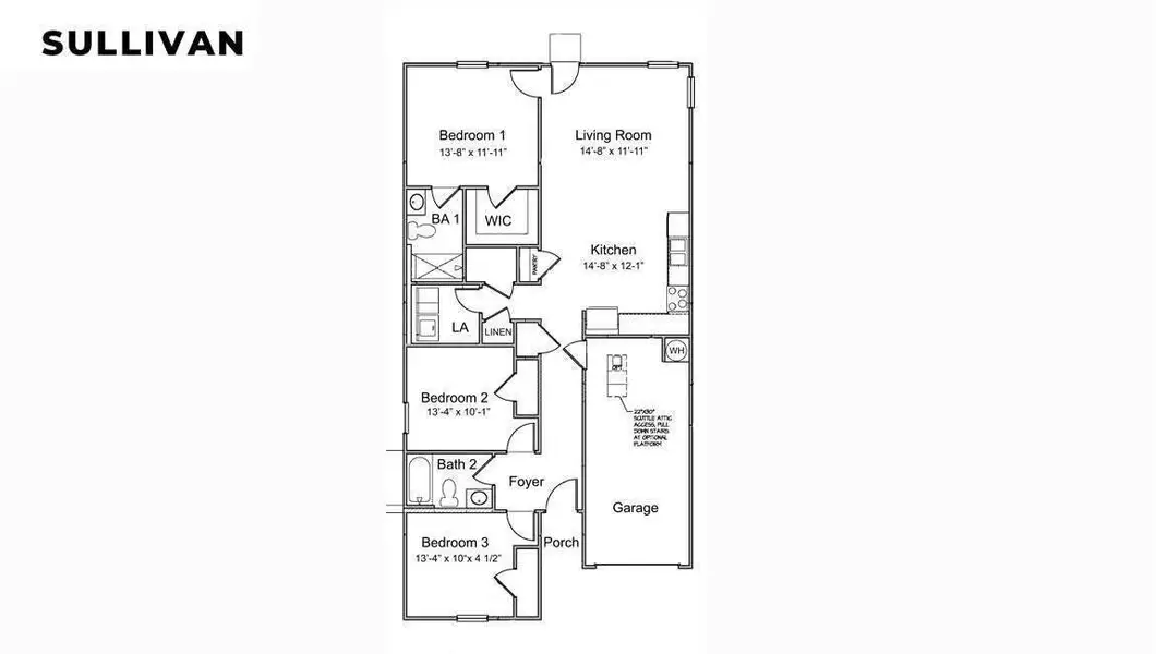
This home features the Sullivan floor plan, which welcomes you with a thoughtful, easy-flow layout designed for everyday comfort and connection. A covered porch opens into a central foyer that naturally guides you through the heart of the home, creating a sense of arrival and openness. The living room is bright and inviting, offering plenty of space to relax, gather, or unwind at the end of the day. Just beyond, the kitchen is both functional and welcoming, with generous counter space and room to moveperfect for everything from quiet morning coffee to casual dinners with friends.
The private primary bedroom is tucked away for added comfort and features a walk-in closet and an en-suite bath, creating a cozy retreat. Two additional bedrooms are well-proportioned and flexible, ideal for guests, family members, or a home office, and are conveniently located near a full second bath. Every space feels intentional, comfortable, and easy to live in, offering the perfect balance of privacy and togetherness.
Nearby natural attractions such as Rocks Pond Campground, Lake Marion, and Bells Marina offer endless opportunities for boating, fishing, and outdoor recreation. Shopping, dining, and entertainment are also within reach, with Orangeburg, Columbia, Charleston, Summerville, Moncks Corner, and Cane Bay all just a short drive away.
If you're searching for a new home in Holly Hill SC that blends comfort, simplicity, and a peaceful lifestyle, 123 Brooks Drive, offers a welcoming place to settle in and feel at home.
Square footage dimensions are approximate. Photos are for illustration purposes only. Interior and exterior features, options, colors, and selections may vary. Please contact the sales agent for details.
D R Horton Inc, MLS 26002742
May also be listed on the D.R. Horton website
Information last verified by Jome: Today at 7:55 PM (January 30, 2026)
Book your tour. Save an average of $18,473. We'll handle the rest.
We collect exclusive builder offers, book your tours, and support you from start to housewarming.
- Confirmed tours
- Get matched & compare top deals
- Expert help, no pressure
- No added fees
Estimated value based on Jome data, T&C apply
Home details
- Property status:
- Move-in ready
- Lot size (acres):
- 0.38
- Size:
- 1,183 sqft
- Stories:
- 1
- Beds:
- 3
- Baths:
- 2
- Garage spaces:
- 1
Construction details
- Builder Name:
- D.R. Horton
- Year Built:
- 2026
- Roof:
- Roof Gutter
Home features & finishes
- Construction Materials:
- Vinyl Siding
- Cooling:
- Central Air
- Flooring:
- Vinyl Flooring
- Garage/Parking:
- Garage
- Interior Features:
- Walk-In ClosetFoyerPantryLoft
- Kitchen:
- Kitchen Island
- Laundry facilities:
- DryerWasher
- Property amenities:
- Cul-de-sacPatio
- Rooms:
- Primary Bedroom On MainDining RoomFamily RoomLiving RoomSeparate Living and DiningPrimary Bedroom Downstairs

Get a consultation with our New Homes Expert
- See how your home builds wealth
- Plan your home-buying roadmap
- Discover hidden gems

Community details
Evergreen
by D.R. Horton, Holly Hill, SC
- 8 homes
- 5 plans
- 1,183 - 1,774 sqft
View Evergreen details
More homes in Evergreen
- Home at address 130 Culbertson Ct, Holly Hill, SC 29059

Sullivan
$259,780
- 3 bd
- 2 ba
- 1,183 sqft
130 Culbertson Ct, Holly Hill, SC 29059
- Home at address 130 Culberston Ct, Holly Hill, SC 29059

SULLIVAN
$272,780
- 3 bd
- 2 ba
- 1,183 sqft
130 Culberston Ct, Holly Hill, SC 29059
- Home at address 122 Hopkins St, Holly Hill, SC 29059

Home
$288,705
- 4 bd
- 2 ba
- 1,482 sqft
122 Hopkins St, Holly Hill, SC 29059
- Home at address 128 Culbertson Ct, Holly Hill, SC 29059

DOWNING
$291,900
- 3 bd
- 2 ba
- 1,257 sqft
128 Culbertson Ct, Holly Hill, SC 29059
- Home at address 131 Brooks Dr, Holly Hill, SC 29059

Home
$297,175
- 3 bd
- 2 ba
- 1,257 sqft
131 Brooks Dr, Holly Hill, SC 29059
- Home at address 139 Brooks Dr, Holly Hill, SC 29059

Home
$316,175
- 3 bd
- 2.5 ba
- 1,518 sqft
139 Brooks Dr, Holly Hill, SC 29059
Floor plans in Evergreen
About the builder - D.R. Horton

- 1,206communities on Jome
- 9,544homes on Jome
Neighborhood
Home address
- City:
- Holly Hill
- County:
- Orangeburg
- Zip Code:
- 29059
Schools in Orangeburg County School District
GreatSchools’ Summary Rating calculation is based on 4 of the school’s themed ratings, including test scores, student/academic progress, college readiness, and equity. This information should only be used as a reference. Jome is not affiliated with GreatSchools and does not endorse or guarantee this information. Please reach out to schools directly to verify all information and enrollment eligibility. Data provided by GreatSchools.org © 2025
Places of interest
Getting around

Considering this home?
Our expert will guide your tour, in-person or virtual
Need more information?
Text or call (888) 486-2818
Financials
Estimated monthly payment
Let us help you find your dream home
How many bedrooms are you looking for?
Similar homes nearby
Recently added communities in this area
Nearby communities in Holly Hill
New homes in nearby cities
More New Homes in Holly Hill, SC
D R Horton Inc, MLS 26002742
IDX information is provided exclusively for personal, non-commercial use, and may not be used for any purpose other than to identify prospective properties consumers may be interested in purchasing. Copyright Charleston Trident Multiple Listing Service, Inc. All rights reserved. Information is deemed reliable but not guaranteed.
Read moreLast checked Jan 30, 7:55 pm
- Jome
- New homes search
- South Carolina
- Charleston Metropolitan Area
- Orangeburg County
- Holly Hill
- Evergreen
- 123 Brooks Dr, Holly Hill, SC 29059
































