





































- 4 bd
- 2.5 ba
- 2,303 sqft
4019 Half Mast Lp, Columbia, SC 29229
- Single-Family
- $117.19/sqft
- 152 days on Jome
New Homes for Sale Near 4019 Half Mast Lp, Columbia, SC 29229
About this Home
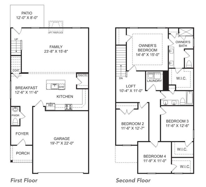
The Palm floor plan combines open living spaces with thoughtful design for a home that’s both stylish and functional. The first floor welcomes you with a bright, open layout where the family room flows easily into the kitchen and breakfast area—creating the perfect setting for entertaining or everyday life. The kitchen features a spacious island, walk-in pantry, and access to the rear patio, with an optional covered version ideal for outdoor dining or relaxing. Upstairs, the owner’s suite offers a peaceful retreat complete with a luxurious bath and dual walk-in closets. Three additional bedrooms share a full bath and surround a versatile loft that can serve as a game room, office, or cozy lounge. With an upstairs laundry room, generous storage, and a two-car garage, the Palm is designed to bring comfort, flexibility, and modern living together.
May also be listed on the Veranda Homes website
Information last verified by Jome: Thursday at 6:02 AM (March 12, 2026)
Home details
- Property status:
- Sold
- Size:
- 2,303 sqft
- Stories:
- 2
- Beds:
- 4
- Baths:
- 2
- Half baths:
- 1
- Garage spaces:
- 2
Construction details
- Builder Name:
- Veranda Homes
Home features & finishes
- Garage/Parking:
- Garage

Community details
Victorywoods Village
by Veranda Homes, Columbia, SC
- 4 homes
- 5 plans
- 1,834 - 2,303 sqft
View Victorywoods Village details
More homes in Victorywoods Village
- Home at address 4087 Half Mast Lp, Columbia, SC 29229
Savings$303,900
Under construction- 4 bd
- 2.5 ba
- 2,015 sqft
4087 Half Mast Lp, Columbia, SC 29229
- Home at address 4033 Half Mast Lp, Columbia, SC 29229
Savings$308,900
Under construction- 4 bd
- 2.5 ba
- 2,003 sqft
4033 Half Mast Lp, Columbia, SC 29229
- Home at address 4083 Half Mast Lp, Columbia, SC 29073
Savings$314,900
Under construction- 4 bd
- 2.5 ba
- 2,303 sqft
4083 Half Mast Lp, Columbia, SC 29073
Floor plans in Victorywoods Village
About the builder - Veranda Homes
Neighborhood
Home address
Schools in Richland School District 2
GreatSchools’ Summary Rating calculation is based on 4 of the school’s themed ratings, including test scores, student/academic progress, college readiness, and equity. This information should only be used as a reference. Jome is not affiliated with GreatSchools and does not endorse or guarantee this information. Please reach out to schools directly to verify all information and enrollment eligibility. Data provided by GreatSchools.org © 2025
Places of interest
Getting around
Air quality
Noise level
A Soundscore™ rating is a number between 50 (very loud) and 100 (very quiet) that tells you how loud a location is due to environmental noise.
Financials
Nearby communities in Columbia
Homes in Columbia Neighborhoods
Homes in Columbia by Veranda Homes
Recently added communities in this area
Other Builders in Columbia, SC
Nearby sold homes
New homes in nearby cities
More New Homes in Columbia, SC
- Jome
- New homes search
- South Carolina
- Columbia
- Victorywoods Village
- 4019 Half Mast Lp, Columbia, SC 29229
























































