

































- 3 bd
- 2.5 ba
- 1,846 sqft
8647 Miles Gap Rd, Indian Land, SC 29707
- Townhouse
- $251.89/sqft
- 0.07-acre lot
- 114 days on Jome
New Homes for Sale Near 8647 Miles Gap Rd, Indian Land, SC 29707
About this Home
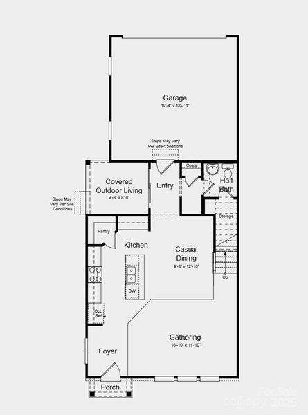
New Construction - November Completion! Built by America's Most Trusted Homebuilder. Welcome to the Avon at 8647 Miles Gap Road in Ridge at Sugar Creek! As you enter, you'll find an open-concept kitchen that flows seamlessly into the casual dining area and great room. Upstairs, the layout includes a luxurious primary suite with a private en-suite and walk-in closet, two additional bedrooms, a full bathroom, a private study, a tech area, and a convenient laundry space. Ridge at Sugar Creek is a friendly community in Indian Land, SC. With a brand-new pool and a planned greenway trail, you'll have plenty of activities at your fingertips. Pool and cabana now open! Easy access to I-77 and I-485, along with the vibrant dining and entertainment options at Ballantyne Bowl, puts you at the heart of local happenings. Additional highlights include: Study in place of a loft and built-in ledge in the primary shower. Photos are for representative purposes only. MLS#4292049
Taylor Morrison of Carolinas Inc, MLS CAR4292049
May also be listed on the Taylor Morrison website
Information last verified by Jome: Saturday at 5:00 PM (November 22, 2025)
Home details
- Property status:
- Sold
- Lot size (acres):
- 0.07
- Size:
- 1,846 sqft
- Stories:
- 2
- Beds:
- 3
- Baths:
- 2
- Half baths:
- 1
- Garage spaces:
- 2
Construction details
- Builder Name:
- Taylor Morrison
- Year Built:
- 2025
- Roof:
- Shingle Roofing
Home features & finishes
- Construction Materials:
- CementBrick
- Flooring:
- Laminate FlooringCarpet FlooringTile Flooring
- Foundation Details:
- Slab
- Garage/Parking:
- Door OpenerGarageRear Entry Garage/ParkingAttached Garage
- Kitchen:
- DishwasherMicrowave OvenOvenDisposalGas CooktopGas OvenKitchen Range
- Laundry facilities:
- Laundry Facilities On Upper Level
Utility information
- Heating:
- Zoned Heating, Gas Heating
- Utilities:
- Natural Gas on Property, Other, Cable Available
Community amenities
- Community Pool
- Sidewalks Available
- Walking, Jogging, Hike Or Bike Trails
- Recreational Facilities
About the builder - Taylor Morrison
Neighborhood
Home address
- City:
- Indian Land
- County:
- Lancaster
- Zip Code:
- 29707
Schools in Lancaster County School District
- Grades 06-12Privatefusion academy and learning center - charlotte3.5 mi3426 toringdon way ste 100na
- Grades 06-06Privatefusion charlotte3.7 mi3540 toringdon way ste 100na
GreatSchools’ Summary Rating calculation is based on 4 of the school’s themed ratings, including test scores, student/academic progress, college readiness, and equity. This information should only be used as a reference. Jome is not affiliated with GreatSchools and does not endorse or guarantee this information. Please reach out to schools directly to verify all information and enrollment eligibility. Data provided by GreatSchools.org © 2025
Places of interest
Getting around
Noise level
A Soundscore™ rating is a number between 50 (very loud) and 100 (very quiet) that tells you how loud a location is due to environmental noise.
Natural hazards risk
Climate hazards can impact homes and communities, with risks varying by location. These scores reflect the potential impact of natural disasters and climate-related risks on Lancaster County
Provided by FEMA
Financials
Nearby communities in Indian Land
Recently added communities in this area
Other Builders in Indian Land, SC
Nearby sold homes
New homes in nearby cities
More New Homes in Indian Land, SC
Taylor Morrison of Carolinas Inc, MLS CAR4292049
Based on information submitted to the MLS GRID as of 10/21/2024 2:31 PM CDT. All data is obtained from various sources and may not have been verified by the broker or MLS GRID. Supplied Open House Information is subject to change without notice. All information should be independently reviewed and verified for accuracy. Properties may or may not be listed by the office/agent presenting the information. Properties displayed may be listed or sold by various participants in the MLS. The Digital Millennium Copyright Act of 1998, 17 U.S.C. § 512 (the “DMCA”) provides recourse for copyright owners who believe that material appearing on the Internet infringes their rights under U.S. copyright law. If you believe in good faith that any content or material made available in connection with our website or services infringes your copyright, you (or your agent) may send us a notice requesting that the content or material be removed, or access to it blocked. Notices must be sent in writing by email to DMCAnotice@MLSGrid.com. The DMCA requires that your notice of alleged copyright infringement include the following information: (1) description of the copyrighted work that is the subject of claimed infringement; (2) description of the alleged infringing content and information sufficient to permit us to locate the content; (3) contact information for you, including your address, telephone number and email address; (4) a statement by you that you have a good faith belief that the content in the manner complained of is not authorized by the copyright owner, or its agent, or by the operation of any law; (5) a statement by you, signed under penalty of perjury, that the information in the notification is accurate and that you have the authority to enforce the copyrights that are claimed to be infringed; and (6) a physical or electronic signature of the copyright owner or a person authorized to act on the copyright owner’s behalf. Failure to include all of the above information may result in the delay of the processing of your complaint.
Read moreLast checked Dec 6, 5:00 am
- Home
- New homes
- South Carolina
- Charlotte Metropolitan Area
- Lancaster County
- Indian Land
- 8647 Miles Gap Rd, Indian Land, SC 29707














































