




Book your tour. Save an average of $18,473. We'll handle the rest.
- Confirmed tours
- Get matched & compare top deals
- Expert help, no pressure
- No added fees
Estimated value based on Jome data, T&C apply
- 5 bd
- 3.5 ba
- 3,053 sqft
1423 Crooked Stick Dr, Rock Hill, SC 29730
Why tour with Jome?
- No pressure toursTour at your own pace with no sales pressure
- Expert guidanceGet insights from our home buying experts
- Exclusive accessSee homes and deals not available elsewhere
Jome is featured in
- Single-Family
- Under construction
- South facing
- 114 days on Jome
Home description
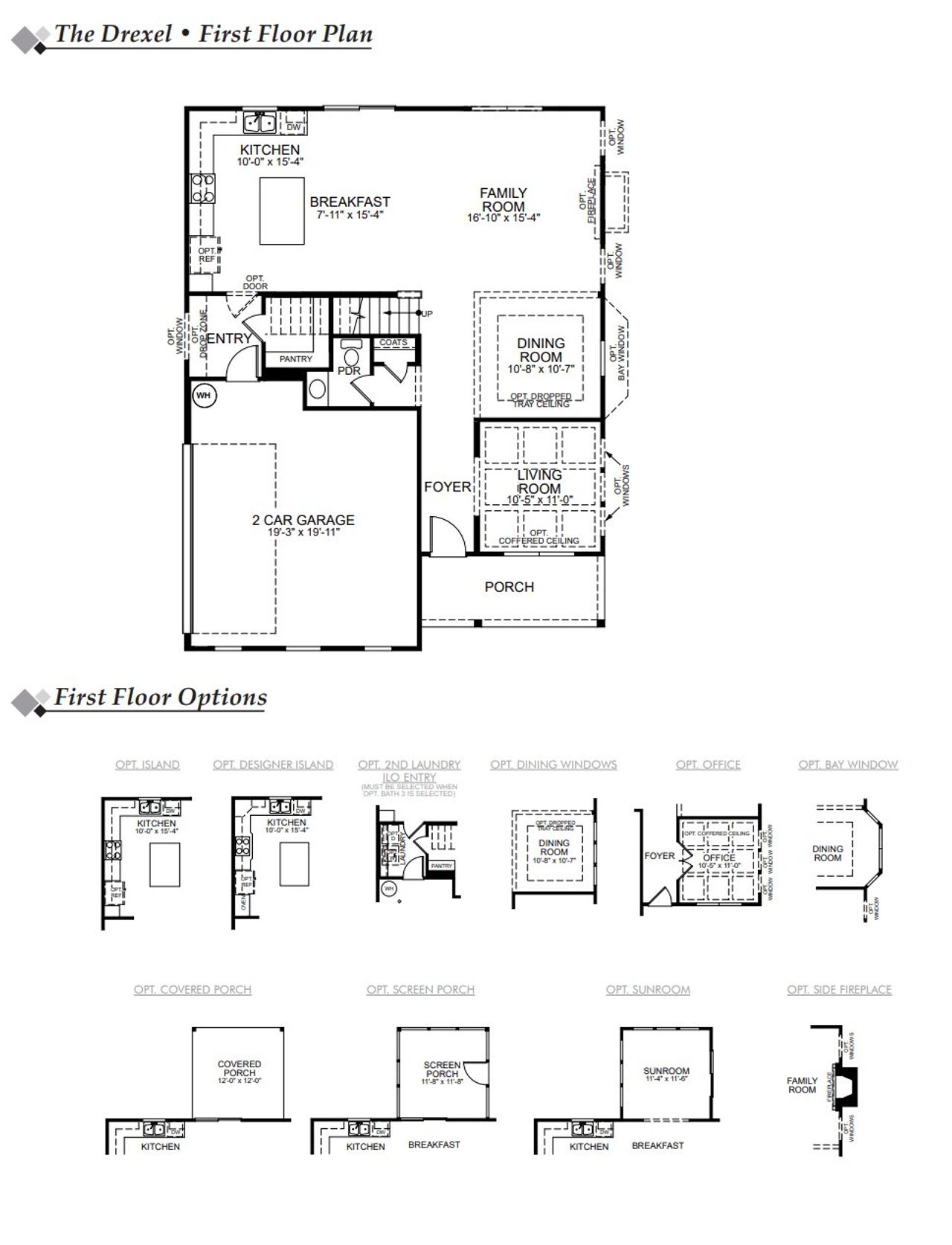
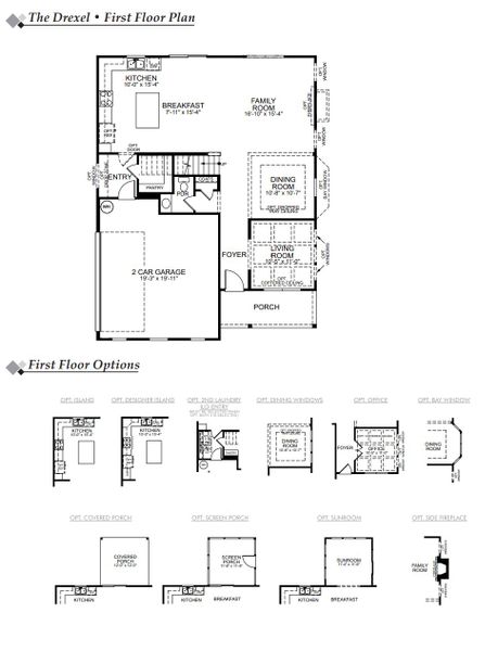
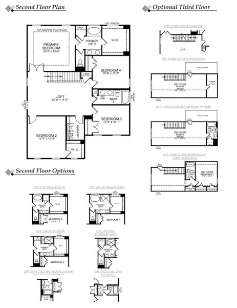
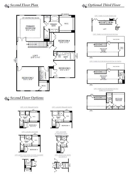
The Drexel is a three-story, five-bedroom, three-and-a-half-bath home with a side-load garage, home office, formal dining room, kitchen with an island and pantry, a spacious great room, and a covered porch. The second floor features four bedrooms, including the primary suite with a large closet, an upstairs laundry, an additional full bath, and a loft area. The third floor features a bonus room, additional bedroom, and full bathroom.
May also be listed on the Eastwood Homes website
Information last verified by Jome: Yesterday at 6:16 AM (December 5, 2025)
Home highlights
Border-straddling theme park near Charlotte with coasters, water rides, and seasonal events for all ages.
Book your tour. Save an average of $18,473. We'll handle the rest.
We collect exclusive builder offers, book your tours, and support you from start to housewarming.
- Confirmed tours
- Get matched & compare top deals
- Expert help, no pressure
- No added fees
Estimated value based on Jome data, T&C apply
Home details
- Property status:
- Under construction
- Size:
- 3,053 sqft
- Stories:
- 3+
- Beds:
- 5
- Baths:
- 3
- Half baths:
- 1
- Garage spaces:
- 2
- Facing direction:
- South
Construction details
- Builder Name:
- Eastwood Homes
Home features & finishes
- Garage/Parking:
- GarageAttached Garage
- Interior Features:
- Walk-In ClosetFoyerPantryLoft
- Kitchen:
- Kitchen Island
- Laundry facilities:
- Utility/Laundry Room
- Property amenities:
- FireplacePorch
- Rooms:
- KitchenPowder RoomOffice/StudyDining RoomFamily RoomLiving RoomBreakfast AreaOpen Concept FloorplanPrimary Bedroom Upstairs

Community details
Waterford Commons
by Eastwood Homes, Rock Hill, SC
- 12 homes
- 9 plans
- 1,738 - 3,435 sqft
View Waterford Commons details
More homes in Waterford Commons
Floor plans in Waterford Commons
About the builder - Eastwood Homes
Neighborhood
Home address
Schools in York School District 3
GreatSchools’ Summary Rating calculation is based on 4 of the school’s themed ratings, including test scores, student/academic progress, college readiness, and equity. This information should only be used as a reference. Jome is not affiliated with GreatSchools and does not endorse or guarantee this information. Please reach out to schools directly to verify all information and enrollment eligibility. Data provided by GreatSchools.org © 2025
Places of interest
Getting around
Air quality
Noise level
A Soundscore™ rating is a number between 50 (very loud) and 100 (very quiet) that tells you how loud a location is due to environmental noise.
Natural hazards risk
Climate hazards can impact homes and communities, with risks varying by location. These scores reflect the potential impact of natural disasters and climate-related risks on York County
Provided by FEMA

Considering this home?
Our expert will guide your tour, in-person or virtual
Need more information?
Text or call (888) 486-2818
Financials
Similar homes nearby
Recently added communities in this area
Nearby communities in Rock Hill
New homes in nearby cities
More New Homes in Rock Hill, SC
- Home
- New homes
- South Carolina
- Charlotte Metropolitan Area
- York County
- Rock Hill
- Waterford Commons
- 1423 Crooked Stick Dr, Rock Hill, SC 29730

































