




Book your tour. Save an average of $18,473. We'll handle the rest.
- Confirmed tours
- Get matched & compare top deals
- Expert help, no pressure
- No added fees
Estimated value based on Jome data, T&C apply
- 3 bd
- 2.5 ba
- 2,611 sqft
1187 Birdie Pl, Graniteville, SC 29829
Why tour with Jome?
- No pressure toursTour at your own pace with no sales pressure
- Expert guidanceGet insights from our home buying experts
- Exclusive accessSee homes and deals not available elsewhere
Jome is featured in
- Single-Family
- Quick move-in
- $210.64/sqft
- 141 days on Jome
Home description
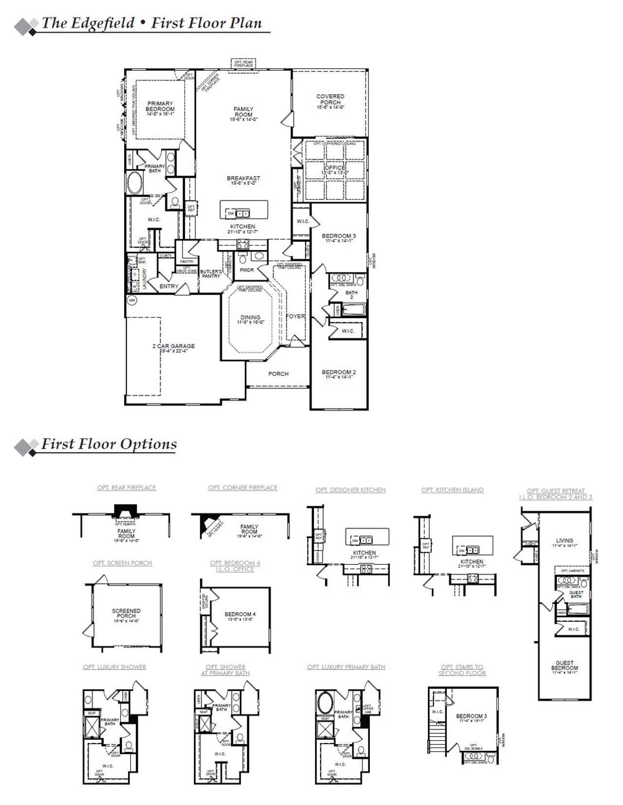
The Edgefield is a spacious three-bedroom, two-and-a-half-bath ranch-style home with a side load garage, first-floor primary bedroom, formal dining room, separate office, open family room, dining area, kitchen with island and pantry, garage storage area, and a covered rear porch.
May also be listed on the Eastwood Homes website
Information last verified by Jome: Today at 6:28 AM (December 5, 2025)
Home highlights
Book your tour. Save an average of $18,473. We'll handle the rest.
We collect exclusive builder offers, book your tours, and support you from start to housewarming.
- Confirmed tours
- Get matched & compare top deals
- Expert help, no pressure
- No added fees
Estimated value based on Jome data, T&C apply
Home details
- Property status:
- Move-in ready
- Size:
- 2,611 sqft
- Stories:
- 1
- Beds:
- 3
- Baths:
- 2
- Half baths:
- 1
- Garage spaces:
- 2
Construction details
- Builder Name:
- Eastwood Homes
Home features & finishes
- Foundation Details:
- Crawl Space
- Garage/Parking:
- GarageSide Entry Garage/ParkingAttached Garage
- Interior Features:
- FoyerTray Ceiling
- Property amenities:
- FireplacePorch
- Rooms:
- Primary Bedroom On MainOffice/StudyDining RoomPrimary Bedroom Downstairs

Community details
The Village at Horse Creek
by Eastwood Homes, Graniteville, SC
- 3 homes
- 2,611 - 3,418 sqft
View The Village at Horse Creek details
More homes in The Village at Horse Creek
About the builder - Eastwood Homes
Neighborhood
Home address
- City:
- Graniteville
- County:
- Aiken
- Zip Code:
- 29829
Schools in Aiken County School District
GreatSchools’ Summary Rating calculation is based on 4 of the school’s themed ratings, including test scores, student/academic progress, college readiness, and equity. This information should only be used as a reference. Jome is not affiliated with GreatSchools and does not endorse or guarantee this information. Please reach out to schools directly to verify all information and enrollment eligibility. Data provided by GreatSchools.org © 2025
Getting around
Air quality
Noise level
A Soundscore™ rating is a number between 50 (very loud) and 100 (very quiet) that tells you how loud a location is due to environmental noise.
Natural hazards risk
Climate hazards can impact homes and communities, with risks varying by location. These scores reflect the potential impact of natural disasters and climate-related risks on Aiken County
Provided by FEMA

Considering this home?
Our expert will guide your tour, in-person or virtual
Need more information?
Text or call (888) 486-2818
Financials
Estimated monthly payment
Similar homes nearby
Recently added communities in this area
Nearby communities in Graniteville
New homes in nearby cities
More New Homes in Graniteville, SC
- Home
- New homes
- South Carolina
- Aiken County
- Graniteville
- The Village at Horse Creek
- 1187 Birdie Pl, Graniteville, SC 29829
























