
















- 4 bd
- 2.5 ba
- 2,166 sqft
436 Hardwick Dr, Columbia, SC 29223
- Single-Family
- $129.27/sqft
- 158 days on Jome
New Homes for Sale Near 436 Hardwick Dr, Columbia, SC 29223
About this Home
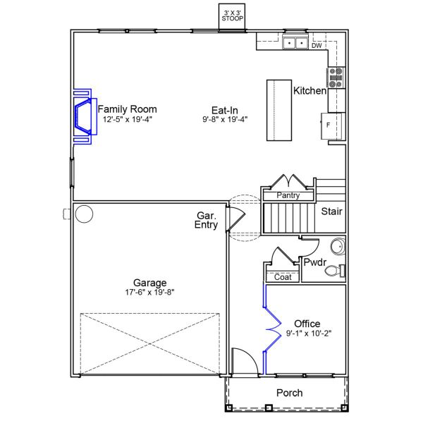
The Lancaster is a four-bedroom, two-and-a-half-bathroom home offering comfortable living space with a designated home office. The open kitchen features modern appliances and plenty of counter space, and flows seamlessly into the great room with a beautiful fireplace—perfect for entertaining. The spacious primary suite includes an en-suite bathroom with a dual vanity and a walk-in closet. Three additional bedrooms, a spacious laundry room, and a full bathroom complete this thoughtfully designed home.
May also be listed on the Mungo Homes website
Information last verified by Jome: Monday at 6:10 AM (December 1, 2025)
Home details
- Property status:
- Sold
- Size:
- 2,166 sqft
- Stories:
- 2
- Beds:
- 4
- Baths:
- 2
- Half baths:
- 1
- Garage spaces:
- 2
Construction details
- Builder Name:
- Mungo Homes
- Completion Date:
- January, 2026
Home features & finishes
- Garage/Parking:
- Garage
- Rooms:
- Primary Bedroom Upstairs

Community details
Haynes Park
by Mungo Homes, Columbia, SC
- 17 homes
- 1 plan
- 1,250 - 2,241 sqft
View Haynes Park details
More homes in Haynes Park
Floor plans in Haynes Park
About the builder - Mungo Homes
Neighborhood
Home address
Schools in Richland School District 2
GreatSchools’ Summary Rating calculation is based on 4 of the school’s themed ratings, including test scores, student/academic progress, college readiness, and equity. This information should only be used as a reference. Jome is not affiliated with GreatSchools and does not endorse or guarantee this information. Please reach out to schools directly to verify all information and enrollment eligibility. Data provided by GreatSchools.org © 2025
Places of interest
Getting around
Air quality
Noise level
A Soundscore™ rating is a number between 50 (very loud) and 100 (very quiet) that tells you how loud a location is due to environmental noise.
Natural hazards risk
Climate hazards can impact homes and communities, with risks varying by location. These scores reflect the potential impact of natural disasters and climate-related risks on Richland County
Provided by FEMA
Financials
Nearby communities in Columbia
Homes in Columbia Neighborhoods
Homes in Columbia by Mungo Homes
Recently added communities in this area
Other Builders in Columbia, SC
Nearby sold homes
New homes in nearby cities
More New Homes in Columbia, SC
- Jome
- New homes search
- South Carolina
- Richland County
- Columbia
- Haynes Park
- 436 Hardwick Dr, Columbia, SC 29223




















































