













Book your tour. Save an average of $18,473. We'll handle the rest.
- Confirmed tours
- Get matched & compare top deals
- Expert help, no pressure
- No added fees
Estimated value based on Jome data, T&C apply

























Why tour with Jome?
- No pressure toursTour at your own pace with no sales pressure
- Expert guidanceGet insights from our home buying experts
- Exclusive accessSee homes and deals not available elsewhere
Jome is featured in
- Single-Family
- $208.88/sqft
- East facing
- 0.36-acre lot
Home description
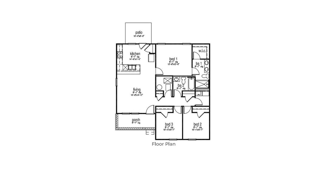
Welcome to our beautiful Curtis floorplan! The Curtis is one of our newest cottage floorplans designed for efficient living and comfort. Upon entering the home, you are greeted by a spacious living area which flows directly into your kitchen complete with granite counter tops, sleek white cabinetry, and modern stainless-steel appliances. Continuing from the living area, the two commodious secondary bedrooms are conveniently located next to a spacious full bath and laundry room. The primary suite at the back of the home boasts a walk-in closet, shower, and vanity complete with quartz countertops. Outside the home, you'll find your own slice of paradise with your covered front porch and rear patio overlooking your beautiful, wooded backyard.North Shore is located in the charming town of Summerton, South Carolina. Nestled along the shores of Lake Marion, Summerton is known for its natural beauty, recreational opportunities, and small-town charm. With easy access to water activities such as boating, fishing, and kayaking, North Shore offers a perfect blend of modern living and outdoor adventure. At North Shore, each floor plan is thoughtfully crafted to maximize both comfort and functionality. This community has a floor plan to meet your lifestyle needs while embracing the beauty and tranquility of lakeside living.
Summerton itself is a welcoming community with a rich history. Residents can enjoy local dining, boutique shopping, and various festivals and events that celebrate the town's heritage. Additionally, Summerton's proximity to major highways makes it easy to reach nearby cities like Charleston and Columbia, offering the best of both small-town living and big-city convenience.
All new homes include D.R. Horton's Home is Connected® package, an industry leading suite of smart home products that keep homeowners connected with the people and places they value most. This smart technology allows homeowners to monitor and control their home from their couch or across the globe. Products include a touchscreen interface, video doorbell, front door light, z-wave t-stat, and keyless door lock all of which are controlled by an Alexa Dot and smartphone app with voice! Call to schedule your showing today and start envisioning your new life surrounded by nature's beauty!
*Square footage dimensions are approximate. The photos you see here are for illustration purposes only. Interior, and exterior features, options, colors, and selections will differ. Please reach out to our sales agent for options.
D R Horton Inc, MLS 25009542
May also be listed on the D.R. Horton website
Information last verified by Jome: Wednesday at 7:48 AM (December 3, 2025)
Home highlights
Book your tour. Save an average of $18,473. We'll handle the rest.
We collect exclusive builder offers, book your tours, and support you from start to housewarming.
- Confirmed tours
- Get matched & compare top deals
- Expert help, no pressure
- No added fees
Estimated value based on Jome data, T&C apply
Home details
- Property status:
- Pending/Under contract
- Lot size (acres):
- 0.36
- Size:
- 1,182 sqft
- Stories:
- 1
- Beds:
- 3
- Baths:
- 2
- Facing direction:
- East
Construction details
- Builder Name:
- D.R. Horton
- Year Built:
- 2025
- Roof:
- Fiberglass Roofing
Home features & finishes
- Cooling:
- Central Air
- Flooring:
- Vinyl Flooring
- Interior Features:
- Ceiling-HighWindow TreatmentsWalk-In ClosetPantryLoft
- Kitchen:
- Kitchen Island
- Laundry facilities:
- WasherUtility/Laundry Room
- Rooms:
- Bonus RoomPrimary Bedroom On MainKitchenDining RoomLiving RoomPrimary Bedroom Downstairs
Utility information
- Heating:
- Electric Heating

Community details
North Shore
by D.R. Horton, Summerton, SC
- 2 homes
- 3 plans
- 1,045 - 1,256 sqft
View North Shore details
More homes in North Shore
Floor plans in North Shore
About the builder - D.R. Horton
Neighborhood
Home address
Schools in Clarendon School District 1
- Grades KG-12Privateharvest community school7.9 mi10 s dukes stna
- Grades 03-05Publicst. paul elementary school9.2 mi9297 alex harvin highwayna
- Grades 06-08Publicscott's branch middle school9.3 mi9253 alex harvin highwayna
- Grades 09-12Publicscott's branch high9.3 mi9253 alex harvin highwayna
GreatSchools’ Summary Rating calculation is based on 4 of the school’s themed ratings, including test scores, student/academic progress, college readiness, and equity. This information should only be used as a reference. Jome is not affiliated with GreatSchools and does not endorse or guarantee this information. Please reach out to schools directly to verify all information and enrollment eligibility. Data provided by GreatSchools.org © 2025
Places of interest
Getting around
Natural hazards risk
Climate hazards can impact homes and communities, with risks varying by location. These scores reflect the potential impact of natural disasters and climate-related risks on Clarendon County
Provided by FEMA

Considering this home?
Our expert will guide your tour, in-person or virtual
Need more information?
Text or call (888) 486-2818
Financials
Estimated monthly payment
Similar homes nearby
Recently added communities in this area
Nearby communities in Summerton
New homes in nearby cities
More New Homes in Summerton, SC
D R Horton Inc, MLS 25009542
IDX information is provided exclusively for personal, non-commercial use, and may not be used for any purpose other than to identify prospective properties consumers may be interested in purchasing. Copyright Charleston Trident Multiple Listing Service, Inc. All rights reserved. Information is deemed reliable but not guaranteed.
Read moreLast checked Dec 5, 7:55 am
- Home
- New homes
- South Carolina
- Clarendon County
- Summerton
- North Shore
- 1804 Gordon Rd, Summerton, SC 29148































